- >>
- eladó ingatlanok
- >>
- eladó lakás
- >>
- eladó lakás Balatonfenyves
- >>
Eladó új építésű lakás - Balatonfenyves
| | |||
| Kedvencnek jelölöm | Elküldöm emailben | Megosztás | Szavazás |
| Kedvezményes lakáshitel ajánlatok | |||
| 149 000 000 HUF | |||
Ingatlan adatai
- Eladó vagy kiadó:Eladó
- Település:Balatonfenyves
- Kategória:Lakás
- Alkategória:Tégla
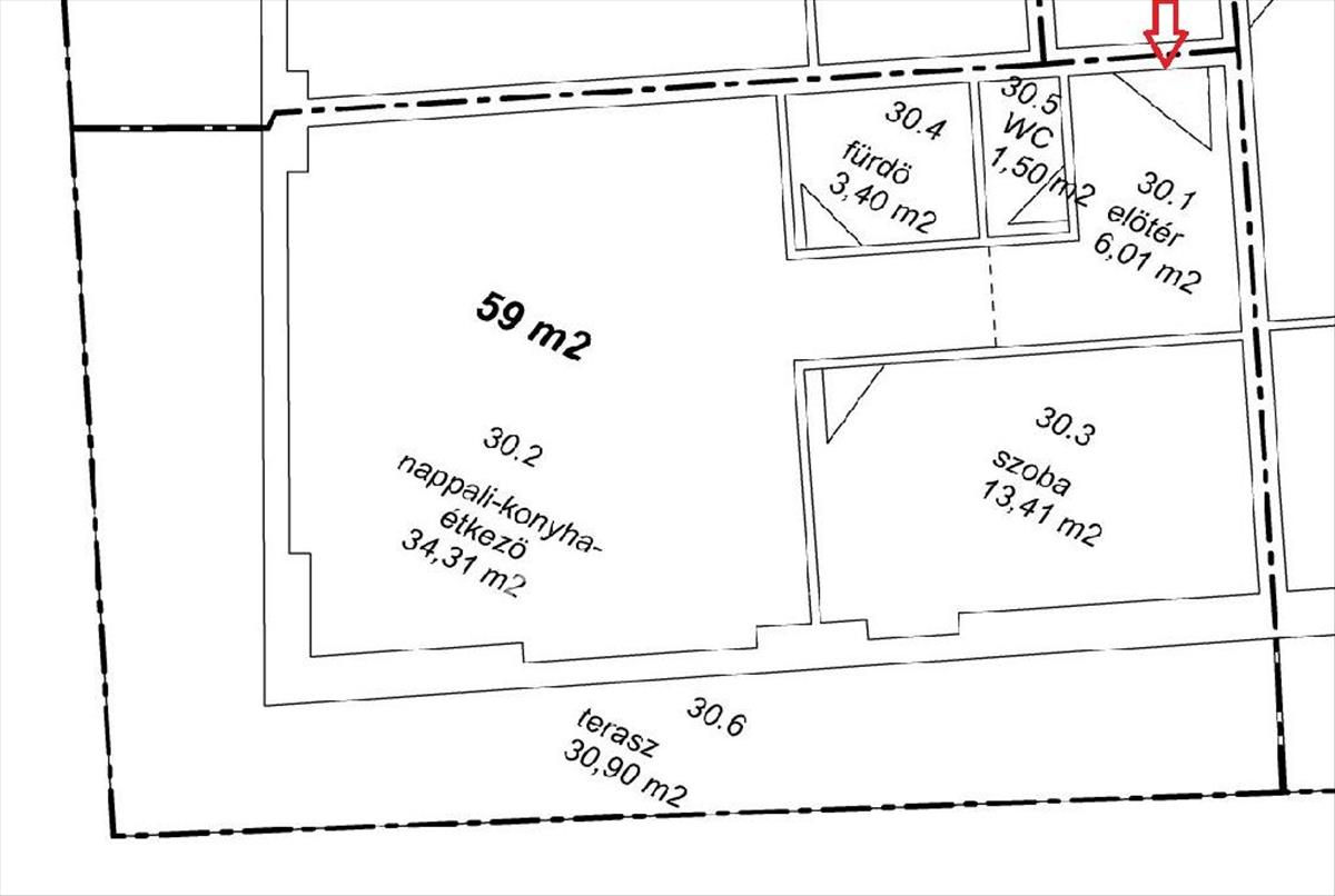
- Alapterület:59 m2
- Csere is:Nem
- Hirdető:Cég
- Élő videón megtekinthető:Nem
- Szobaszám:2
- Állapot:Új építésű
- Hány szintes az ingatlan:Földszintes
- Komfortosság:nincs megadva
- Hányadik emeleti:3
- Lift:Van
- Parkolási lehetőség:Udvaron
- Fűtés:Egyéb
- Bútorozottság:nincs megadva
- Fényviszony:Jó
- Tájolás:nincs megadva
- Kilátás:nincs megadva
- Internet:nincs megadva
- Akadálymentesített:nincs megadva
- Energiatanúsítvány:nincs megadva
- Villany:Van
- Víz:Van
- Gáz:nincs megadva
- Csatorna:Van
- Üzenetküldés
- Hívás

Vincze László György
Mondd meg a hirdetőnek, hogy a megveszLAK-on találtad a hirdetést.
Referencia szám: M217899

Hitel ajánlat
Ingatlan hirdetés leírása
Eladó Lakás, Balatonfenyves
Balaton déli part, Balatonfenyves panorámás vízparti társasházi lakás eladó. Az új építésű, liftes társasházban 29 lakóegység épül, földszint, 3 emelet, plusz penthouse-szint kialakításával. Geotermikus energiával, hőszivattyúval, megújuló energiával, a legkorszerűbb építészeti megoldásokkal, modern arculattal, változatos alaprajzokkal tervezett. Minden lakáshoz erkély/terasz kapcsolódik a Balatonra tájoltan. a déli part egyik legszebb panorámája tárul elénk az északi part tanúhegyeivel, Badacsonnyal a fonyódi kilátóhegyig. a földszinten vendéglátó egység és wellness áll rendelkezésre a lakók kényelmére, magas színvonalon való kiszolgálására. a lakásokhoz tartozó felszíni kocsibeállók zárt udvaron belül kerülnek kialakításra. M7 autópálya lehajtó 2 km távolságban. a beruházás tervezett befejezése 2024. Nyárra várható. Részletekért, megtekintésért keressen telefonon!149000000 Ft
Referencia szám: m217899 Hitel.hu - Hasonlítsa össze a bankok lakáshitel ajánlatait

