Eladó új építésű lakás - Balatonkenese
- INGYENES HIRDETÉS FELADÁS
Ingatlan adatai
- Eladó vagy kiadó:Eladó
- Település:Balatonkenese
- Kategória:Lakás
- Alkategória:Tégla
- Alapterület:42 m2
- Csere is:Nem
- Hirdető:Cég
- Élő videón megtekinthető:Nem
- Szobaszám:1
- Állapot:Új építésű
- Hány szintes az ingatlan:Földszintes
- Komfortosság:nincs megadva
- Hányadik emeleti:3
- Erkély:nincs megadva
- Lift:Van
- Parkolási lehetőség:Udvaron
- Fűtés:Elektromos
- Bútorozottság:Bútorozott
- Fényviszony:Napfényes
- Tájolás:nincs megadva
- Kilátás:Panorámás
- Internet:nincs megadva
- Klíma:nincs megadva
- Akadálymentesített:nincs megadva
- Energiatanúsítvány:nincs megadva
- Villany:Van
- Víz:Van
- Gáz:nincs megadva
- Csatorna:Van
- Közös költség:11 250 Ft
- Kapcsolatfelvétel

Szűcs Attila
+36-(50)-114-4065
Mondd meg a hirdetőnek, hogy a megveszLAK-on találtad a hirdetést.
Referencia szám: M324014
Hitel ajánlatok
Ingatlan hirdetés leírása
Eladó Lakás, Balatonkenese
Panorámás tetőtéri lakás eladó Balatonkenesén – 100 méterre a Balatontól
Balatonkenese egyik legkedveltebb, vízpart közeli részén kínálunk megvételre egy azonnal birtokba vehető, tetőtéri panorámás lakást, mindössze 100 méterre a Balaton partjától.
Az ingatlan a Kenese Liget prémium lakópark főépületében található, amely egy múlt századi épület karakterét megőrizve, teljes körű felújítással és korszerűsítéssel alakult át modern társasházzá.
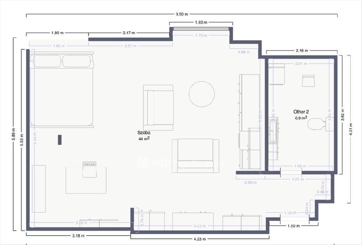
A tetőtérben kialakított lakás nettó 42 m² (bruttó kb. 55 M²) alapterületű stúdió lakás, amelynek kialakítása lehetőséget biztosít a hálórész leválasztására is.
A világos, egyterű nappali–konyha tér nagy ablakainak és tetőablakainak köszönhetően rendkívül világos és tágas érzetet biztosít.
A lakás gépesített konyhával, beépített konyhabútorral és részleges bútorzattal kerül értékesítésre, így akár azonnal használatba vehető nyaralóként vagy befektetésként is.
Főbb jellemzők
tetőtéri elhelyezkedés
nettó lakótér: 42 m²
bruttó alapterület: kb. 55 M²
stúdió lakás, leválasztható hálórésszel
fürdőszoba: 6, 9 m² (zuhanyzó + WC)
gépesített konyha, beépített konyhabútor
részben bútorozott állapot
azonnal birtokba vehető
Műszaki tartalom
energiahatékony hőszivattyús hűtés–fűtés rendszer
H-tarifás mérő
egyedi fogyasztásmérők
smart vízmelegítő rendszer
liftes épület
Lokáció
Az ingatlan Balatonkenese kiváló elhelyezkedésű részén, a vízpart közvetlen közelében található.
Balaton-part: kb. 100 M
Kikötő: kb. 270 M (4 perc séta)
Vak Bottyán strand: kb. 550 M (7 perc séta)
A környék ideális választás mindazok számára, akik szeretnék élvezni a Balaton közelségét, a kikötő hangulatát és a nyugodt üdülőkörnyezetet, miközben fontos számukra a jó megközelíthetőség és a folyamatosan fejlődő balatoni infrastruktúra.
Kinek lehet ideális?
Balatoni nyaralót keresőknek
befektetőknek rövid vagy hosszú távú kiadásra
egyedülállóknak vagy pároknak
balatoni második otthont keresőknek
Az ingatlan azonnal birtokba vehető, így akár a következő szezonban már használatba is vehető.
Az ingatlan az OTP Ingatlanpont kínálatában érhető el, amely az OTP Bankcsoport szakmai hátterével biztosítja a biztonságos és átlátható ügyintézést. Igény esetén teljes körű támogatást nyújtunk finanszírozásban, jogi ügyintézésben és az adásvételi folyamat lebonyolításában.
Amennyiben szeretné személyesen is megtekinteni ezt a Balaton közeli, panorámás lakást, keressen bizalommal és egyeztessünk időpontot! Hitel.hu - Hasonlítsa össze a bankok lakáshitel ajánlatait
Tetszett ez az eladó Balatonkenesei új építésű 1 szobás tégla lakás? Hívd fel a hirdetőt most, és tudj meg mindent erről az eladó tégla lakásról! Ha gondolod nézelődj tovább az eladó lakás Balatonkenese oldal hirdetései között. Ennek az eladó lakásnak az ára 84900000 Ft és mivel az alapterülete 42 négyzetméter, ezért az átlagos négyzetméterára 2021429 HUF/m2.
Az eladó lakások menüpontban további hirdetések között is böngészhetsz. Ha van kedved, akkor böngészhetsz a Szűcs Attila összes hirdetése között, vagy akár a/az OTPip Veszprém Kossuth utca 8 - OTP Ingatlanpont Iroda összes hirdetése között is.

