Eladó új építésű lakás Balatonlelle
| Kedvencbe | Megosztás | Árfigyelő |
| Kedvezményes lakáshitel ajánlatok | ||
| 115 500 000 HUF | ||
Ingatlan adatai
- Eladó vagy kiadó:Eladó
- Település:Balatonlelle
- Kategória:Lakás
- Alkategória:Tégla
- Alapterület:80 m2
- Csere is:Nem
- Hirdető:Cég
- Élő videón megtekinthető:Nem
- Szobaszám:4
- Állapot:Új építésű
- Hány szintes az ingatlan:nincs megadva
- Komfortosság:Összkomfortos
- Hányadik emeleti:3
- Erkély:Van
- Parkolási lehetőség:Garázsban
- Fűtés:nincs megadva
- Bútorozottság:nincs megadva
- Fényviszony:nincs megadva
- Tájolás:nincs megadva
- Kilátás:nincs megadva
- Internet:nincs megadva
- Klíma:Van
- Akadálymentesített:nincs megadva
- Energiatanúsítvány:nincs megadva
- Villany:Van
- Víz:Van
- Gáz:Van
- Csatorna:Van
- Üzenetküldés
- Hívás


Hitel ajánlat
Ingatlan hirdetés leírása
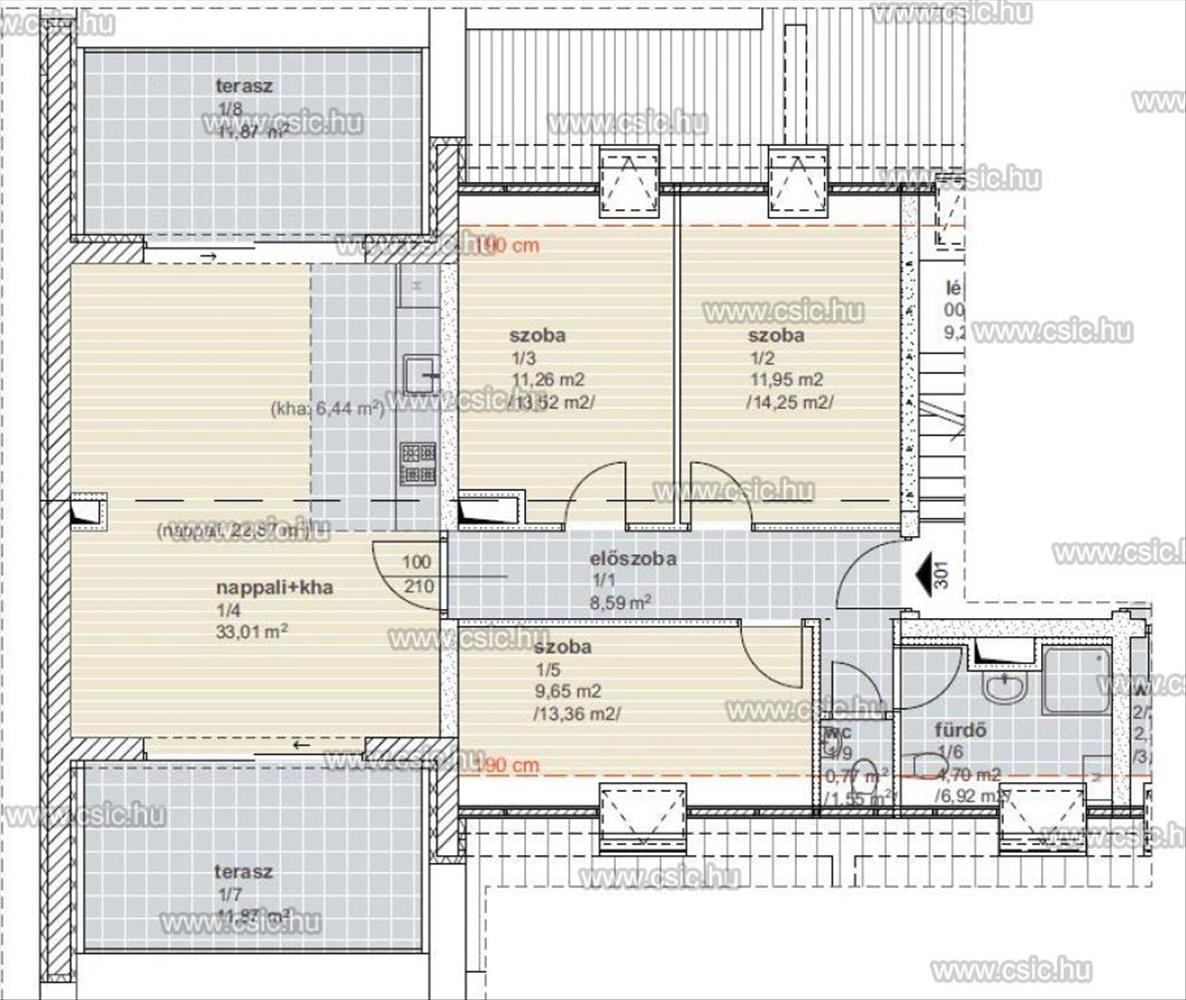
Eladó Balatonlellén, egy 80 nm-es nagy erkélyes lakás
Balatonlellén újépítésű, 4 szobás, teraszos lakás eladó a szabadstrand közelében.Befektetésnek és saját nyaralónak is tökéletes választás!
Balatonlelle frekventált, mégis csendes részén, a központhoz és a szabadstrandhoz közel kínálunk megvételre egy modern, divatos társasház 3. emeleti, 4 szobás, 2 nagy teraszos lakását.
Főbb jellemzők:
•80 m² lakótér
•2 db 12 m²-es terasz
•8, 7 m² (1, 9 m alatti terület)
•Amerikai konyhás nappali
•3 külön nyíló szoba
•Fürdőszoba + külön WC
•Előszoba-gardrób
•Modern hűtő-fűtő klíma
•Padlófűtés
Elhelyezkedés
•8–10 perc sétára a szabadstrand
•Közel a vitorláskikötőhöz
•Éttermek, üzletek a közelben
•Gyalogosan is könnyen elérhető buszmegálló és vasútállomás
•M7 autópálya kb. 30 Perc autóval
A lakás kertvárosias, térkövezett, csendes utcában található, kiváló infrastruktúrával.
Parkolás:
•Teremgarázsban parkolóhely külön vásárolható (nem része a vételárnak)
•Térkővel burkolt beálló a zárt kertben
•Az ingatlan újépítésű, megbízható, tapasztalt kivitelezőtől
Várható átadás: 2026. I. Negyedév CSOK Plusz igénybe vehető.
A hirdetésben található berendezett kép illusztráció.
Ideális választás befektetésnek (Balaton-parti kiadásra), nyaralónak vagy állandó otthonnak. Amennyiben a lakás felkeltette az érdeklődését, hívjon bizalommal bármikor! Hitel.hu - Hasonlítsa össze a bankok lakáshitel ajánlatait

