- >>
- eladó ingatlanok
- >>
- eladó lakás
- >>
- eladó lakás Balatonlelle
- >>
Eladó új építésű lakás - Balatonlelle
| | |||
| Kedvencnek jelölöm | Elküldöm emailben | Megosztás | Szavazás |
| FIX 3% lakáshitelre megvehető | |||
| 71 000 000 HUF | |||
Ingatlan adatai
- Eladó vagy kiadó:Eladó
- Település:Balatonlelle
- Kategória:Lakás
- Alkategória:Tégla
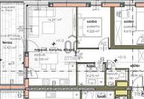
- Alapterület:67 m2
- Csere is:Nem
- Hirdető:Cég
- Élő videón megtekinthető:Nem
- Szobaszám:2
- Állapot:Új építésű
- Hány szintes az ingatlan:nincs megadva
- Komfortosság:nincs megadva
- Hányadik emeleti:nincs megadva
- Erkély:Van
- Lift:Van
- Parkolási lehetőség:nincs megadva
- Fűtés:nincs megadva
- Bútorozottság:nincs megadva
- Fényviszony:nincs megadva
- Tájolás:ÉNY
- Kilátás:Udvari
- Internet:nincs megadva
- Akadálymentesített:nincs megadva
- Energiatanúsítvány:nincs megadva
- Villany:Van
- Víz:Van
- Gáz:Nincs
- Csatorna:Van
- Üzenetküldés
- Hívás


Ingatlan hirdetés leírása
Eladó lakások Balatonlelle frekventált utcájában 60 m-re a sza...
Eladó lakások Balatonlelle frekventált utcájában 60 m-re a szabadstrandtól és 600 m-re a tengerparti feelinget nyújtó nagy strandtól.A 15 lakásos társasház magas műszaki és esztétikai minőségben készül, még 10 lakás keresi tulajdonosát.
Hatalmas üvegfelületek, igényes burkolatok! Alapterületük nettó 50 – 100 m2 közöttiek, 2-3 szobás apartmanok.
Legfelső szinten Penthouse lakások kerültek kialakításra.
A lakásokban Fan-coil berendezéssel lehet szabályozni a hőmérsékletet a megszokott többcsillagos szállodai minőségben.
A kivitelező már bizonyított, kifogástalan munkát végez, referenciák megtekinthetők.
Balatonlelle városa számos kikapcsolódási lehetőséget kínál. Nyáron nehéz választani, hogy a hangulatos Szent István tér és Móló sétány mellett, a cirkusz, vidámpark, szabadtéri színpad, mozi, vagy éppen a rendezvény park programját látogassuk.
Tisztelt érdeklődő, garantálom nem fog csalódni.
Amennyiben felkeltettem érdeklődését, kérem hívjon bizalommal!
Átadás: 2026 harmadik negyedévtől folyamatosan.
- A-1-4
- lift!
- Magas műszaki minőség
- Penthouse apartmanok
- Fan-coil klíma
- erkély
- gk parkoló vásárolható FIX 3% lakáshitelre megvehető


