Eladó új építésű lakás - Balatonszemes
- INGYENES HIRDETÉS FELADÁS
Ingatlan adatai
- Eladó vagy kiadó:Eladó
- Település:Balatonszemes
- Kategória:Lakás
- Alkategória:Tégla
- Alapterület:84 m2
- Csere is:Nem
- Hirdető:Cég
- Élő videón megtekinthető:Nem
- Szobaszám:3
- Állapot:Új építésű
- Hány szintes az ingatlan:nincs megadva
- Komfortosság:nincs megadva
- Hányadik emeleti:2
- Erkély:nincs megadva
- Lift:nincs megadva
- Parkolási lehetőség:nincs megadva
- Fűtés:Egyedi
- Bútorozottság:nincs megadva
- Fényviszony:nincs megadva
- Tájolás:nincs megadva
- Kilátás:nincs megadva
- Internet:nincs megadva
- Klíma:nincs megadva
- Akadálymentesített:nincs megadva
- Energiatanúsítvány:nincs megadva
- Villany:nincs megadva
- Víz:nincs megadva
- Gáz:nincs megadva
- Csatorna:nincs megadva
- Kapcsolatfelvétel

Hitel ajánlatok
Ingatlan hirdetés leírása
Eladó PANORÁMÁS vízparti lakás Balatonszemesen
Panorámás társasházi lakások a Balaton SZOMSZÉDSÁGÁBAN!
A lido home ingatlan siófoki irodája eladásra kínálja ezt az új építésű, prémium minőségű balatoni panorámás lakást balatonszemesen közvetlen a Balaton partja mellett.
Balatonszemes Balaton parti részén most épülő, liftes társasházban kínálunk többféle áron és méretben lakásokat. Kiváló választás befektetők, családok, egyedülállók részére.
Az épületek gyönyörű természeti környezetbe tervezett mutatós, modern stílusú hatást keltenek.
Az emeleti lakások meghatározó eleme a páratlan kilátást biztosító terasz, amely az épületek felfelé szűkülő, földszint + 3 emelet kialakítású tömege miatt kifejezetten kényelmes használatot tesz lehetővé.
A beruházás részeként a telken belül a zöldterületen gyerekeknek játszótér készül.
AZONNAL birtokba VEHETŐEK!
A lakások a legkorszerűbb technológiával és anyagokkal készülnek, minden lakás energiatakarékos Panasonic hőszivattyúval ellátottak.
Hűtő-fűtő Fan-coil oldalfali egységgel, melegvízellátás Ariston villanybojlerrel. H-tarifás villanyóra.
Parkolóhely vásárolható 5m forintért. Tároló 1, 6m forint.
A beruházó az udvaron játszótér elhelyezésével gondolt a családok igényére, szabadtéri fitness parkkal pedig a nyaralni vágyóknak.
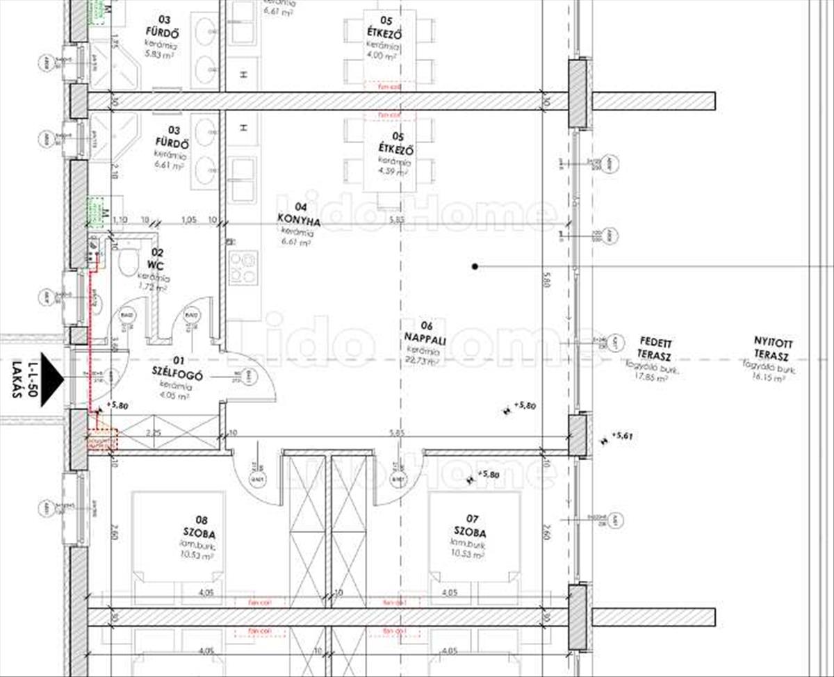
Jelen hirdetésben szereplő L50. Sz. Lakás jellemzői:
- 2. emeleti,
- K-i fekvésű,
- 67 m2 terület + 34 m2 fedett terasz,
- nappali + kettő szobás,
- rendezett jogi helyzet, lakásonként önálló helyrajzi szám.
Bármilyen kérdés esetén szívesen állok rendelkezésre.
Siessen, előzze meg a többi érdeklődőt, hogy az Öné legyen ez a kiváló lakás!
Amennyiben a lido home által kínált balatonszemesi lakás, vagy bármely a kínálatunkban található egyéb ingatlan felkeltette az érdeklődését, hívjon a megadott telefonszámon.
Vásárolna, de nincs rá keret? Kollégám díjmentes, bank semleges hitel ügyintézéssel áll rendelkezésére.
LIDO home- Ingatlanok egy életen át! Hitel.hu - Hasonlítsa össze a bankok lakáshitel ajánlatait
Tetszett ez az eladó Balatonszemesi új építésű 3 szobás tégla lakás? Hívd fel a hirdetőt most, és tudj meg mindent erről az eladó tégla lakásról! Ha gondolod nézelődj tovább az eladó lakás Balatonszemes oldal hirdetései között. Ennek az eladó lakásnak az ára 132900000 Ft és mivel az alapterülete 84 négyzetméter, ezért az átlagos négyzetméterára 1582143 HUF/m2.
Az eladó lakások menüpontban további hirdetések között is böngészhetsz. Ha van kedved, akkor böngészhetsz a Tódor Dominik összes hirdetése között, vagy akár a/az Lido Home Siófok összes hirdetése között is.
További hirdetéseket találsz az eladó Balaton déli parti nyaralók között. Ha a teljes régió kínálata érdekel, nézd meg az eladó Balatoni nyaralók oldalt.

