Eladó új építésű lakás - Baracska
- INGYENES HIRDETÉS FELADÁS
Ingatlan adatai
- Eladó vagy kiadó:Eladó
- Település:Baracska
- Kategória:Lakás
- Alkategória:Tégla
- Alapterület:92 m2
- Csere is:Nem
- Hirdető:Cég
- Élő videón megtekinthető:Nem
- Szobaszám:4
- Állapot:Új építésű
- Hány szintes az ingatlan:Földszintes
- Komfortosság:nincs megadva
- Hányadik emeleti:1
- Erkély:nincs megadva
- Lift:Nincs
- Parkolási lehetőség:nincs megadva
- Fűtés:Hőszivattyús
- Bútorozottság:nincs megadva
- Fényviszony:Napfényes
- Tájolás:NY
- Kilátás:nincs megadva
- Internet:nincs megadva
- Klíma:nincs megadva
- Akadálymentesített:nincs megadva
- Energiatanúsítvány:A+
- Villany:Van
- Víz:Van
- Gáz:nincs megadva
- Csatorna:Van
- Kapcsolatfelvétel

Szabó Nikolett
+36-(30)-513-7379
Mondd meg a hirdetőnek, hogy a megveszLAK-on találtad a hirdetést.
Referencia szám: LK029506
Hitel ajánlatok
Ingatlan hirdetés leírása
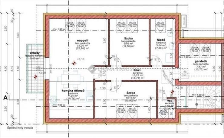
Eladó lakás, Baracska
Hőszivattyús lakás eladó 4 lakásos TÁRSASHÁZBAN!
Baracskán most épülő 4 lakásos társasházban 3 szoba + nappalis emeleti lakás eladó!
Az építkezés folyamatos, jelenleg a tetőszerkezet épül illetve a víz- és villanyhálózat kialakítása zajlik az alsó lakásoknál.
Amennyiben jó áron keresi leendő otthonát, már meg is találta. Elosztása átgondolt, vevői igényeknek tökéletesen megfelelő tervezéssel épül.
Az ingatlanról:
- brutto 92nm /netto 70nm + 6nm erkély
- 3 szoba + amerikai konyhás nappali
- fürdőszoba wc-vel + külön mellékhelyiség
- kocsibeálló
Pár műszaki adat:
- hőszivattyús fűtés padlófűtéssel
- 30-as Bakonytherm téglafalazat
- 15cm dryvit homlokzati szigetelés
- E gerendás betonfödém
- födémben 20cm kőzetgyapot szigetelés
- cserépfedés antracit színben
- 3rtg. 6 Légkamrás nyílászárók
- külön bejárat
- burkolatok, beltéri ajtók, szaniterek stb. Meghatározott árig választhatóak
A műszaki tartalom illetve a teljes tervdokumentáció rendelkezésre áll, referincia munkák megtekinthetőek.
A lakások a 2025/2026-os év kedvezményes feltételeivel is megvásárolhatóak.
A környék nagyon csendes, rendezett, tipikus kertvárosi hangulat. Pár perces sétatávolságra buszmegálló elérhető, vasútállomás inkább autóval megközelíthető pár perc alatt, M7-es autópálya szintén.
Baracska egyre keresetebb a még megfizethető árú ingatlanok miatt, így nem érdemes habozni:)
Átadás: 2026. Tavasz FIX 3% lakáshitelre megvehető
Tetszett ez az eladó Baracskai új építésű 4 szobás tégla lakás? Hívd fel a hirdetőt most, és tudj meg mindent erről az eladó tégla lakásról! Ha gondolod nézelődj tovább az eladó lakás Baracska oldal hirdetései között. Ennek az eladó lakásnak az ára 54900000 Ft és mivel az alapterülete 92 négyzetméter, ezért az átlagos négyzetméterára 596739 HUF/m2.
Az eladó lakások menüpontban további hirdetések között is böngészhetsz. Ha van kedved, akkor böngészhetsz a Szabó Nikolett összes hirdetése között, vagy akár a/az Duna House Érd, Riminyáki út összes hirdetése között is.

