Eladó új építésű lakás - Bicske
- INGYENES HIRDETÉS FELADÁS
Ingatlan adatai
- Eladó vagy kiadó:Eladó
- Település:Bicske
- Kategória:Lakás
- Alkategória:Tégla
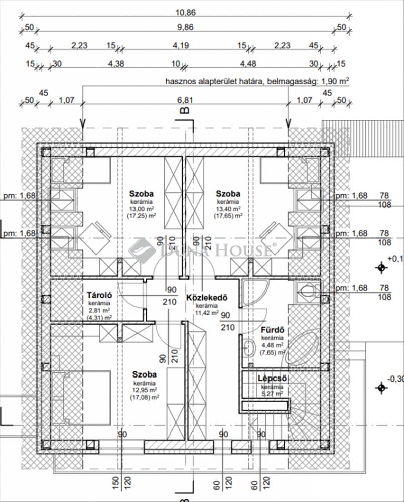
- Alapterület:135 m2
- Csere is:Nem
- Hirdető:Cég
- Élő videón megtekinthető:Nem
- Szobaszám:5
- Állapot:Új építésű
- Hány szintes az ingatlan:Földszintes
- Komfortosság:nincs megadva
- Hányadik emeleti:Földszint
- Erkély:nincs megadva
- Lift:Nincs
- Parkolási lehetőség:nincs megadva
- Fűtés:Hőszivattyús
- Bútorozottság:nincs megadva
- Fényviszony:Napfényes
- Tájolás:DK
- Kilátás:nincs megadva
- Internet:nincs megadva
- Klíma:nincs megadva
- Akadálymentesített:nincs megadva
- Energiatanúsítvány:nincs megadva
- Villany:Van
- Víz:Van
- Gáz:nincs megadva
- Csatorna:Van
- Kapcsolatfelvétel

Brumus Krisztina Gréta
+36-(30)-329-7029
Mondd meg a hirdetőnek, hogy a megveszLAK-on találtad a hirdetést.
Referencia szám: LK078448
Hitel ajánlatok
Ingatlan hirdetés leírása
Eladó lakás, Bicske, Eladó új építésű lakás - Bicske
Eladó egy lenyűgöző, kivételesen energiatakarékos a+ energetikai besorolású családi ház Bicske kertvárosi részén, mely közel esik a boltokhoz, így a mindennapok kényelme garantált. Ez a napfényes otthon egy modern hőszivattyús fűtésrendszerrel, padlófűtéssel rendelkezik, amely kifinomult komfortérzetet biztosít az otthon minden szegletében. Ne hagyja ki ezt a ritka lehetőséget, hogy a Bicskei kertváros részén lévő, minden modern kényelemmel felszerelt otthon tulajdonosa legyen. Vegye fel a kapcsolatot, hogy személyesen is megismerkedhessen ezzel a különleges ingatlannal. 500 Nm telek jár az ingatlanhoz, kertkapcsolattal. Az otthon nemcsak praktikus, hanem elegáns is. a tér tágas elrendezése és a 16 négyzetméteres terasz kiváló lehetőséget kínál a pihenésre és a családi, baráti összejövetelekre egyaránt. Az ingatlan sokoldalúsága teszi azt igazán vonzóvá, hiszen alkalmas mind azok számára, akik a városi élet nyüzsgéséhez közel, de mégis nyugodt, zöldövezeti környezetben szeretnének élni. a ház 30-as téglából épült, 15 centiméteres szigeteléssel és 3 rétegű nyílászárókkal van felszerelve, ami hozzájárul a hőmérséklet optimális szabályozásához a hideg hónapokban is. a klímaberendezések minden helységben jelen vannak, és megkönnyítik a nyári hónapokat, így egész évben kellemes a lakókörnyezet.
Referencia szám: lk078448 FIX 3% lakáshitelre megvehető

