- >>
- eladó ingatlanok
- >>
- eladó lakás
- >>
- eladó lakás Bicske
- >>
Eladó új építésű lakás - Bicske
| | |||
| Kedvencnek jelölöm | Elküldöm emailben | Megosztás | Szavazás |
| FIX 3% lakáshitelre megvehető | |||
| 99 900 000 HUF | |||
Ingatlan adatai
- Eladó vagy kiadó:Eladó
- Település:Bicske
- Kategória:Lakás
- Alkategória:Tégla
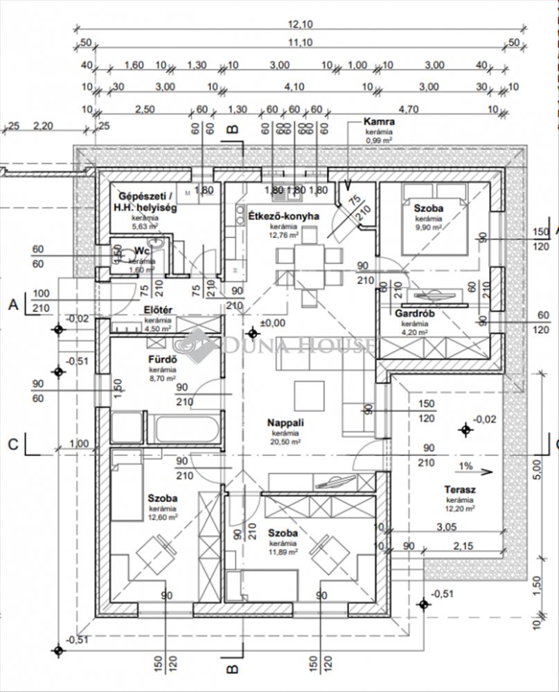
- Alapterület:92 m2
- Csere is:Nem
- Hirdető:Cég
- Élő videón megtekinthető:Nem
- Szobaszám:3
- Állapot:Új építésű
- Hány szintes az ingatlan:Földszintes
- Komfortosság:nincs megadva
- Hányadik emeleti:Földszint
- Lift:Nincs
- Parkolási lehetőség:nincs megadva
- Fűtés:Hőszivattyús
- Bútorozottság:nincs megadva
- Fényviszony:Napfényes
- Tájolás:DK
- Kilátás:nincs megadva
- Internet:nincs megadva
- Klíma:Van
- Akadálymentesített:nincs megadva
- Energiatanúsítvány:A+
- Villany:Van
- Víz:Van
- Gáz:nincs megadva
- Csatorna:Van
- Üzenetküldés
- Hívás

Referencia szám: LK030208

Hitel ajánlat
Ingatlan hirdetés leírása
Eladó lakás, Bicske, Eladó új építésű lakás - Bicske
Eladó egy gyönyörű, a+ energetikai besorolású családi otthon Bicske kertvárosi részén, közel a boltokhoz. Ez a napfényes ingatlan egy 500 m²-es telken helyezkedik el, és egy modern, Ytong téglából épült, padlófűtéssel, 10 cm-es szigeteléssel, háromrétegű nyílászárókkal felszerelt házat kínál leendő tulajdonosának. a ház hőszivattyús fűtési rendszerrel van ellátva, amely egész évben biztosítja az optimális hőmérsékletet és jelentős mértékben csökkenti a rezsiköltségeket.Ez az ingatlan tökéletes választás azok számára, akik egy csendes, zöldövezeti környezetben szeretnének élni, de mégis fontos számukra, hogy könnyen és gyorsan elérhető legyenek a helyi szolgáltatások. Ne hagyja ki ezt a kiváló lehetőséget, hívjon most, hogy megbeszélhessünk egy megtekintési időpontot és saját szemével is meggyőződhessen erről a különleges ingatlanról!
A kényelmet tovább növeli egy praktikus, két autó számára kialakított garázs, valamint egy tágas, 13 m²-es terasz, ahol a család és a barátok kellemes órákat tölthetnek együtt a szabadban. a kivételes minőségű építőanyagok és a modern műszaki megoldások biztosítják az új tulajdonos számára nem csupán egy csodálatos otthont, de egy rendkívül energiahatékony és fenntartható lakóteret is. FIX 3% lakáshitelre megvehető

