Eladó új építésű lakás - Bocfölde
- INGYENES HIRDETÉS FELADÁS
Ingatlan adatai
- Eladó vagy kiadó:Eladó
- Település:Bocfölde
- Kategória:Lakás
- Alkategória:Tégla
- Alapterület:216 m2
- Csere is:Nem
- Hirdető:Cég
- Élő videón megtekinthető:Nem
- Szobaszám:4
- Állapot:Új építésű
- Hány szintes az ingatlan:nincs megadva
- Komfortosság:nincs megadva
- Hányadik emeleti:nincs megadva
- Erkély:nincs megadva
- Lift:nincs megadva
- Parkolási lehetőség:Garázsban
- Fűtés:nincs megadva
- Bútorozottság:nincs megadva
- Fényviszony:nincs megadva
- Tájolás:nincs megadva
- Kilátás:nincs megadva
- Internet:nincs megadva
- Klíma:nincs megadva
- Akadálymentesített:nincs megadva
- Energiatanúsítvány:nincs megadva
- Villany:Van
- Víz:Van
- Gáz:nincs megadva
- Csatorna:Van
- Kapcsolatfelvétel

Berki Mónika
+36-(20)-461-9075
Mondd meg a hirdetőnek, hogy a megveszLAK-on találtad a hirdetést.
Hitel ajánlatok
Ingatlan hirdetés leírása
PRÉMIUM, PANORÁMÁS ÚJ ÉPÍTÉSŰ CSALÁDI HÁZ BOCHFÖLDÉN – ZALAEGE...
Egy új építésű ház, amelynek a kilátása már most eldönti, hogy beleszeret-e.
Bocfölde egyik legszebb panorámás részén, mindössze néhány perc autóútra Zalaegerszeg városától kínálok megvételre egy új építésű, modern családi házat, amely egy 2275 m²-es telken valósul meg, nyugodt, zöld környezetben.
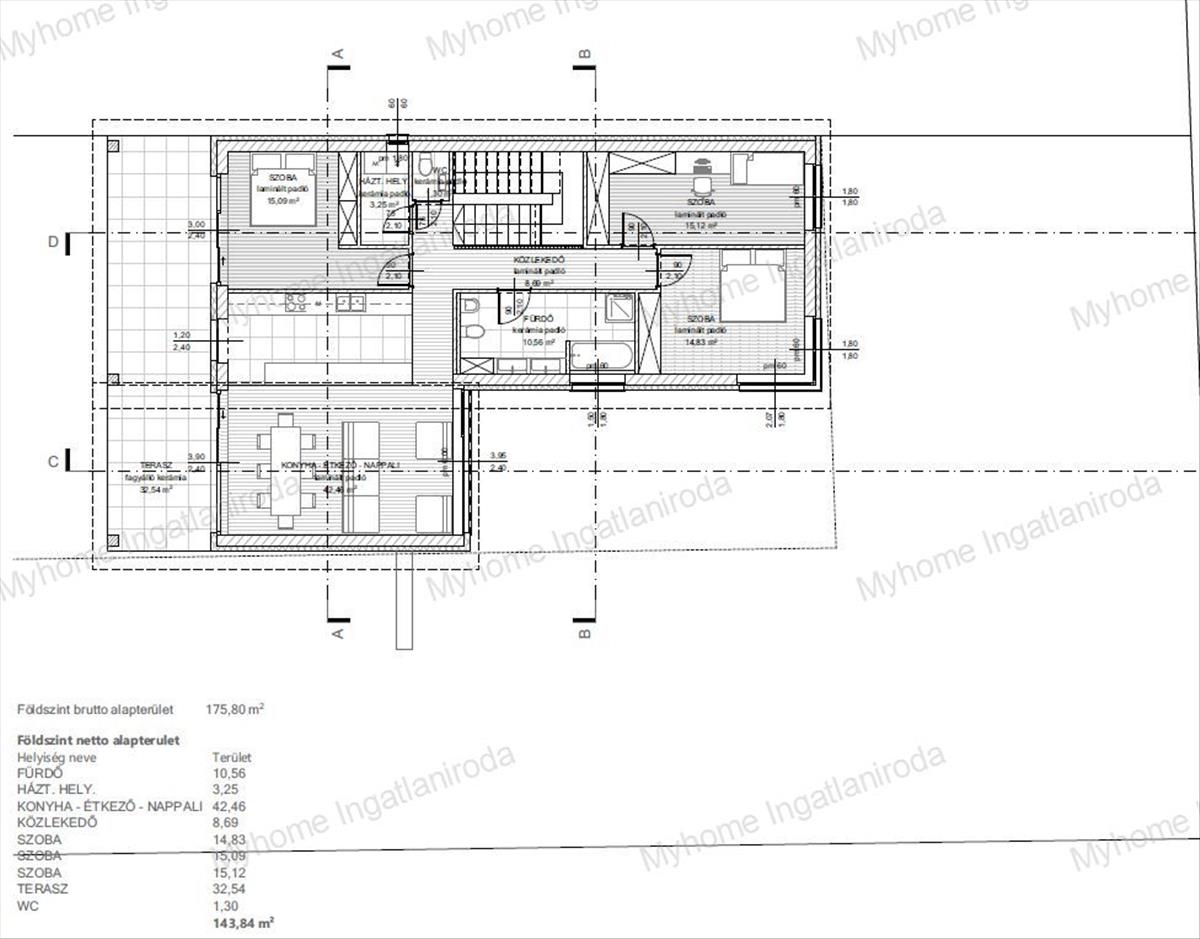
Az ingatlan 216 m² nettó alapterületű, két szinten kialakított, átgondolt elrendezéssel. a tervezésnél a tágas terek, a természetes fény és a kényelmes családi élet volt a fő szempont.
A felső lakószinten egy amerikai konyhás nappali–étkező, három hálószoba, fürdőszoba, háztartási helyiség és külön wc kap helyet. a nappaliból közvetlen kijárat nyílik a 32 m²-es panorámás teraszra, amely a ház egyik legkülönlegesebb pontja.
Az alsó szinten 38 m²-es dupla garázs, előtér, fürdőszoba, két tároló és a gépészeti helyiség található.
Műszaki tartalom
• 30 cm Porotherm tégla falazat
• 20 cm homlokzati szigetelés
• háromrétegű műanyag nyílászárók
• betonfödém
• antracit tetőcserép
• hőszivattyús fűtés padlófűtéssel
Az ingatlan jelenleg kivitelezés alatt áll, így a leendő tulajdonos – megfelelő időben történő megállapodás esetén – bizonyos részletekben még alakíthatja a belső kialakítást.
A telek mérete és az elhelyezkedés külön értéket képvisel:
a ház panorámás környezetben, csendes utcában épül, miközben Zalaegerszeg infrastruktúrája perceken belül elérhető.
Főbb adatok
• telek: 2275 m²
• nettó alapterület: 216 m²
• szobák száma: nappali + 3 háló
• 32 m² terasz
• 38 m² dupla garázs
• új építés, modern gépészet
• panorámás elhelyezkedés
Az ingatlan ideális választás lehet azok számára, akik új építésű, korszerű családi házat keresnek Zalaegerszeg közvetlen közelében, nagy telekkel és nyugodt környezetben.
Részletes műszaki információkért, a kivitelezés jelenlegi állapotáról, illetve személyes bemutatásért keressen bizalommal.
A hirdetésben a kivitelezés jelenlegi állapotáról készült saját fotók láthatók.
A vásárlás teljes folyamatában segítséget nyújtok: bankfüggetlen hitelügyintézés, pénzügyi tanácsadás, támogatások ügyintézése és megbízható ügyvédi háttér is rendelkezésre áll. Igény esetén lakberendezési tanácsadó bevonásában is segítek, hogy az új otthon valóban az elképzelések szerint valósuljon meg. Érdeklődés és további információ esetén keressen bizalommal.
Az ingatlanban otthon
Myhome Hitel.hu - Hasonlítsa össze a bankok lakáshitel ajánlatait
Tetszett ez az eladó Bocföldei új építésű 4 szobás tégla lakás? Hívd fel a hirdetőt most, és tudj meg mindent erről az eladó tégla lakásról! Ha gondolod nézelődj tovább az eladó lakás Bocfölde oldal hirdetései között. Ennek az eladó lakásnak az ára 139000000 Ft és mivel az alapterülete 216 négyzetméter, ezért az átlagos négyzetméterára 643519 HUF/m2.
Az eladó lakások menüpontban további hirdetések között is böngészhetsz. Ha van kedved, akkor böngészhetsz a Berki Mónika összes hirdetése között, vagy akár a/az Myhome Ingatlaniroda összes hirdetése között is.

