Eladó felújított lakás Budakalász
| Kedvencbe | Megosztás | Árfigyelő |
| FIX 3% lakáshitelre megvehető | ||
| 84 900 000 HUF | ||
Ingatlan adatai
- Eladó vagy kiadó:Eladó
- Település:Budakalász
- Kategória:Lakás
- Alkategória:Tégla
- Alapterület:63 m2
- Csere is:Nem
- Hirdető:Cég
- Élő videón megtekinthető:Nem
- Szobaszám:3
- Állapot:Felújított
- Hány szintes az ingatlan:nincs megadva
- Komfortosság:Összkomfortos
- Kertkapcsolatos:Igen
- Hányadik emeleti:nincs megadva
- Parkolási lehetőség:Beállóban
- Fűtés:nincs megadva
- Bútorozottság:nincs megadva
- Fényviszony:nincs megadva
- Tájolás:nincs megadva
- Kilátás:nincs megadva
- Internet:nincs megadva
- Klíma:Van
- Akadálymentesített:nincs megadva
- Energiatanúsítvány:nincs megadva
- Villany:Van
- Víz:Van
- Gáz:nincs megadva
- Csatorna:Van
- Üzenetküldés
- Hívás


Hitel ajánlat
Ingatlan hirdetés leírása
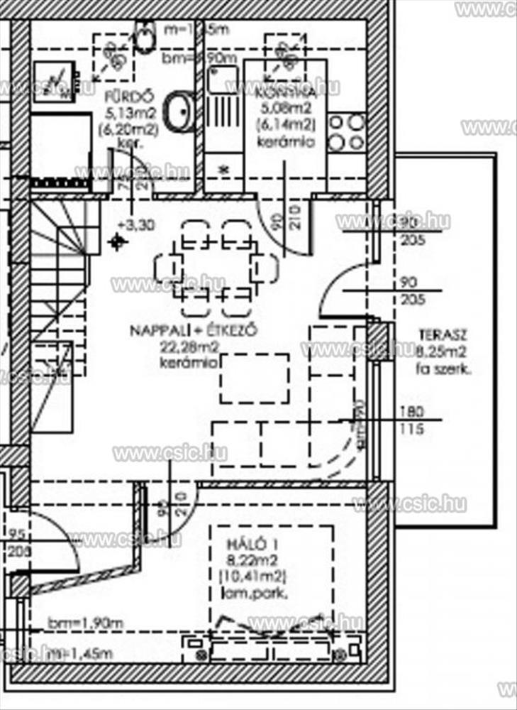
BUDAKALÁSZ lakás 63 nm, belső kétszintes 3 szoba
Eladó, azonnal költözhető-budakalász új, zárt rendszerű lakóparkjában, BELSŐ KÉTSZINTES(emelet+tetőtér) lakás eladó, kulcsrakész állapotban, saját kocsibeállóval, 3 perc sétára a Hévtől- kizárólag a családi ingatlan KÍNÁLATÁBAN!A lakás megvásárlásához osp (otthon start hitel) is igénybe vehető, 40 % önerővel. Frissen, teljeskörűen felújított lakás.
FANTASZTIKUS lehetőség kamasz gyerekkel, vagy külön home office szinttel- igazi fiatalos, modern LAKÁS!
Az eladó lakás alapadatai:
•nyugati fekvés
•63 m2 alapterület
•8 m2 terasz
•1 kocsibeálló
•49 m2 saját telekrész (kis kertecske)
•amerikai konyhás nappali az emeleten, káddal és zuhannyal fürdő-mosdó, 1 szoba; tetőtér: szoba és wc mosdó
•6 m2 saját TÁROLÓ
A lakás műszaki-és egyéb JELLEMZŐI:
• téglából épül+ 15 cm szigetelés
• új villany- és gépészeti vezetékek
• egyedi elektromos fűtés, padlófűtés, H tarifa
• extra alacsony rezsi költség
• 7 kamrás, 3 rétegű új műanyag ablakok, bukó-nyíló és szellőztető
• tv és internet kiállások minden szobában
• riasztó előkészítés, klíma előkészítés
• Hév közeli (5-6 perc séta)
Minden infrastruktúra a közvetlen közelben: óvoda, iskola, bevásárlás, Hév, stb.
Ha eladandó ingatlanja van, szakértő értékbecslését bízza rám; 18 éves tapasztalattal, értékesítési vezetőként profi árazást biztosítok.
Az ingatlanok megvásárlásához ingyenes hitelügyintézéssel, ügyvédi, jogi, pénzügyi segítséggel állunk rendelkezésére, minden egy helyen a családi ingatlan pomázi irodájában. FIX 3% lakáshitelre megvehető

