Eladó jó állapotú lakás - Budapest I. kerület
- INGYENES HIRDETÉS FELADÁS
Ingatlan adatai
- Eladó vagy kiadó:Eladó
- Település:Budapest I. kerület
- Kategória:Lakás
- Alkategória:Tégla
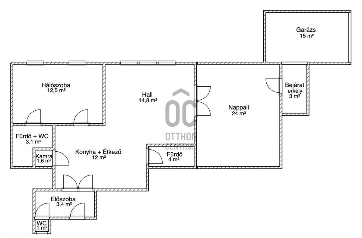
- Alapterület:95 m2
- Csere is:Nem
- Hirdető:Cég
- Élő videón megtekinthető:Nem
- Szobaszám:3
- Állapot:Jó állapotú
- Hány szintes az ingatlan:nincs megadva
- Komfortosság:nincs megadva
- Hányadik emeleti:nincs megadva
- Erkély:Van
- Lift:nincs megadva
- Parkolási lehetőség:nincs megadva
- Fűtés:Gáz (cirko)
- Bútorozottság:nincs megadva
- Fényviszony:nincs megadva
- Tájolás:ÉK
- Kilátás:Udvari
- Internet:nincs megadva
- Klíma:nincs megadva
- Akadálymentesített:nincs megadva
- Energiatanúsítvány:nincs megadva
- Villany:Van
- Víz:Van
- Gáz:Van
- Csatorna:Van
- Közös költség:34 000 Ft
- Kapcsolatfelvétel

Pongrácz Rita
+36-(70)-388-6131
Mondd meg a hirdetőnek, hogy a megveszLAK-on találtad a hirdetést.
Ingatlan hirdetés leírása
Kuriózum lakás a Budai Vár tövében Saját garázzsal, privát be...
Kuriózum lakás a Budai Vár tövében
Saját garázzsal, privát bejárattal, panorámával és elképesztő hangulattal!
Ez nem csak egy lakás – ez egy életstílus.
A Budai Vár alatt, az August-udvar exkluzív épületében kínáljuk ezt a 95 m²-es gyöngyszemet, ami egyszerre városi és meghitt, modern és történelmi, stílusos és praktikus.
Összesen 95 m²
– Lakás: 77 m²
– Saját garázs: 15 m² + 20 M Ft
– Erkély: 3 m²
– Saját pince-tároló: 6 m²
Mi teszi igazán különlegessé:
Privát bejárat közvetlenül a garázsból – szomszédok nélkül, teljes intimitásban.
3 Méteres belmagasság, tágas terek, három szoba, dupla fürdőszoba (az egyik közvetlenül a hálóból).
Erkély a Várra és a Várkertre néző panorámával.
Világos, mégis kellemesen hűvös nyáron, meleg télen.
Teljes körű felújítás 2020-ba– új vezetékek, tölgyfa parketta, hő- és hangszigetelt nyílászárók, modern fűtésrendszer.
Belépések két irányból:
1. a társasház főbejáratán keresztül, lifttel, az Attila útról.
2. Közvetlenül a saját garázsból, ahonnan egyenesen a nappaliba léphetsz
Felszereltség:
Az ingatlan ízlésesen, teljesen berendezve eladó.
A bútorok és berendezések kérésre az ár részét képezhetik.
Azonnal költözhető vagy kiadható – eddig 1400 €/hó + rezsi áron bérbe adták.
Környezet:
Csendes, zöld, mégis a város szívében.
2 Perc séta a Ybl Miklós tér és a Várkert Bazár, miközben a környék a Budai Vár felújítási programjával folyamatosan értékelődik.
A házban kisbolt, étterem és közösségi kávézó is található – minden kéznél.
Parkolás:
Saját, 15 m²-es garázs + 20 000 000Ft
A garázs előtti részen további autó is parkolhat
Kinek ajánljuk:
Diplomatáknak, felsővezetőknek, pároknak, vagy bárkinek, aki a privát luxust, a történelmi környezetet és a letisztult eleganciát** keresi – akár saját otthonnak, akár befektetésnek.
Ez az a lakás, ahol a Vár alatti történelem találkozik a mai élet kényelmével.
Budai hangulat, pesti ritkaság – egyetlen kulccsal. Hitel.hu - Hasonlítsa össze a bankok lakáshitel ajánlatait


