Eladó jó állapotú lakás Budapest I. kerület
| Kedvencbe | Megosztás | Árfigyelő |
| Kedvezményes lakáshitel ajánlatok | ||
| 146 000 000 HUF | ||
Ingatlan adatai
- Eladó vagy kiadó:Eladó
- Település:Budapest I. kerület
- Kategória:Lakás
- Alkategória:Tégla
- Alapterület:92 m2
- Csere is:Nem
- Hirdető:Cég
- Élő videón megtekinthető:Nem
- Szobaszám:3
- Állapot:Jó állapotú
- Hány szintes az ingatlan:Földszintes
- Komfortosság:nincs megadva
- Hányadik emeleti:2
- Erkély:Van
- Lift:Nincs
- Parkolási lehetőség:Utcán
- Fűtés:Gáz (cirko)
- Bútorozottság:nincs megadva
- Fényviszony:Jó
- Tájolás:ÉNY
- Kilátás:Panorámás
- Internet:nincs megadva
- Klíma:Van
- Akadálymentesített:nincs megadva
- Energiatanúsítvány:nincs megadva
- Villany:Van
- Víz:Van
- Gáz:nincs megadva
- Csatorna:Van
- Üzenetküldés
- Hívás

Referencia szám: LK037988

Hitel ajánlat
Ingatlan hirdetés leírása
Eladó lakás, Budapest 1. ker.
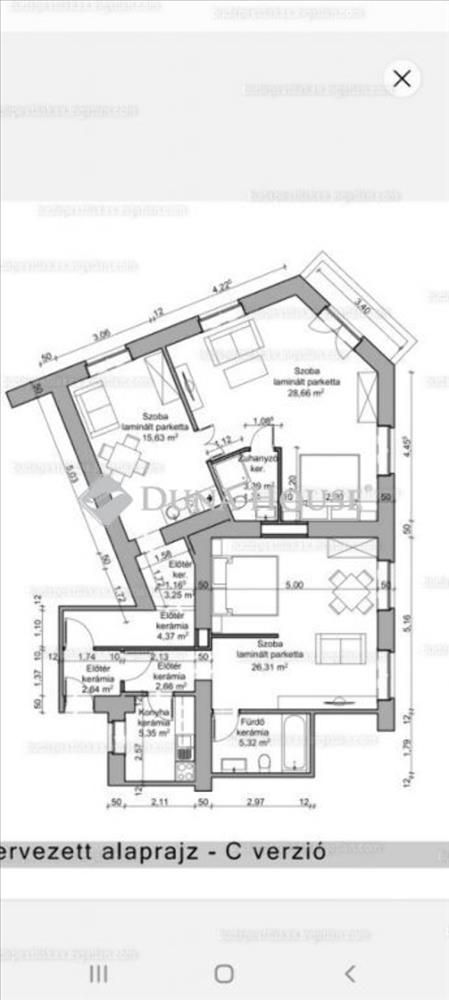
Budapest 1. kerületben a Várnegyed lábánál, eladó egy Horváth kertre panorámás 2. emeleti, 92 nm nagyságú erkélyes, jó állapotú lakás.A ház 1869-ben épült, megőrizvén a múlt hangulatát. Belső folyosói újra lettek kövezve, falai festve. Lakói gondoskodnak arról, hogy a ház rendezett, szép állapotban legyen.
A lakás két apartmanra lett osztva, melynek bejáratai egy közös előszobából nyílnak.
A nagyobbik lakrész 47 nm, helységei: előszoba, konyha étkezővel, fürdő WC-vel, zuhannyal, és egy 29 nm -es tágas sarokszoba, erkéllyel.
A kisebbik lakrész 39 nm, helységei: előszoba, konyha, fürdő WC-vel, káddal, és egy 26 nm-es tágas szoba.
Minden szoba rendelkezik hűtő-fűtő klímával, fő fűtése: cirkó, mely 2025 év végén lett újra cserélve.
Kiváló bérbeadásra, saját lakrész és iroda kialakítására, szülők és felnövekvő gyermekük együtt, de mégis külön lakhatására.
146000000 Ft
Várom hívását. Üdvözlettel.
Glazov Judit
+36 30 633 4553
glazov. Judit@dh. Hu
Referencia szám: lk037988-ml Hitel.hu - Hasonlítsa össze a bankok lakáshitel ajánlatait

