Eladó újszerű állapotú lakás - Budapest II. kerület
- INGYENES HIRDETÉS FELADÁS
Ingatlan adatai
- Eladó vagy kiadó:Eladó
- Település:Budapest II. kerület
- Kategória:Lakás
- Alkategória:Tégla
- Alapterület:180 m2
- Csere is:Nem
- Hirdető:Cég
- Élő videón megtekinthető:Nem
- Szobaszám:4 + 1 fél
- Állapot:Újszerű, kitűnő
- Hány szintes az ingatlan:3 szintes
- Komfortosság:nincs megadva
- Kertkapcsolatos:Igen
- Hányadik emeleti:nincs megadva
- Erkély:nincs megadva
- Lift:nincs megadva
- Parkolási lehetőség:Garázsban
- Fűtés:nincs megadva
- Bútorozottság:nincs megadva
- Fényviszony:nincs megadva
- Tájolás:nincs megadva
- Kilátás:nincs megadva
- Internet:nincs megadva
- Klíma:Van
- Akadálymentesített:nincs megadva
- Energiatanúsítvány:nincs megadva
- Villany:nincs megadva
- Víz:nincs megadva
- Gáz:nincs megadva
- Csatorna:nincs megadva
- Kapcsolatfelvétel

Mlinárcsik Kata
+36-(30)-398-6960
Mondd meg a hirdetőnek, hogy a megveszLAK-on találtad a hirdetést.
Hitel ajánlatok
Ingatlan hirdetés leírása
Eladó Pasaréten 185nm 4+1 sz Luxus lakás. Az egykori Szécheny...
Eladó Pasaréten 185nm 4+1 sz Luxus lakás.
Az egykori Széchenyi kastély vadászházából került kialakításra. a lakás bensőséges hangulatát, kényelmét, az egyedi, belsőépítész által megálmodott, design elemek, nemes anyagok, finom megoldások és a legkorszerűbb műszaki tartalom biztosítja.
Az egész társasház teljes felújításon esett át 2020 év végéig. Az eredetileg 32 nm -es lakás kibővítésre került, építési engedélyes átalakítás volt, a mai 3 szintes állapotra, így új építésűnek minősül.
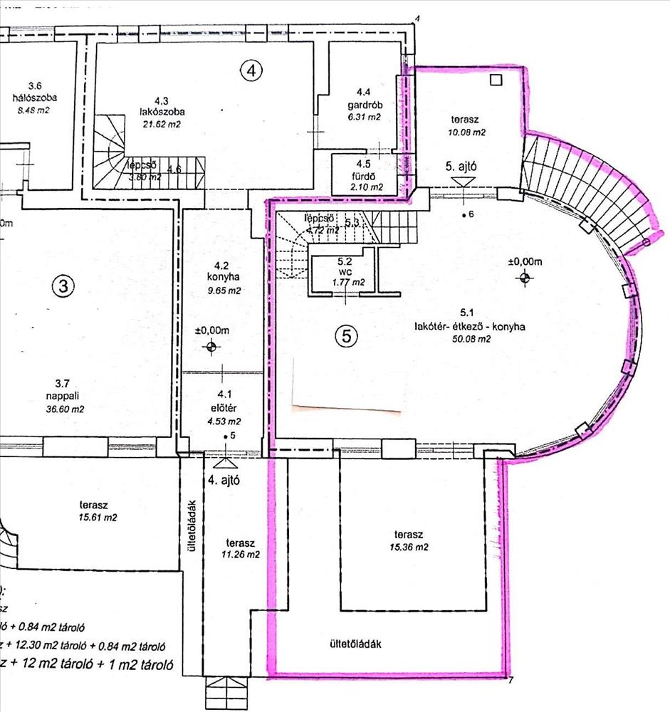
Az ingatlan egy öt lakásos társasház fő albetétjeként funkcionál, amely valójában egy teljes értékű, modern villa
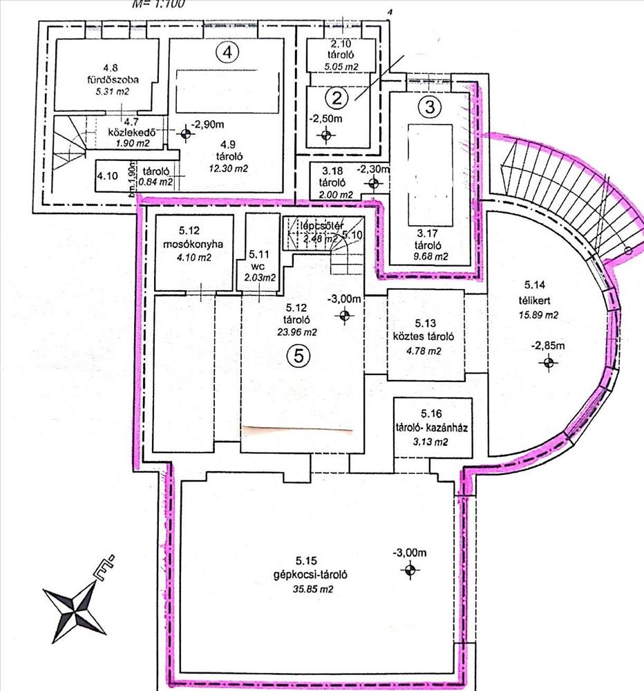
A kertkapcsolatos alsó szinten, két autó számára fűtött garázs van, melyből közvetlen bejárás biztosított a lakásba.
Itt található a pihenővel ellátott, keleti hangulatot árasztó wellness (nyitott tusoló, kombinált szauna, wc). a gépészeti helyiség, Miele gépekkel felszerelt mosókonyha.
Első szint, mely 58 nm , ahol nyitott konyha, étkező, nappali kandalló biztosítja a nappalok és esték luxus körülmények közötti eltöltését. a hatalmas ablakokon keresztül a kertben lévő ősfák árnyékában - a város szívének közelében – minden nap szinte nyaralássá válik. Esténként a meghitt hangulatot a kandallóban pattogó tűz varázsa is erősíti. a nappaliból 2 teraszra lehet kimenni, a déli oldalon lévő 16 nm -es napos teraszra, melyet egy épített növénykert vesz körül, az északi oldalon, egy fedett intim terasz ad lehetőséget a pihenésre a nyári melegben, ahol a kerti panorámában gyönyörködhetünk.
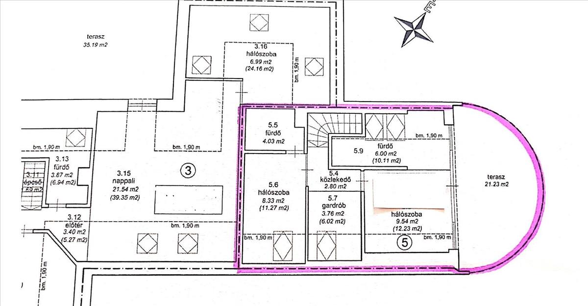
A felső szinten, a tetőtérben, 3m feletti a belmagasság, így csak az oldalsó ferde falak juttatják eszünkbe, hogy tetőtérben vagyunk.
Itt 2 kényelmes hálószoba külön-külön fürdőszobával található. a fő hálóból, és a hozzá tartozó fürdőből, csodálatos panoráma tárul elénk a budai hegyekre. Innen tudunk kimenni a fenti 20nm -es teraszra, ahol a fák lombjai közt érezzük magunkat, és élvezni lehet a panorámát. a hálókat egy tágas nyitott gardrób köti össze.
A házban padló és mennyezet hűtés/fűtés lett kialakítva, helyiségenként állítható hőmérséklettel.
GEO árammal, Wolf hőszivattyú, és légtechnika került beépítésre, ami folyamatos friss levegőt biztosít az egész lakás területén.
A garázsban elektromos autó töltő alakítható ki. a lakás riasztórendszerrel ellátott. Az alumíniumból készült, távirányítós redőnyök óvják a 3 rétegű nyílászárókat. a fotókon a jelen állapot látható. a beépített gépek és bútorok a vételár részét képezik.
Rezsi és közös költség: mindössze 50 000 Ft/hó, ami tartalmazza a fűtést-hűtést és egyéb költségeket.
Ez az egyedi ingatlan ideális választás azok számára, akik modern, luxus környezetben, de a természethez közel szeretnének élni.
Az ár nem tartalmazza a 36nm garázs árát, ami 19m és kötelezően megvásárlandó. Valamint a képen látható bútorok és mobiliák ára még további 50. 000 Euró.
Hívjon most, hogy megtekinthesse ezt a páratlan otthont!
A lakáshoz, egy kb. 500Nm saját külön használatú kert is tartozik. Hitel.hu - Hasonlítsa össze a bankok lakáshitel ajánlatait
Tetszett ez az eladó Budapest II. kerületi újszerű állapotú 4 egész és 1 fél szobás tégla lakás? Hívd fel a hirdetőt most, és tudj meg mindent erről az eladó tégla lakásról! Ha gondolod nézelődj tovább az eladó lakás Budapest II. kerület oldal hirdetései között. Ennek az eladó lakásnak az ára 449000000 Ft és mivel az alapterülete 180 négyzetméter, ezért az átlagos négyzetméterára 2494444 HUF/m2.
Az eladó lakások menüpontban további hirdetések között is böngészhetsz. Az összes eladó budapesti lakás hirdetést tartalmazó oldalon tudsz böngészni. Ha van kedved, akkor böngészhetsz a Mlinárcsik Kata összes hirdetése között, vagy akár a/az Be My Home összes hirdetése között is.

