Eladó új építésű lakás Budapest II. kerület
| Kedvencbe | Megosztás | Árfigyelő |
| Kedvezményes lakáshitel ajánlatok | ||
| 334 000 000 HUF | ||
Ingatlan adatai
- Eladó vagy kiadó:Eladó
- Település:Budapest II. kerület
- Kategória:Lakás
- Alkategória:Tégla
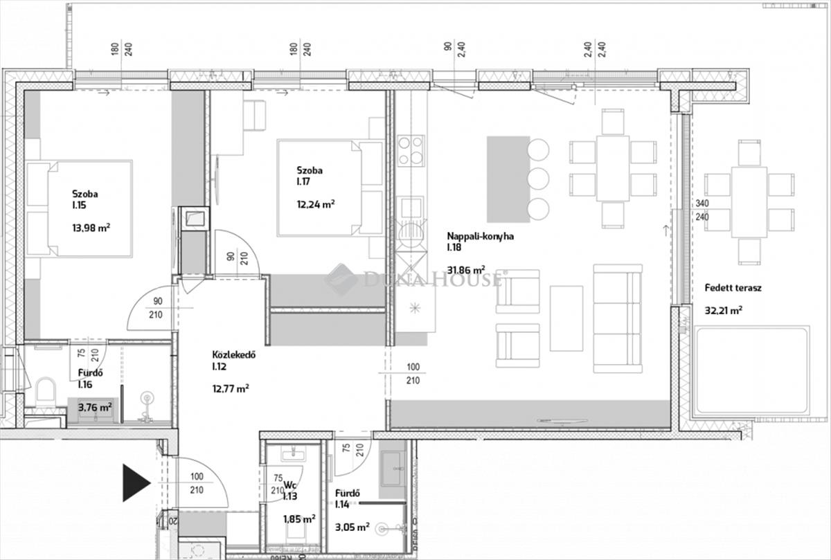
- Alapterület:95 m2
- Csere is:Nem
- Hirdető:Cég
- Élő videón megtekinthető:Nem
- Szobaszám:3
- Állapot:Új építésű
- Hány szintes az ingatlan:Földszintes
- Komfortosság:nincs megadva
- Hányadik emeleti:1
- Lift:Van
- Parkolási lehetőség:nincs megadva
- Fűtés:Hőszivattyús
- Bútorozottság:nincs megadva
- Fényviszony:nincs megadva
- Tájolás:DNY
- Kilátás:nincs megadva
- Internet:nincs megadva
- Akadálymentesített:nincs megadva
- Energiatanúsítvány:nincs megadva
- Villany:Van
- Víz:Van
- Gáz:nincs megadva
- Csatorna:Van
- Üzenetküldés
- Hívás

Referencia szám: PR018560/LK/26079

Hitel ajánlat
Ingatlan hirdetés leírása
Eladó lakás, Budapest 2. ker.
Új építésű elegancia Pasaréten – ajándék jacuzzival!A kortárs luxus új szintje: modern építészet, geotermikus technológia, okosotthon-rendszer és kompromisszummentes kényelem.
Pasarét szívében, a II. kerület egyik legzöldebb, legexkluzívabb részén valósult meg ez az 2025-ben épült, 5 lakásos, liftes társasház – ahol még elérhetők prémium lakások!
Amitől ez különleges:
Jacuzzival és pergolával felszerelt terasz minden lakáshoz
Geotermikus fűtés-hűtés, mennyezet- és padlófűtés, Daikin fan-coilokkal
loxone okosotthon: fény, árnyékolás, fűtés, biztonság – egy érintésre
Letisztult, modern építészeti design, prémium anyaghasználat
Tágas, napfényes terek, nagy üvegfelületek, harmonikus zöld környezet
Minden lakáshoz 2 garázshely és tároló
Azonnal költözhető
Pasarét előnyei:
Zöld, elegáns, csendes – mégis pár perc a Széll Kálmán tér.
Kávézók, iskolák (Francia Iskola, Britannica, Piarista Gimnázium), sport és természet minden irányban.
Ez az otthon a budai életstílus esszenciája – modern, nyugodt, értékálló.
Hívj most, és fedezd fel a kapy16 exkluzív lakásait – akár hétvégén is!
Referencia szám: pr018560/lk/26079 Hitel.hu - Hasonlítsa össze a bankok lakáshitel ajánlatait

