Eladó új építésű lakás - Budapest II. kerület
- INGYENES HIRDETÉS FELADÁS
Ingatlan adatai
- Eladó vagy kiadó:Eladó
- Település:Budapest II. kerület
- Kategória:Lakás
- Alkategória:Tégla
- Alapterület:127 m2
- Csere is:Nem
- Hirdető:Cég
- Élő videón megtekinthető:Nem
- Szobaszám:3 + 1 fél
- Állapot:Új építésű
- Hány szintes az ingatlan:nincs megadva
- Komfortosság:nincs megadva
- Kertkapcsolatos:Igen
- Hányadik emeleti:1
- Erkély:nincs megadva
- Lift:nincs megadva
- Parkolási lehetőség:Beállóban
- Fűtés:nincs megadva
- Bútorozottság:nincs megadva
- Fényviszony:nincs megadva
- Tájolás:nincs megadva
- Kilátás:nincs megadva
- Internet:nincs megadva
- Klíma:nincs megadva
- Akadálymentesített:nincs megadva
- Energiatanúsítvány:nincs megadva
- Villany:Van
- Víz:Van
- Gáz:Van
- Csatorna:Van
- Kapcsolatfelvétel

Dauner Regina
+36-(70)-526-3254
Mondd meg a hirdetőnek, hogy a megveszLAK-on találtad a hirdetést.
Hitel ajánlatok
Ingatlan hirdetés leírása
ELADÓ LAKÁS BUDAPEST II. KERÜLET ERZSÉBETLIGET ÚJÉPÍTÉSŰ
Prémium új építésű emeleti lakás eladó a II. kerületben, Erzsébetligeten.
Budapest II. kerületének egyik legkedveltebb, csendes részén, Erzsébetliget sík utcájában kínálunk megvételre egy vadonatúj, még soha nem lakott, emeleti lakást egy modern, kétlakásos társasház felső szintjén. Az ingatlan magas műszaki tartalommal, átgondolt elrendezéssel és kivételes kültéri adottságokkal készült – ideális választás azoknak, akik kompromisszumok nélküli otthont keresnek zöld környezetben.
Emeleti lakás:
Az egyszintes, nappali + 2, 5 szobás lakás rendkívül világos, tágas terekkel és a lakást körülölelő terasszal rendelkezik.
Főbb paraméterek:
•127 m² lakótér
•Amerikai konyhás nappali
•2 + 1/2 hálószoba
•35 m²-es, körbefutó terasz, valódi plusz élettér
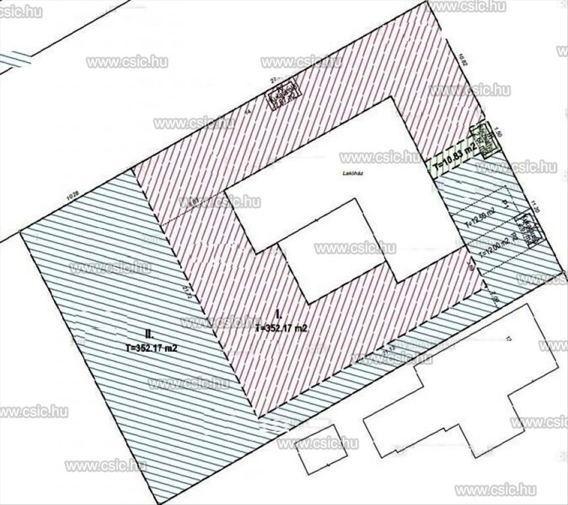
•353 m² saját használatú, leválasztható kert (alapító okirat szerint)
•5 m²-es kerti tároló / kerti ház
•2 gépkocsi számára autóbeálló, mely kötelezően megvásárolandó 15 M Forintért
Kert & kültér:
•Kizárólagos használatú, intim kertkapcsolat
•Kerti ház / tároló
•Nagyméretű terasz, amely ideális pihenéshez, étkezéshez vagy vendéglátáshoz
Műszaki tartalom & extrák:
•Levegő–hőszivattyús fűtés–hűtés
•Padló- és mennyezetfűtés, valamint mennyezethűtés
•Hővisszanyerős szellőztető rendszer
•Prémium hofstadter nyílászárók
•Elektromos redőnyök
•Pliszírozott szúnyoghálók
•Napelem-előkészítés
•Beépített konyhabútor (gépek nélkül)
•Okosotthon rendszer – telefonról is vezérelhető
•Kiépített riasztórendszer
Teljes önállóság:
•Külön közmű mérőórák
•Önálló fűtési rendszer
•Saját utcai bejárat
•Külön villanyóra-szekrény és kukatároló
Az önálló mérésnek köszönhetően a családi és állami kedvezmények maximálisan kihasználhatók.
A társasházról röviden:
A lakás egy kétlakásos, új építésű társasház emeletén található. a ház modern megjelenésű, alacsony fenntartási költségű, a lakások egymástól jól szeparáltak. Az egyetlen közös helyiség a gépészeti tér, minden más funkció teljesen elkülönül.
Környék & elhelyezkedés:
Erzsébetliget a II. kerület egyik legkeresettebb része:
•nyugodt, zöldövezeti hangulat
•sík terep, kiváló sétálhatóság
•gyors elérhetőség a belváros felé
•a közelben iskolák, óvodák, bevásárlási lehetőségek és tömegközlekedés
Ez az emeleti lakás tökéletes választás mindazoknak, akik új építésű, prémium minőségű otthont keresnek Budapest egyik legjobb környékén.
További információért és megtekintésért keressen bizalommal! Hitel.hu - Hasonlítsa össze a bankok lakáshitel ajánlatait
Tetszett ez az eladó Budapest II. kerületi új építésű 3 egész és 1 fél szobás tégla lakás? Hívd fel a hirdetőt most, és tudj meg mindent erről az eladó tégla lakásról! Ha gondolod nézelődj tovább az eladó lakás Budapest II. kerület oldal hirdetései között. Ennek az eladó lakásnak az ára 230000000 Ft és mivel az alapterülete 127 négyzetméter, ezért az átlagos négyzetméterára 1811024 HUF/m2.
Az eladó lakások menüpontban további hirdetések között is böngészhetsz. Az összes eladó budapesti lakás hirdetést tartalmazó oldalon tudsz böngészni. Ha van kedved, akkor böngészhetsz a Dauner Regina összes hirdetése között, vagy akár a/az Családi Ingatlan összes hirdetése között is.

