Eladó felújított lakás Budapest II. kerület
| Kedvencbe | Megosztás | Árfigyelő |
| Kedvezményes lakáshitel ajánlatok | ||
| 110 000 000 HUF | ||
Ingatlan adatai
- Eladó vagy kiadó:Eladó
- Település:Budapest II. kerület
- Kategória:Lakás
- Alkategória:Tégla
- Alapterület:48 m2
- Csere is:Nem
- Hirdető:Magánszemély
- Élő videón megtekinthető:Nem
- Szobaszám:2
- Állapot:Felújított
- Hány szintes az ingatlan:2 szintes
- Komfortosság:nincs megadva
- Tetőtéri:Nem
- Kertkapcsolatos:Nem
- Hányadik emeleti:1
- Erkély:Van
- Lift:Nincs
- Parkolási lehetőség:Udvaron
- Fűtés:Gáz
- Bútorozottság:Gépesített
- Fényviszony:Napfényes
- Tájolás:nincs megadva
- Kilátás:Panorámás
- Internet:nincs megadva
- Akadálymentesített:nincs megadva
- Energiatanúsítvány:nincs megadva
- Villany:nincs megadva
- Víz:nincs megadva
- Gáz:nincs megadva
- Csatorna:nincs megadva
- Közös költség:11 170 Ft
- Rezsi:25 000 Ft
- Üzenetküldés
- Hívás


Hitel ajánlat
Ingatlan hirdetés leírása
ELADÓ lakás Budapest Tárogató utca!
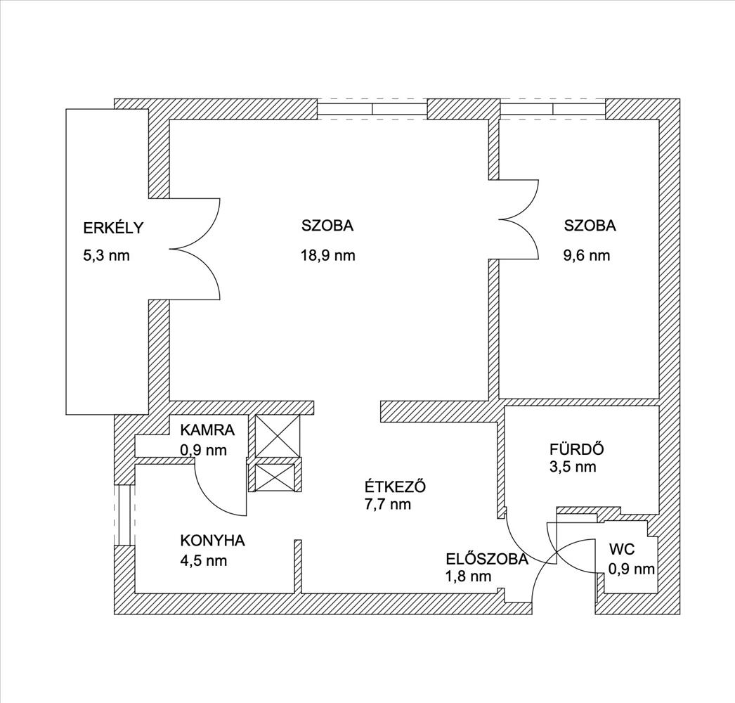
Eladó 48 nm-es, plusz 5 nm erkélyes, nappali- hálószobás - külön konyhás és étkezős - csendes, zöld környezetben lévő, azonnal költözhető téglalakás Budapest II. kerület Tárogató úton.Eladó erkélyes, azonnal költözhető, nappali és hálószobás 48 nm-es (plusz 5 nm erkély), tehermentes világos, panorámás téglalakás Budapest II. kerület madárcsicsergős, utcájában.
Az eladó lakás a Tárogató úton található, nyugodt, csendes, családias lakóközösségű ház első emeletén helyezkedik el, 48 nm alapterülettel, nagy nappalival, külön hálószobával, külön konyhával és külön étkezővel, valamint egy 5 nm-es erkéllyel, ahonnan csodás hegyi panoráma van.
A világos, azonnal költözhető, frissen felújított lakás csodás új otthon lehet mindazoknak, akik szeretik ezt a környéket a sok zölddel, nyugalommal, az erdő és természet közelségével és a könnyű és kényelmes tömegközlekedéssel.
Élhető terek, fényes, világos és nyugodt helyiségek vannak. Csodás hegyi panoráma, madárcsicsergés és mókus ugrándozás.
A biztonsági záras bejárati ajtón belépve egy kis előtérbe érkezünk.
Az előtérből nyílik a kádas fürdőszoba és a külön helyiségben lévő wc is.
Az előtérből balra nyílik egy hangulatos kis étkező.
Az étkezőn keresztül jutunk be a tiszta, világos, felújított, teljesen gépesített konyhába. a konyhához még egy kis kamra is tartozik.
Az ebédlőből szembe pedig nyílik a lakás legnyugodtabb és legkényelmesebb tere: a világos, szép nagy nappali, ahonnan kijárás van az 5 nm-es erkélyre. Csodás hegyi panoráma van és nagyon megnyugtató a sok madárcsicsergés. a reggeli kávé mellett pedig, igen szórakoztató nézni a mókusok játékát.
A hálószoba is nagyon kényelmes és nyugodt.
A lakáshoz tartozik még egy udvari kocsibeálló és egy 5nm. -Es saját tároló is.
Minden készen áll arra, hogy az új tulajdonos birtokba vegye leendő otthonát. Azonnal költözhető, igény szerint a teljes berendezéssel együtt.
A TÁRSASHÁZRÓL:
A lakás a II. kerület, Tárogató út csendes, zöld részén fekvő kis lakóközösségű, társasházban található.
A társasház állapota jó az épület karbantartott és a társasháznak még megtakarítása is van, ha bármire kellene.
A lakóközösség baráti, még közös levelezőrendszer is van, a gyorsabb és hatékonyabb kommunikáció segítésére.
Rendezett kert, csodás nagy fákkal, mókusokkal és madárcsicsergéssel.
A fenntartási KÖLTSÉGEK:
A lakás fenntartási költsége egyéni fogyasztás alapján kerül elszámolásra.
A víz, a villany és a fűtés egyedi mérőóra alapján kerül elszámolásra, az átlag havi rezsiköltség 25. 000. -
A közös költség pedig 11. 170. - Havonta.
A KÖRNYÉKRŐL:
Budapest II. kerület csendes zöld részén a Tárogató úton található az eladó lakás.
Természetközeli, csendes, nyugodt környék tele madárcsicsergéssel és mókusokkal.
A környéken minden megtalálható, ami a kényelmes mindennapokhoz szükséges és mindemellett egy paradicsom azoknak, akik szeretnek a természetben barangolni. a Kuruclesi-árok sétatávolságra van.
Kávézó és pékség a szomszédságban. Több bevásárlási lehetőség, étterem és pizzéria minden a közelben.
Az iskolák közelsége és a sok diák a befektetésben gondolkodóknak is érdekes lehet.
Nagyon jó közlekedéssel bír és tömegközlekedéssel is kényelmesen célba lehet érni. Buszmegállók, villamosok és éjszakai busz megállói mind rövid séta távolságra vannak.
Minden készen áll arra, hogy az új tulajdonos birtokba vegye új otthonát. Tehermentes, azonnal költözhető, igény szerint a teljes berendezéssel együtt megvásárolható!
FOR sale is a 48 sqm brick apartment with an additional 5 sqm balcony, featuring a living room and one bedroom, a separate kitchen and dining area, located in a quiet, green environment and available for immediate move-in, on Tárogató Street in Budapest’s 2nd District. Hitel.hu - Hasonlítsa össze a bankok lakáshitel ajánlatait

