Eladó újszerű állapotú lakás - Budapest II. kerület
- INGYENES HIRDETÉS FELADÁS
Ingatlan adatai
- Eladó vagy kiadó:Eladó
- Település:Budapest II. kerület
- Kategória:Lakás
- Alkategória:Tégla
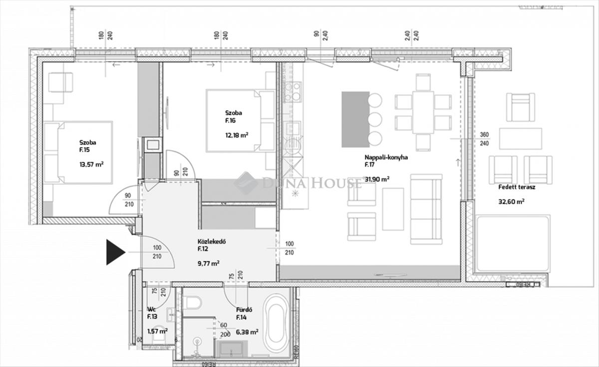
- Alapterület:95 m2
- Csere is:Nem
- Hirdető:Cég
- Élő videón megtekinthető:Nem
- Szobaszám:3
- Állapot:Újszerű, kitűnő
- Hány szintes az ingatlan:Földszintes
- Komfortosság:nincs megadva
- Hányadik emeleti:Földszint
- Erkély:nincs megadva
- Lift:Van
- Parkolási lehetőség:nincs megadva
- Fűtés:Hőszivattyús
- Bútorozottság:nincs megadva
- Fényviszony:nincs megadva
- Tájolás:DNY
- Kilátás:nincs megadva
- Internet:nincs megadva
- Klíma:nincs megadva
- Akadálymentesített:nincs megadva
- Energiatanúsítvány:A++
- Villany:Van
- Víz:Van
- Gáz:nincs megadva
- Csatorna:Van
- Kapcsolatfelvétel

Láng Péter
+36-(20)-611-1611
Mondd meg a hirdetőnek, hogy a megveszLAK-on találtad a hirdetést.
Referencia szám: PR018560/LK/26075
Hitel ajánlatok
Ingatlan hirdetés leírása
Eladó lakás, Budapest 2. ker.
Új építésű prémium lakások Pasaréten – ajándék jacuzzival
Pasarét zöldövezeti részén, 2025-ben épült, 5 lakásos, liftes társasházban jelenleg mind az 5 lakás eladó, azonnal költözhető állapotban.
A 2234 m²-es, parkosított telken megvalósult társasház a városi kényelem és a természetközeli élet tökéletes egyensúlyát kínálja.
Földszinten kertkapcsolat, emeleten zöld lombkoronás kilátás, a penthouse-ban lenyűgöző panoráma várja az új tulajdonost.
A teraszok pergolával és ajándék jacuzzival felszereltek.
A lakások világosak, tágasak, energiatakarékos gépészettel és loxone okosotthon rendszerrel készültek.
A konyha kialakítása a leendő tulajdonos igényei szerint történik.
Elérhető lakások:
1. Lakás – földszint:
3 szoba | 75 m² + 41 m² terasz | 320 M Ft
2. Lakás – földszint:
4 szoba | 110 m² + 50 m² terasz | 497 M Ft
3. Lakás – 1. emelet:
3 szoba | 79 m² + 32 m² terasz | 334 M Ft
4. Lakás – 1. emelet:
4 szoba | 106 m² + 43 m² terasz | 468 M Ft
5. Lakás – 2. emelet, penthouse:
4 szoba | 100 m² + 80 m² terasz | 529 M Ft
Főbb műszaki jellemzők:
– geotermikus hűtés–fűtés
– padló- és mennyezetfűtés/hűtés
– hővisszanyerős szellőztetés
– 3 rétegű nyílászárók
– H-tarifa
– akadálymentes lift
Minden lakáshoz 2 teremgarázs-beálló és 1 tároló tartozik, melyek külön megvásárolhatók. 57. 500. 000. -
Csendes, presztízs környezet, kiváló közlekedés – mindössze 10–15 percre a Széll Kálmán tértől.
Hívjon bizalommal akár hétvégén is! Hitel.hu - Hasonlítsa össze a bankok lakáshitel ajánlatait

