Eladó lakás - Budapest II. kerület
- INGYENES HIRDETÉS FELADÁS
Ingatlan adatai
- Eladó vagy kiadó:Eladó
- Település:Budapest II. kerület
- Kategória:Lakás
- Alkategória:Tégla
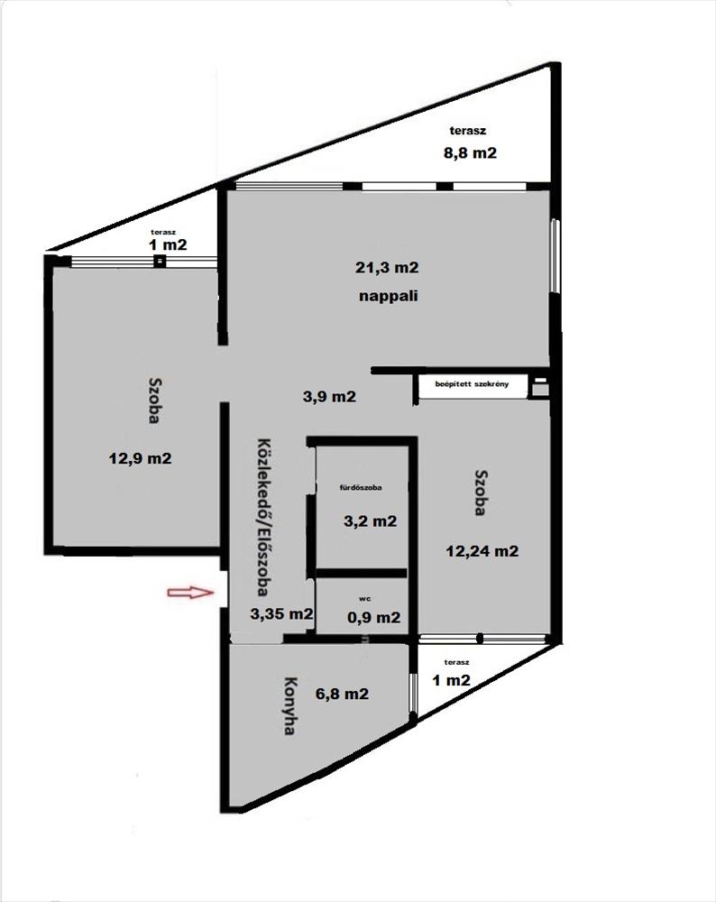
- Alapterület:73 m2
- Csere is:Igen
- Hirdető:Magánszemély
- Élő videón megtekinthető:Nem
- Szobaszám:3
- Állapot:Felújítandó
- Hány szintes az ingatlan:3 szintes
- Komfortosság:Összkomfortos
- Tetőtéri:Nem
- Kertkapcsolatos:Nem
- Hányadik emeleti:1
- Erkély:Van
- Lift:Nincs
- Parkolási lehetőség:Teremgarázsban
- Fűtés:Gáz (konvektor)
- Bútorozottság:Bútorozatlan
- Fényviszony:Napfényes
- Tájolás:D
- Kilátás:Panorámás
- Internet:nincs megadva
- Klíma:nincs megadva
- Akadálymentesített:nincs megadva
- Energiatanúsítvány:H
- Villany:Van
- Víz:Van
- Gáz:Van
- Csatorna:Van
- Közös költség:20 000 Ft
- Kapcsolatfelvétel

FGabor
+36-(30)-969-6831
Mondd meg a hirdetőnek, hogy a megveszLAK-on találtad a hirdetést.
Hitel ajánlatok
Ingatlan hirdetés leírása
Pasaréti, Rózsadombra panorámás 3 szobás – 3 teraszos lakás
Rózsadombi panorámával, igény szerint átalakítható lakás, – 3 szobás, 3 teraszos, körbenapozott +teremgarázs + tároló
Van egy olyan, mindössze 6 lakásos társasház Pasaréten, aminek a telke nem határos közúttal, ezért egy igazi ősfás környezetben, csak a természet hangjait hallgatva élhet.
____________________
Páratlan adottságú lokációban, tulajdonostól eladó ez a Zsemlye utcai domboldalban, a ’70-es években épült, Btto 76 m2, netto 73 m²-es, 3 szobás, 3 teraszos, 1. emeleti, tégla lakás.
A társasházház egy domboldali telken, az utcától távol helyezkedik el, így a lakás kivételesen csendes.
Ne tévessze meg a Hűvösvölgyi úti bejárat!
A házhoz egy kb. 80 Méteres saját bekötőút vezet, ezért a forgalom zajából gyakorlatilag semmi nem hallható – csak a természet hangjai.
Az ingatlan Rózsadombi panorámával, körbenapozott fekvéssel és kivételes nyugalommal rendelkezik – ilyen adottságú lakás ritkán kerül piacra Pasaréten.
A nappalihoz tartozó 8, 5 m²-es teraszról zöld panoráma nyílik a Rózsadombra, ami különleges hangulatot ad a lakásnak. a másik két szobához is saját erkély tartozik. a lakás kelet–nyugati tájolású, ezért egész nap világos.
____________________
A lakás főbb jellemzői
Tipus: társasházi tégla lakás
Emelet: első
Tájolás: k-d-ny körbenapozott
Lakás Netto méret: 73 m2 lakótér 3 terasszal
• nappali teraszkapcsolattal
• 2 külön nyíló hálószoba (mindkettő erkéllyel)
• külön fürdőszoba
• külön WC
• előszoba
• konyha
____________________
Az ingatlan igényel korszerűsítést, így új tulajdonosa teljes mértékben saját igényei szerint alakíthatja át.
Nagyon kedvező építészeti tulajdonságokkal rendelkezik, igény szerint a válaszfalak elbonthatóak, átépíthetőek, így amerikai konyhás nappali is kialakítható valamint a helységek funkciója is jól változtatható.
____________________
Állapot: Korszerűsítendő
• gépészet
• fűtés
• nyílászárók
• burkolatok
A lakás kiürített állapotban van, azonnal birtokbavehető, így a munkálatok azonnal elkezdhetőek.
____________________
A társasház
• 1970-es években épült tégla társasház
• mindössze 6 lakás
• csendes, barátságos lakóközösség
• 5 éve felújított lapostető
• rendezett pénzügyi háttér
Közös költség: 20 000 Ft / hó
____________________
Műszaki és egyéb információk
• energetikai tanúsítvány rendelkezésre áll
• villamos biztonsági felülvizsgálat elkészült
• 25a villamos kapacitás (32A-ig bővíthető)
• per- és tehermentes
• tulajdonostól eladó
____________________
Birtokbaadás
Az ingatlan azonnal birtokba vehető.
___________________
A lakás ára: 119, 6 millio Forint
A lakáshoz kötelezően megvásárolandó teremgarázs hely 1 személyautónak
7 millio forintért
és egy zárható tároló 1, 2 millio Forintért
Teljes ár: 127, 8 M Ft
____________________
Ha csendes, zöld környezetű, jól alakítható pasaréti lakást keres a II. kerületben, amely teraszokkal és panorámával rendelkezik, ez az ingatlan kiváló lehetőség.
További információért vagy megtekintés egyeztetéséhez keressen bizalommal. Hitel.hu - Hasonlítsa össze a bankok lakáshitel ajánlatait
Tetszett ez a cserélhető Budapest II. kerületi felújítandó 3 szobás tégla lakás? Hívd fel a hirdetőt most, és tudj meg mindent erről a cserélhető tégla lakásról! Ha gondolod nézelődj tovább a cserélhető lakás Budapest II. kerület oldal hirdetései között. Ennek az eladó lakásnak az ára 119600000 Ft és mivel az alapterülete 73 négyzetméter, ezért az átlagos négyzetméterára 1638356 HUF/m2.
A eladó lakások menüpontban további hirdetések között is böngészhetsz. Az összes eladó budapesti lakás hirdetést tartalmazó oldalon tudsz böngészni. Ha van kedved, akkor böngészhetsz a FGabor összes hirdetése között.

