- >>
- eladó ingatlanok
- >>
- eladó lakás
- >>
- eladó lakás Budapest II. kerület
- >>
Eladó új építésű lakás - Budapest II. kerület
| | |||
| Kedvencnek jelölöm | Elküldöm emailben | Megosztás | Szavazás |
| Kedvezményes lakáshitel ajánlatok | |||
| 324 000 000 HUF | |||
Ingatlan adatai
- Eladó vagy kiadó:Eladó
- Település:Budapest II. kerület
- Kategória:Lakás
- Alkategória:Tégla
- Alapterület:108 m2
- Csere is:Nem
- Hirdető:Cég
- Élő videón megtekinthető:Nem
- Szobaszám:3
- Állapot:Új építésű
- Hány szintes az ingatlan:nincs megadva
- Komfortosság:nincs megadva
- Hányadik emeleti:nincs megadva
- Parkolási lehetőség:nincs megadva
- Fűtés:nincs megadva
- Bútorozottság:nincs megadva
- Fényviszony:nincs megadva
- Tájolás:D
- Kilátás:Kertre néző
- Internet:nincs megadva
- Akadálymentesített:nincs megadva
- Energiatanúsítvány:nincs megadva
- Villany:nincs megadva
- Víz:nincs megadva
- Gáz:nincs megadva
- Csatorna:nincs megadva
- Üzenetküldés
- Hívás


Hitel ajánlat
Ingatlan hirdetés leírása
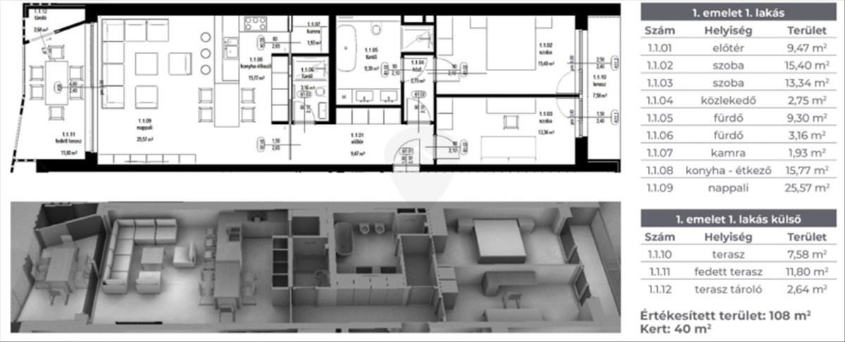
Megvételre kínálunk egy 5 lakásos új építésű luxus társasházba...
Megvételre kínálunk egy 5 lakásos új építésű luxus társasházban egy első emeleti lakást. (I. emelet 1. )Az 1. És 2. emeleten 2 – 2 db modern alaprajzi elrendezésű lakás, közös és privát kerttel és közös medencével.
- a lakás értékesített területe 108 nm,
- nappali,
- konyha étkezővel
- 2 hálószobával valamint 2 fürdőszobával rendelkezik,
- 2 terasz, amelyből az egyik fedett és 11. 80 Nm, a másik 7. 58 Nm (terasz tároló 2. 64 Nm),
- a privát használatú kert kb 40 nm,
- a lakás déli tájolású,
- smart home,
- mennyezet hűtés - fűtés és padlófűtés hőszivattyúval.
Várható befejezés: 2024. Május vége
A lakáshoz tartozik 2 beállós garázs (emelő - süllyesztős kialakítású) tartozik, amely megvásárlása opcionális. a 2 beállós garázs vételára: 30. 000. 000 Ft / garázs
Az épület bejárata modern, minimál különleges belső építészeti megjelenéssel.
Az épület földszintjén utcai árkádra nyíló üzlethelyiség + 12 beállásos garázs található.
Rózsadomb alsó, városias része barátságos zöldövezeti környezettel. Könnyen megközelíthető közösségi közlekedéssel és gépkocsival is. Néhány perc sétával a budai Duna – parti sétány és a Margit sziget elérhető.
A lakás négyzetméterára kulcsrakész állapotban (burkolatokkal), bútorok nélkül értendő! Hitel.hu - Hasonlítsa össze a bankok lakáshitel ajánlatait

