Eladó újszerű állapotú lakás - Budapest II. kerület
- INGYENES HIRDETÉS FELADÁS
Ingatlan adatai
- Eladó vagy kiadó:Eladó
- Település:Budapest II. kerület
- Kategória:Lakás
- Alkategória:Tégla
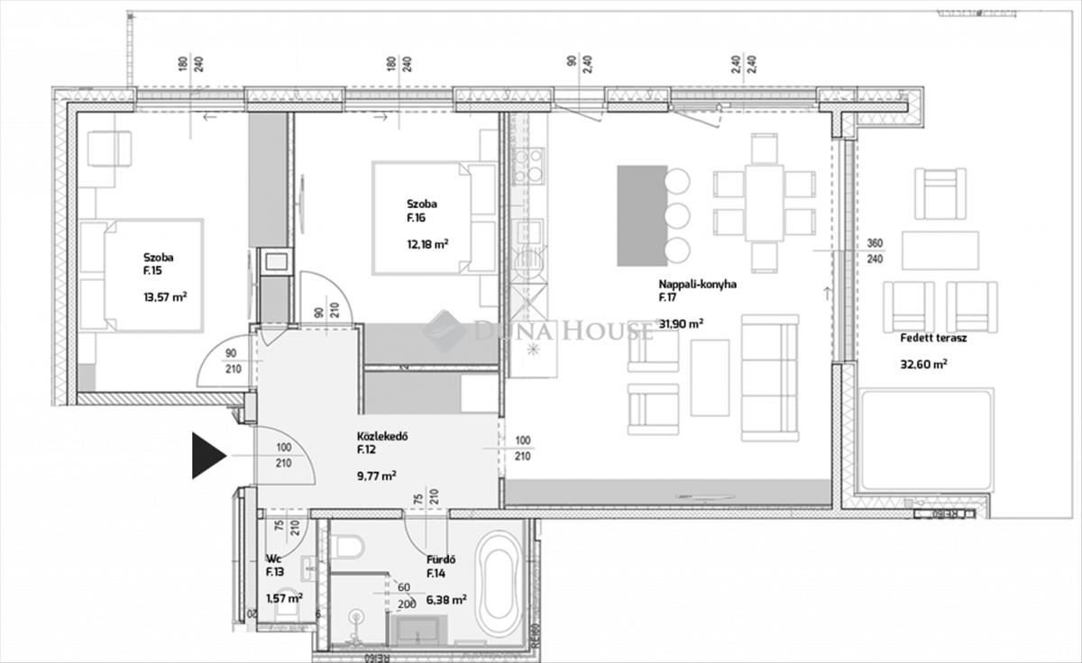
- Alapterület:95 m2
- Csere is:Nem
- Hirdető:Cég
- Élő videón megtekinthető:Nem
- Szobaszám:3
- Állapot:Újszerű, kitűnő
- Hány szintes az ingatlan:Földszintes
- Komfortosság:nincs megadva
- Hányadik emeleti:Földszint
- Erkély:nincs megadva
- Lift:Van
- Parkolási lehetőség:Teremgarázsban
- Fűtés:Hőszivattyús
- Bútorozottság:nincs megadva
- Fényviszony:Napfényes
- Tájolás:DNY
- Kilátás:nincs megadva
- Internet:nincs megadva
- Klíma:Van
- Akadálymentesített:Akadálymentesített
- Energiatanúsítvány:nincs megadva
- Villany:Van
- Víz:Van
- Gáz:nincs megadva
- Csatorna:Van
- Kapcsolatfelvétel

Herczeg-Bíró Edit
+36-(30)-949-2772
Mondd meg a hirdetőnek, hogy a megveszLAK-on találtad a hirdetést.
Referencia szám: PR018560/LK/26075
Hitel ajánlatok
Ingatlan hirdetés leírása
Exkluzív modern elegáns lakások Pasaréten
Modern elegancia Pasaréten! a kortárs luxus új szintje: modern építészet, innovatív technológia és kompromisszummentes kényelem.
A II. kerület egyik legkedveltebb, zöldövezeti részén, Pasarét szívében valósult meg ez az exkluzív, 2025-ben átadott, 5 lakásos, liftes társasház, melyben most még elérhetők prémium kialakítású lakások. a dús növényzettel teli, 2234 m2-es telekre épült 3 szintes ingatlan a városi kényelem és a természetközeli élet ideális kombinációját kínálja. a lakások kialakításánál különösen ügyeltek a privát terekre. Kertkapcsolat a földszinten, zöld lombkoronás kilátás az emeleten, és égbe nyíló panoráma a penthouse-ból - mindez elegáns, prémium kivitelben. a lakások mindegyike értékálló, gondosan megtervezett otthon a legigényesebbek számára. a társasház épülete minőségi anyagokból, modern építészeti megoldásokkal készült, letisztult homlokzattal és elegáns terekkel. Minden lakás világos, tágas, teraszos, és energiatakarékos gépészeti megoldásokkal felszerelt.
Műszaki tartalom:
- előregyártott zsalupallós, monolit vasbeton födémszerkezetek
- 20 cm vastag, többrétegű lakáselválasztó falak, hálószobák között 12, 5 cm vastag falszerkezetek
- homlokzati falakon 20 cm fekete üvegszövettel kasírozott kőzetgyapot hőszigetelés
- rámpafűtés a kocsibejárók, garázsfelhajtók burkolata alatt
- akadálymentes felvonó
- geotermikus hűtés-fűtés
- Wavin rendszerű meleg vizes központi padlófűtés, mennyezetfűtés-hűtés, kiegészítésként Daikin fan-coilok
- költséghatékony H-tarifa
- Helios kwl típusú, központi hővisszanyerős szellőzőgép
- távolvasási funkcióval rendelkező vízmérők
- nyílászárók üvegezése 3 rétegű hőszigetelő
- a fürdőkben elektromos törölközőszárítós radiátorok
- a fürdő és wc helyiségekben elektromos padlófűtés
- okosotthon loxone : világításvezérlés, árnyékolás, fűtés és hűtés, ébresztés, jelenlét szimuláció, riasztás, jó éjt mód, stb.
A lakásokhoz 2 saját parkolóhely és 1 tároló tartozik, ezek ára a lakás vételárán felül fizetendő. Ehhez a földszinti lakáshoz tartozó parkolóhelyek és tároló összesített ára 45 700 000 Ft.
Pasarét – Zöldövezeti rész Budapest központjában.
Szinte kertvárosi hangulatú környezet, ahol rengeteg fa, park és csendes utcák találhatók, mégis csupán 10-15 perc autóval vagy busszal a Széll Kálmán tér. Kiváló közlekedési lehetőségek: az 5-ös, 91-es, 155-ös, 291-es buszok és a 61-es villamos megállói a közvetlen közelben helyezkednek el.
Minőségi lakókörnyezet: Több régi villaház, modern társasházak és igényesen felújított lakások jellemzik a környéket. Emiatt az ingatlanárak általában magasabbak az átlagosnál.
Presztízs és nyugalom: Pasarét hagyományosan a régi budai polgárság lakóhelye volt, sok híres ember – például építészek, művészek, értelmiségiek – választotta otthonának ezt a részt. a környék csendes, biztonságos és kifejezetten családbarát.
Kávézók, iskolák és sportlehetőségek: Kedvelt hely a Pasarét Bisztró, valamint a Pasaréti templom melletti tér és környezete. a közelben több jó iskola található, például a Piarista Gimnázium, Francia Iskola és a Britannica International School. a környék ideális futásra, sétára és a kutyabarátoknak is.
Ez a lakás ideális választás mindazoknak, akik a budai eleganciát, a minőséget és a nyugalmat keresik, miközben nem akarják feláldozni a város közelségét. Ha szereti a zöld, csendes, biztonságos, mégis városközeli életstílust, keressen bizalommal, akár hétvégén is!
Modern Elegance in Pasaréten!
The new level of contemporary luxury: modern architecture, innovative technology, and uncompromising comfort.
Located in one of the most popular green areas of Buda, in the heart of Pasaréti, this exclusive elevator-equipped residential building with 5 apartments was completed in 2025. Currently, premium-designed apartments are still available. Built on a lush 2, 234 m² plot, this 3-story property offers an ideal combination of urban comfort and proximity to nature. Special attention was paid to private spaces in the apartment layouts. Ground-floor garden access, green canopy views from the upper floor, and panoramic vistas from the penthouse—all in elegant, premium finishes. Each apartment is a valuable, carefully designed home for the most discerning buyers.
The building is constructed from high-quality materials with modern architectural solutions, featuring a clean facade and elegant common areas. All apartments are bright, spacious, terrace-equipped, and fitted with energy-efficient mechanical systems.
Technical Details:
- Prefabricated shutter wall monolithic reinforced concrete floor structures
- 20 cm thick, multi-layered partition walls between apartments, 12. 5 Cm thick walls between bedrooms
- 20 cm of stone wool insulation on exterior walls, reinforced with black fiberglass mesh
- Ramp heating beneath garage entrances and driveways
- Barrier-free elevator
- Geothermal cooling and heating
- Wavin system central underfloor heating with hot water, ceiling heating and cooling, supplemented by Daikin fan coils
- Cost-effective H tariff
- Helios kwl type central heat recovery ventilation system
- Water meters with remote reading function
- Triple-glazed windows for optimal insulation
- Electric towel radiators in bathrooms
- Electric underfloor heating in bathrooms and WCs
- smart home loxone: lighting control, shading, heating and cooling, wake-up function, presence simulation, alarm, good night mode, and more.
The apartments come with 2 private parking spaces and 1 storage room, and these are to be paid for separately from the purchase price of the apartment. The total price for the parking spaces and storage room associated with this ground-floor apartment is 45, 700, 000 HUF.
Pasaréten – a Green Oasis in the Heart of Budapest
The neighborhood offers a nearly suburban atmosphere with plenty of trees, parks, and quiet streets, yet it’s only a 10-15 minute drive or bus ride to Széll Kálmán tér. Excellent transportation options include nearby stops for buses 5, 91, 155, 291, and tram 61.
Quality Residential Environment: The area features a mix of historic villas, modern apartment buildings, and tastefully renovated homes. Consequently, property prices are generally higher than average.
Prestige and Tranquility: Pasaréten has traditionally been home to Budapest’s old bourgeoisie, with many renowned figures such as architects, artists, and intellectuals choosing this area as their residence. The neighborhood is peaceful, safe, and especially family-friendly.
Cafés, Schools, and Sports Opportunities: Popular spots include Pasarét Bistro, as well as the square and surroundings near Pasaréti Church. Several excellent schools are nearby, such as Piarista Gimnázium, the French School, and Britannica International School. The area is ideal for jogging, walking, and dog walking.
These apartments are an ideal choice for those seeking Buda elegance, quality, and tranquility without sacrificing proximity to the city. If you love a green, quiet, secure, yet city-close lifestyle, feel free to contact us, even on weekends!
Referencia szám: pr018560/lk/26075 Hitel.hu - Hasonlítsa össze a bankok lakáshitel ajánlatait

