Eladó újszerű állapotú lakás - Budapest II. kerület
- INGYENES HIRDETÉS FELADÁS
Ingatlan adatai
- Eladó vagy kiadó:Eladó
- Település:Budapest II. kerület
- Kategória:Lakás
- Alkategória:Tégla
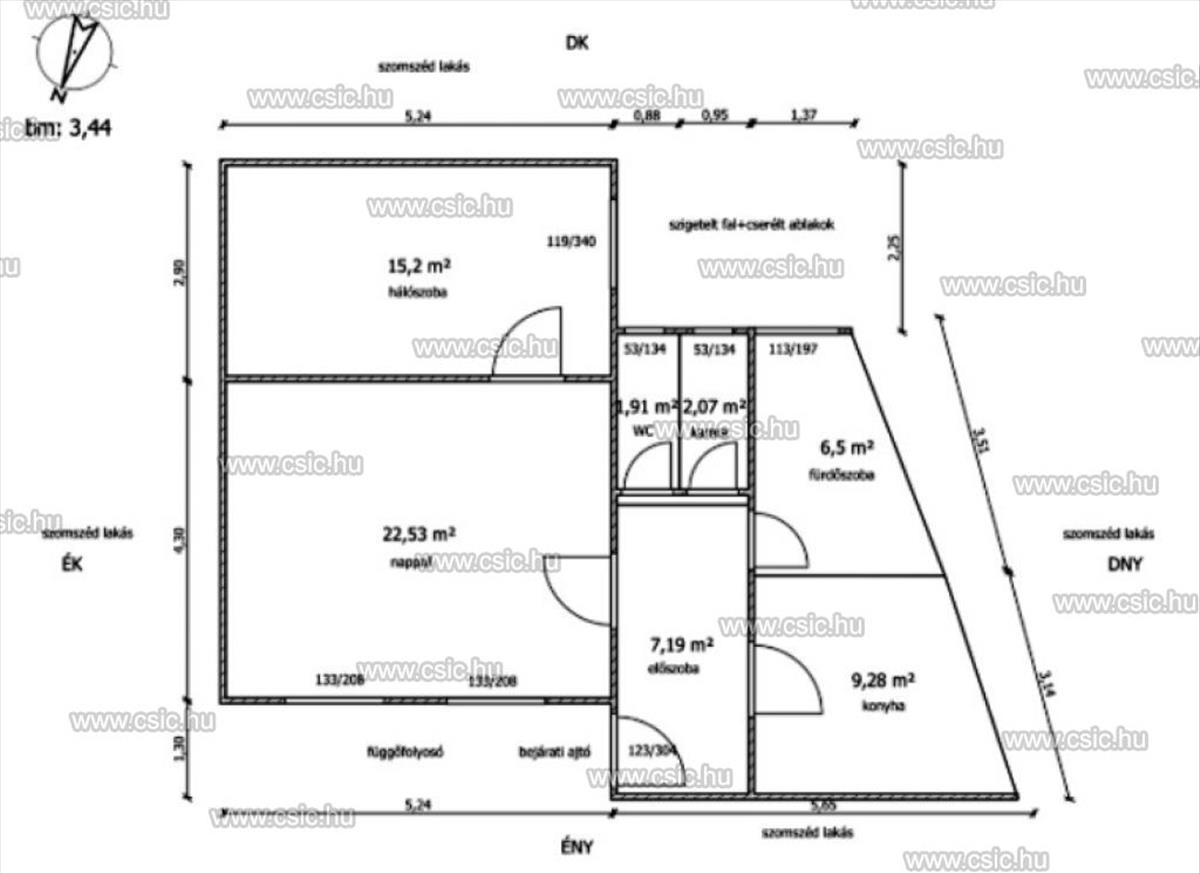
- Alapterület:65 m2
- Csere is:Nem
- Hirdető:Cég
- Élő videón megtekinthető:Nem
- Szobaszám:3
- Állapot:Újszerű, kitűnő
- Hány szintes az ingatlan:nincs megadva
- Komfortosság:Összkomfortos
- Hányadik emeleti:1
- Erkély:nincs megadva
- Lift:Van
- Parkolási lehetőség:nincs megadva
- Fűtés:Gáz (konvektor)
- Bútorozottság:nincs megadva
- Fényviszony:nincs megadva
- Tájolás:nincs megadva
- Kilátás:nincs megadva
- Internet:nincs megadva
- Klíma:nincs megadva
- Akadálymentesített:nincs megadva
- Energiatanúsítvány:nincs megadva
- Villany:Van
- Víz:Van
- Gáz:Van
- Csatorna:Van
- Kapcsolatfelvétel

Markó Dóra
+36-(70)-492-2734
Mondd meg a hirdetőnek, hogy a megveszLAK-on találtad a hirdetést.
Hitel ajánlatok
Ingatlan hirdetés leírása
ELADÓ LAKÁS BUDAPEST 2. KERÜLET TÖRÖK UTCA
Eladó 65 m2-es lakás a török UTCÁBAN!
Eladó a Margit negyed egyik legkeresettebb részén, liftes, gondozott társasházban egy 1. emeleti, 65 m²-es, jelenleg 2 szobás, de könnyedén nappali + 2 hálószobássá alakítható, kiváló adottságú lakás.
Főbb jellemzők:
•Tágas, jól alakítható terek minden helyiségben
•Udvari fekvés – extra csendes, átjárás nélküli ablakokkal
•Különálló, nagyméretű, teljesen beépített étkezős konyha
•Kádas, tágas fürdőszoba márványpadlóval, üvegezett teraszajtóval
•Teljes értékű hálószoba, szintén üvegezett teraszajtóval
•Saját használatú, kb. 10 M²-es, burkolt udvar/terasz, kizárólag a lakásból megközelíthető
Műszaki tartalom:
•Javarészt cserélt nyílászárók (kamra, wc, fürdő, háló, bejárati ajtó)
•Jó állapotú parketta és hidegburkolatok
•Parapetes gázkonvektoros fűtés (igény szerint Mika rendszerre alakítható)
•Áthúzott villanyvezetékek, FI-relé
•Éjszakai áram külön mérőórával, H-tarifa igénylés lehetőségével
•Az ingatlan tiszta, karbantartott, azonnal költözhető, ugyanakkor igény szerint lépésről lépésre tovább fejleszthető.
Lokáció:
A Margit negyed Buda egyik legdinamikusabban fejlődő kulturális és művészeti központja. Kiváló közlekedés, gyors kapcsolat a belvárossal és a pesti oldallal. a Mecset utcai felső bejáratnál zöld park biztosít nyugalmat és kikapcsolódást.
Saját otthonnak és befektetésnek is kiemelkedő lehetőség.
FIGYELEM! Az ingatlan otthon start hitelprogram keretében is megvásárolható!
Hívjon a hét bármely napján! FIX 3% lakáshitelre megvehető
Tetszett ez az eladó Budapest II. kerületi újszerű állapotú 3 szobás tégla lakás? Hívd fel a hirdetőt most, és tudj meg mindent erről az eladó tégla lakásról! Ha gondolod nézelődj tovább az eladó lakás Budapest II. kerület oldal hirdetései között. Ennek az eladó lakásnak az ára 94900000 Ft és mivel az alapterülete 65 négyzetméter, ezért az átlagos négyzetméterára 1460000 HUF/m2.
Az eladó lakások menüpontban további hirdetések között is böngészhetsz. Az összes eladó budapesti lakás hirdetést tartalmazó oldalon tudsz böngészni. Ha van kedved, akkor böngészhetsz a Markó Dóra összes hirdetése között, vagy akár a/az Családi Ingatlan összes hirdetése között is.

