Eladó jó állapotú lakás Budapest II. kerület
| Kedvencbe | Megosztás | Árfigyelő |
| Kedvezményes lakáshitel ajánlatok | ||
| 119 000 000 HUF | ||
Ingatlan adatai
- Eladó vagy kiadó:Eladó
- Település:Budapest II. kerület
- Kategória:Lakás
- Alkategória:Tégla
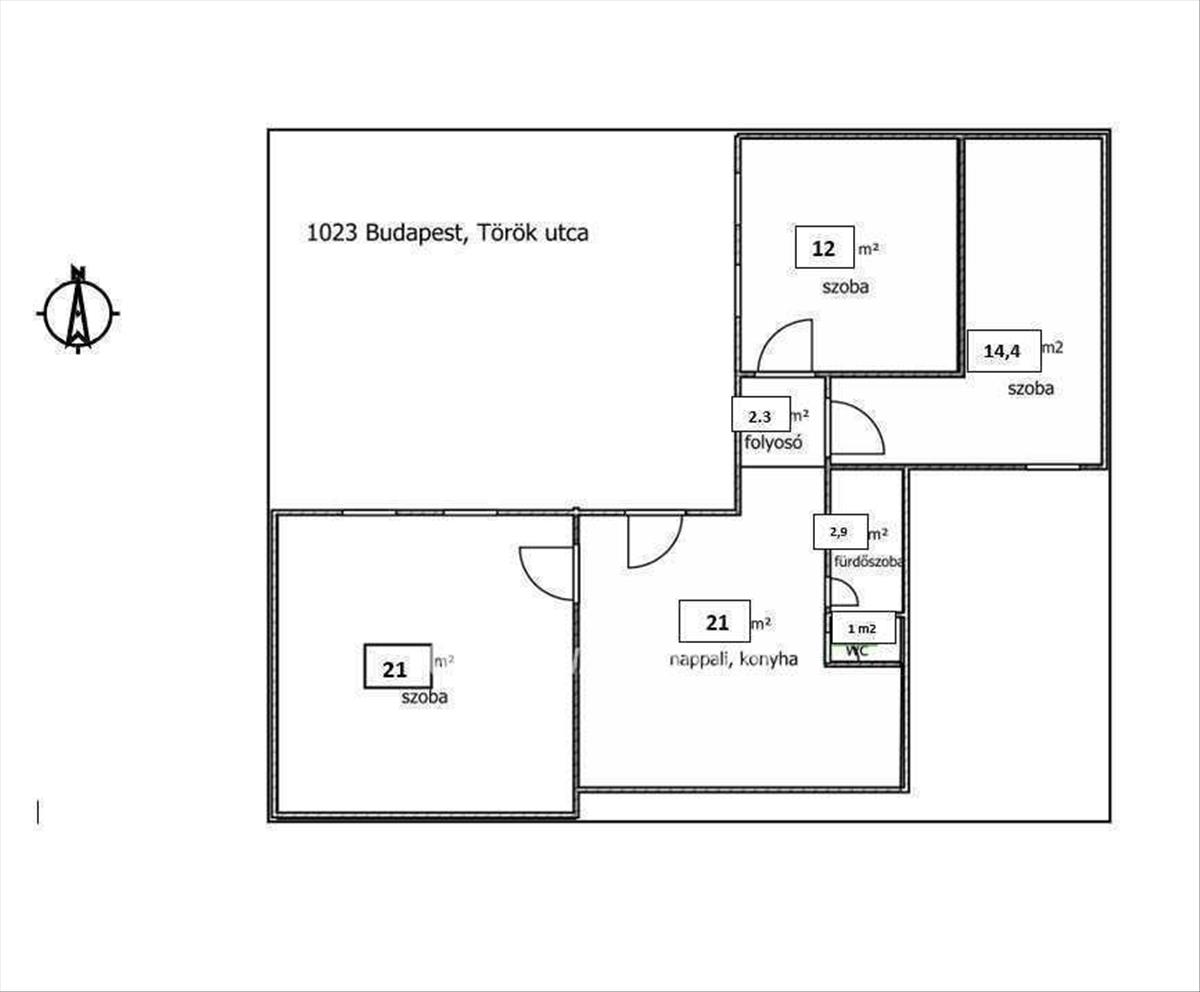
- Alapterület:74 m2
- Csere is:Nem
- Hirdető:Cég
- Élő videón megtekinthető:Nem
- Szobaszám:3
- Állapot:Jó állapotú
- Hány szintes az ingatlan:Földszintes
- Komfortosság:nincs megadva
- Hányadik emeleti:3
- Lift:Van
- Parkolási lehetőség:nincs megadva
- Fűtés:Gáz (cirko)
- Bútorozottság:nincs megadva
- Fényviszony:Jó
- Tájolás:nincs megadva
- Kilátás:nincs megadva
- Internet:nincs megadva
- Akadálymentesített:nincs megadva
- Energiatanúsítvány:nincs megadva
- Villany:Van
- Víz:Van
- Gáz:nincs megadva
- Csatorna:Van
- Közös költség:21 600 Ft
- Üzenetküldés
- Hívás

Papp-Horváth Katalin
Mondd meg a hirdetőnek, hogy a megveszLAK-on találtad a hirdetést.
Referencia szám: M315254

Hitel ajánlat
Ingatlan hirdetés leírása
Eladó Lakás, Budapest 2. ker.
Modern, kiváló elrendezésű lakás, nappali + 3 SZOBA!Budapest II. kerületében, Rózsadombon ajánlok a figyelmébe egy 74 négyzetméteres, világos és tágas lakást, amely amerikai konyhás nappalival és három külön nyíló szobával rendelkezik.
A lakás világos, jól szellőző, modern burkolatokkal és minőségi nyílászárókkal felszerelt. a fűtés gáz-cirkóról működik radiátoros hőleadással, de a nappaliban meghagyták a cserépkályhát is, amibe egy elektromos kandallót szereltek, illetve az egyik hálóban megmaradt az eredeti, fával fűthető cserépkályha is.
A környék csendes, mégis mindenhez közel van. Boltok, iskola, óvoda, tömegközlekedés pár perc sétára.
Ideális választás családoknak vagy befektetésnek egyaránt!
Az OTP Bank kedvezményes lakáshitelével segítjük vásárlását, egyedi kamatfeltételekkel és díjmentes ügyintézéssel. Amennyiben a lakás felkeltette érdeklődését és szívesen megnézné, akkor hívjon bizalommal, akár hétvégén is!
Referencia szám: m315254 Hitel.hu - Hasonlítsa össze a bankok lakáshitel ajánlatait

