- >>
- eladó ingatlanok
- >>
- eladó lakás
- >>
- eladó lakás Budapest III. kerület
- >>
Eladó új építésű lakás - Budapest III. kerület
| | |||
| Kedvencnek jelölöm | Elküldöm emailben | Megosztás | Szavazás |
| Kedvezményes lakáshitel ajánlatok | |||
| 129 900 000 HUF | |||
Ingatlan adatai
- Eladó vagy kiadó:Eladó
- Település:Budapest III. kerület
- Kategória:Lakás
- Alkategória:Tégla
- Alapterület:84 m2
- Csere is:Nem
- Hirdető:Cég
- Élő videón megtekinthető:Nem
- Szobaszám:3
- Állapot:Új építésű
- Hány szintes az ingatlan:nincs megadva
- Komfortosság:nincs megadva
- Hányadik emeleti:nincs megadva
- Erkély:Van
- Parkolási lehetőség:nincs megadva
- Fűtés:nincs megadva
- Bútorozottság:nincs megadva
- Fényviszony:nincs megadva
- Tájolás:K
- Kilátás:Kertre néző
- Internet:nincs megadva
- Akadálymentesített:nincs megadva
- Energiatanúsítvány:nincs megadva
- Villany:Van
- Víz:Van
- Gáz:Van
- Csatorna:Van
- Üzenetküldés
- Hívás


Hitel ajánlat
Ingatlan hirdetés leírása
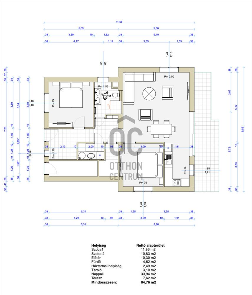
Képzelje el, hogy reggel a friss levegő és a csodás zöld körny...
Képzelje el, hogy reggel a friss levegő és a csodás zöld környezet fogadja, miközben mindössze egy kényelmes autó- vagy buszútra van Budapest belvárosától. Ebben a teljeskörűen felújított, amerikai konyhás nappali plusz két hálószobás lakásban egyedülálló panoráma és minőségi kivitelezés gondoskodik arról, hogy semmiről se kelljen lemondania: a nyugalomról, a kényelemről vagy a városi pezsgés elérhetőségéről.A lakás JELLEMZŐI
• Nettó 77 m² lakótér és egy 7, 76 m²-es örök panorámás erkély.
• Tégla építésű, utca szinti lakás.
• a domborzati viszonyoknak köszönhetően erkélyes, saját kertje nincs.
• Teljesen felújított, azonban a beltéri ajtók és burkolatok még választhatóak.
• Amerikai konyhás nappali, két külön nyíló hálószoba, fürdő-mosdó és háztartási helység elrendezésű.
• Hőszivattyús rendszer hűtésre-fűtésre, motoros alumínium árnyékolás előkészítésével.
• Előkészített riasztórendszer, kaputelefon, kábeltévé- és internetkiállások.
• Várható átadás: 2025. Augusztus
AZ ÉPÜLET
• Négy lakásos, teljesen felújított tégla társasház
• Szintenként egyetlen lakás nyújt kivételes intimitást.
• Modern és időtálló műszaki megoldások.
• 38 Cm-es tégla falazat és 10 cm-es szigetelés.
• Porotherm béléstestes födém és 3 rétegű ablakok a zaj- és hőszigetelés szolgálatában.
• Praktikus utcafronti térkövezett autóbeálló, ahol az elektromos autótöltés is megoldható.
A KÖRNYEZET
• Nyugodt zöldövezet, mégis karnyújtásra a város pezsgésétől.
• Bevásárlási lehetőségek, éttermek és tömegközlekedési csomópontok autóval néhány perces távolságban.
• Csillaghegy egyik legjobb részén található, ahol a természet közeliség és a kényelmi szolgáltatások harmóniában léteznek egymás mellett.
KINEK AJÁNLOM?
• Pároknak és családoknak, akik szeretnének egy csendes, tágas, ugyanakkor modern otthont.
• Akik értékelik a testre szabható belső tereket, és a valóban minőségi anyaghasználatot keresik.
• Azoknak, akik a városi forgatag elérhetősége mellett élveznék a természet közelségét és a panorámás kilátást.
Felmerülő kérdése és megtekintési igénye esetén várom megkeresését! Hitel.hu - Hasonlítsa össze a bankok lakáshitel ajánlatait

