Eladó felújítandó lakás Budapest III. kerület
| Kedvencbe | Megosztás | Árfigyelő |
| Kedvezményes lakáshitel ajánlatok | ||
| 79 500 000 HUF | ||
Ingatlan adatai
- Eladó vagy kiadó:Eladó
- Település:Budapest III. kerület
- Kategória:Lakás
- Alkategória:Tégla
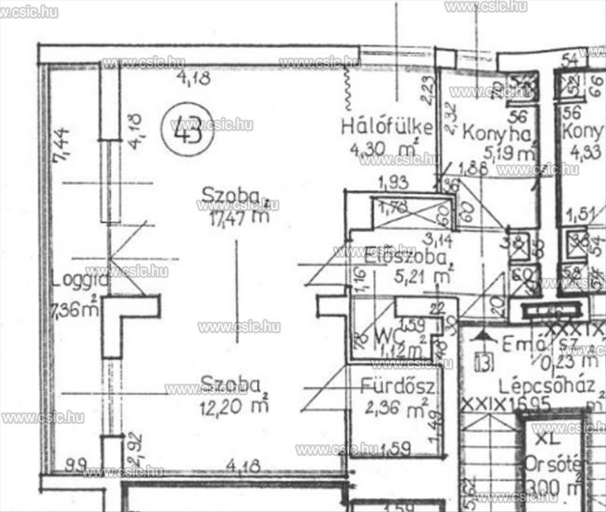
- Alapterület:52 m2
- Csere is:Nem
- Hirdető:Cég
- Élő videón megtekinthető:Nem
- Szobaszám:2
- Állapot:Felújítandó
- Hány szintes az ingatlan:nincs megadva
- Komfortosság:Összkomfortos
- Hányadik emeleti:3
- Parkolási lehetőség:nincs megadva
- Fűtés:Gáz (konvektor)
- Bútorozottság:nincs megadva
- Fényviszony:nincs megadva
- Tájolás:nincs megadva
- Kilátás:nincs megadva
- Internet:nincs megadva
- Akadálymentesített:nincs megadva
- Energiatanúsítvány:nincs megadva
- Villany:Van
- Víz:Van
- Gáz:Van
- Csatorna:Van
- Üzenetküldés
- Hívás


Hitel ajánlat
Ingatlan hirdetés leírása
ELADÓ LAKÁS BUDAPEST 3. KERÜLET ÓBUDA FELÚJÍTANDÓ
Eladó felújítandó téglalakás Óbudán – terasszal, tárolóval, kiváló adottságokkal!Óbuda közkedvelt, nyugodt részén kínálunk megvételre egy 52 m²-es, 2 szobás, felújítandó téglalakást, amely egy 3 emeletes épület 3. emeletén található.
Lift nincs, viszont a lakás világos, jó elosztású és kiváló lehetőségeket rejt magában.
Főbb jellemzők:
- 52 m² alapterület
- 2 szoba
- 7 m²-es terasz
- nyugati tájolás – világos, napfényes terek
- felújítandó állapot – saját igény szerint alakítható
- gázkonvektoros fűtés
- légkondicionáló
- saját tároló
- közös használatú biciklitároló és gyerekkocsi-tároló
- téglaépítésű társasház
- emelet (lift nélküli épület)
Környék:
Csendes, zöldövezeti környezet, mégis kiváló infrastruktúrával.
A közelben:
- bevásárlási lehetőségek
- iskola, óvoda
- orvosi rendelő, gyógyszertár
- tömegközlekedés (hév, busz, villamos)
- parkok, játszóterek, sportolási lehetőségek
- Duna-part könnyen elérhető
Kinek ajánlom?
Ideális választás:
- fiatal pároknak, első közös otthonnak
- befektetőknek kiadásra (albérlet, hosszú távú bérbeadás)
- kiscsaládosoknak, akik saját igényük szerint szeretnének otthont kialakítani
- idősebbeknek, akik nyugodt, zöld környezetben keresnek lakást
- felújításban gondolkodóknak, akik értéknövelő befektetést keresnek
Várom megtisztelő hívását a hét bármely napján. Hitel.hu - Hasonlítsa össze a bankok lakáshitel ajánlatait

