Eladó újszerű állapotú lakás - Budapest III. kerület
- INGYENES HIRDETÉS FELADÁS
Ingatlan adatai
- Eladó vagy kiadó:Eladó
- Település:Budapest III. kerület
- Kategória:Lakás
- Alkategória:Tégla
- Alapterület:100 m2
- Csere is:Nem
- Hirdető:Cég
- Élő videón megtekinthető:Nem
- Szobaszám:4
- Állapot:Újszerű, kitűnő
- Hány szintes az ingatlan:nincs megadva
- Komfortosság:nincs megadva
- Hányadik emeleti:nincs megadva
- Erkély:Van
- Lift:Van
- Parkolási lehetőség:nincs megadva
- Fűtés:Házközponti egyedi mérővel
- Bútorozottság:nincs megadva
- Fényviszony:nincs megadva
- Tájolás:DK
- Kilátás:Kertre néző
- Internet:nincs megadva
- Klíma:nincs megadva
- Akadálymentesített:nincs megadva
- Energiatanúsítvány:nincs megadva
- Villany:Van
- Víz:Van
- Gáz:Van
- Csatorna:Van
- Közös költség:42 000 Ft
- Kapcsolatfelvétel

Baranyai Eszter
+36-(70)-467-6769
Mondd meg a hirdetőnek, hogy a megveszLAK-on találtad a hirdetést.
Hitel ajánlatok
Ingatlan hirdetés leírása
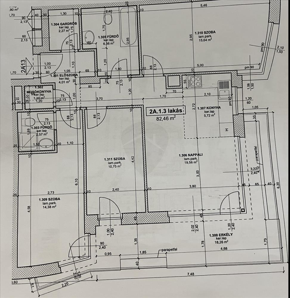
Csillaghegy kedvelt részén, a III. kerületben kínálunk eladásr...
Csillaghegy kedvelt részén, a III. kerületben kínálunk eladásra egy 83 m²-es, modern és világos lakást 18 m²-es napfényes terasszal, amely elrendezésének köszönhetően kiváló választás családoknak és mindazoknak, akik kényelmes, nyugodt otthont keresnek a város közelségében, mégis zöldövezeti környezetben.
Az 1. emeleti ingatlanban amerikai konyhás nappali, három külön nyíló hálószoba, két fürdőszoba (egyik kádas, másik zuhanyzós), mosókonyha és gardróbhelyiség található. a nappaliból közvetlenül nyílik a 18 m²-es, napfényes terasz, amely ideális helyszíne lehet a reggeli kávézásnak, baráti összejöveteleknek vagy a nap végi pihenésnek.
Főbb előnyök:
- Amerikai konyhás nappali étkezővel
- 18 m²-es tágas, napos terasz
- 3 különnyíló, tágas és kényelmes hálószoba ( 14 m2, 11 m2, 16 m2 )
- 2 fürdőszoba (kádas és zuhanyzós)
- Külön mosókonyha + gardróbhelyiség
Teremgarázs-beálló bérelhető
Bútorozottan is megvásárolható (megegyezés szerint)
Társasház és környezet:
Az épület 2023-ban épült, modern téglaház korszerű hőszigeteléssel, rendezett közös terekkel és igényes lakóközösséggel. a környék biztonságos és nyugodt, így ideális választás gyermekes családok számára is.
Elhelyezkedés és szabadidő:
A lakás közvetlen környezete zöldövezeti hangulatot áraszt, erdők és parkok közelében. a közkedvelt Csillaghegyi Strandfürdő, a Lupa-tó és a Duna-part rövid időn belül elérhető, így a vízparti és szabadtéri kikapcsolódási lehetőségek garantáltak. Futás, kerékpározás, kirándulás – minden adott a természetközeli élethez.
Közlekedés:
A HÉV-megálló gyalogosan is néhány perc alatt elérhető, több buszjárat biztosít gyors összeköttetést a belvárossal, így a közlekedés a nap bármely szakában kényelmes.
Ez az ingatlan egyszerre nyújt modern kényelmet, átgondolt elosztást és zöldövezeti nyugalmat a III. kerület egyik legkedveltebb részén.
Amennyiben praktikus, igényes otthont keres Csillaghegyen, hívjon bizalommal a részletekért és a megtekintésért – örömmel állok rendelkezésére! Hitel.hu - Hasonlítsa össze a bankok lakáshitel ajánlatait
Tetszett ez az eladó Budapest III. kerületi újszerű állapotú 4 szobás tégla lakás? Hívd fel a hirdetőt most, és tudj meg mindent erről az eladó tégla lakásról! Ha gondolod nézelődj tovább az eladó lakás Budapest III. kerület oldal hirdetései között. Ennek az eladó lakásnak az ára 157000000 Ft és mivel az alapterülete 100 négyzetméter, ezért az átlagos négyzetméterára 1570000 HUF/m2.
Az eladó lakások menüpontban további hirdetések között is böngészhetsz. Az összes eladó budapesti lakás hirdetést tartalmazó oldalon tudsz böngészni. Ha van kedved, akkor böngészhetsz a Baranyai Eszter összes hirdetése között, vagy akár a/az rockhome5kerulet összes hirdetése között is.

