Eladó újszerű állapotú lakás - Budapest III. kerület
- INGYENES HIRDETÉS FELADÁS
Ingatlan adatai
- Eladó vagy kiadó:Eladó
- Település:Budapest III. kerület
- Kategória:Lakás
- Alkategória:Tégla
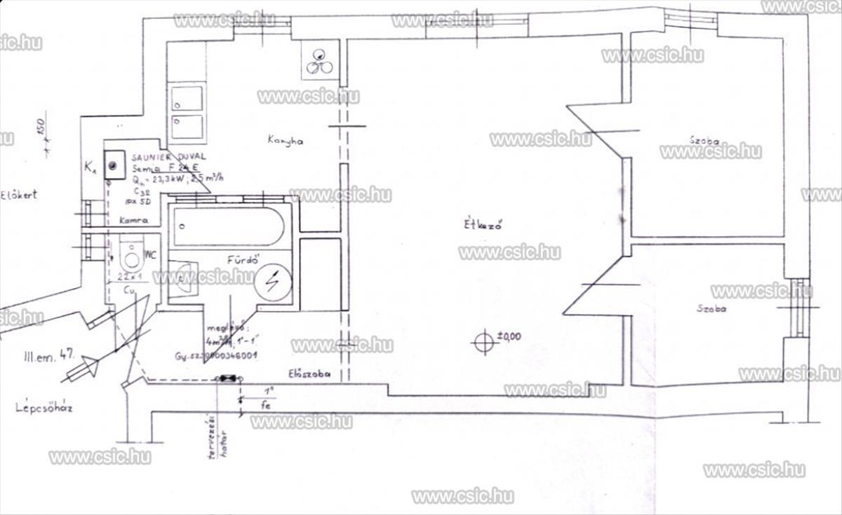
- Alapterület:47 m2
- Csere is:Nem
- Hirdető:Cég
- Élő videón megtekinthető:Nem
- Szobaszám:2 + 1 fél
- Állapot:Újszerű, kitűnő
- Hány szintes az ingatlan:nincs megadva
- Komfortosság:Összkomfortos
- Hányadik emeleti:3
- Erkély:nincs megadva
- Lift:nincs megadva
- Parkolási lehetőség:Beállóban
- Fűtés:Gáz (cirko)
- Bútorozottság:nincs megadva
- Fényviszony:nincs megadva
- Tájolás:nincs megadva
- Kilátás:Kertre néző
- Internet:nincs megadva
- Klíma:Van
- Akadálymentesített:nincs megadva
- Energiatanúsítvány:nincs megadva
- Villany:Van
- Víz:Van
- Gáz:Van
- Csatorna:Van
- Kapcsolatfelvétel

Hitel ajánlatok
Ingatlan hirdetés leírása
ELADÓ LAKÁS BUDAPEST 3. KERÜLET ÓBUDA FELÚJÍTOTT
Felújított, kertre néző otthon Óbuda szívében – nyugalom és kiváló lokáció egyben.
Óbuda egyik kedvelt, csendes részén kínálok megvételre egy 47 m²-es, 2+fél szobás, felújított téglalakást, egy jó állapotú, háromszintes társasház 3. emeletén.
A lakás nyugati tájolású, ablakai a parkosított, kerítéssel körbevett belső kertre néznek, így világos, kifejezetten nyugodt hangulatú.
A lakás jellemzői:
- 2+fél szoba
- tároló helyiség
- kádas fürdőszoba
- külön toalett
- teljes körű felújítás
- vezetékek cserélve
- új nyílászárók, fa + thermo üvegezéssel, szúnyoghálóval
- kombi cirkó fűtés
- klíma
- laminált parketta
- praktikus, jól élhető elrendezés
- pincei tároló tartozik hozzá
A társasházról:
- téglaépítésű, rendezett épület
- parkosított, zárt kert
- a tető 2021-ben felújítva (cserépfedés)
- a lépcsőházban 2025 végén villanyhálózat-csere történt
- lift nincs
Parkolás:
A lakáshoz - kerítésen belül - autóbeálló TARTOZIK.
Lokáció & közlekedés:
- kiváló elhelyezkedésű ingatlan, Óbuda frekventált, mégis nyugodt részén.
- a közelben tömegközlekedési csomópontok, bevásárlási lehetőségek, iskola, óvoda, orvosi rendelő, valamint a Duna-part és zöldterületek is könnyen elérhetők.
- Gyors kapcsolat a belváros felé
Kinek ajánlom?
- Fiatal pároknak, akik felújítással már nem szeretnének bajlódni
- kiscsaládosoknak, a praktikus elrendezés miatt
- befektetőknek, kiváló kiadhatóság és keresett lokáció
- vagy bárkinek, aki nyugodt, zöld környezetben, mégis jó közlekedéssel keres otthont
Az alaprajz tájékoztató jellegű.
Várom hívását a hét bármely napján! Hitel.hu - Hasonlítsa össze a bankok lakáshitel ajánlatait
Tetszett ez az eladó Budapest III. kerületi újszerű állapotú 2 egész és 1 fél szobás tégla lakás? Hívd fel a hirdetőt most, és tudj meg mindent erről az eladó tégla lakásról! Ha gondolod nézelődj tovább az eladó lakás Budapest III. kerület oldal hirdetései között. Ennek az eladó lakásnak az ára 79500000 Ft és mivel az alapterülete 47 négyzetméter, ezért az átlagos négyzetméterára 1691489 HUF/m2.
Az eladó lakások menüpontban további hirdetések között is böngészhetsz. Az összes eladó budapesti lakás hirdetést tartalmazó oldalon tudsz böngészni. Ha van kedved, akkor böngészhetsz a Pataky Rita összes hirdetése között, vagy akár a/az Családi Ingatlan összes hirdetése között is.

