Eladó új építésű lakás - Budapest III. kerület
- INGYENES HIRDETÉS FELADÁS
Ingatlan adatai
- Eladó vagy kiadó:Eladó
- Település:Budapest III. kerület
- Kategória:Lakás
- Alkategória:Tégla
- Alapterület:130 m2
- Csere is:Nem
- Hirdető:Cég
- Élő videón megtekinthető:Nem
- Szobaszám:4
- Állapot:Új építésű
- Hány szintes az ingatlan:Földszintes
- Komfortosság:nincs megadva
- Kertkapcsolatos:Igen
- Hányadik emeleti:Szuterén
- Erkély:nincs megadva
- Lift:Nincs
- Parkolási lehetőség:nincs megadva
- Fűtés:Hőszivattyús
- Bútorozottság:nincs megadva
- Fényviszony:Napfényes
- Tájolás:DK
- Kilátás:nincs megadva
- Internet:nincs megadva
- Klíma:nincs megadva
- Akadálymentesített:nincs megadva
- Energiatanúsítvány:nincs megadva
- Villany:Van
- Víz:Van
- Gáz:nincs megadva
- Csatorna:Van
- Kapcsolatfelvétel

Miczán-Magyar Georgina
+36-(30)-605-7613
Mondd meg a hirdetőnek, hogy a megveszLAK-on találtad a hirdetést.
Referencia szám: LK084200
Hitel ajánlatok
Ingatlan hirdetés leírása
Eladó lakás, Budapest 3. ker.
Budapest 3. kerület Csillaghegyen! Örök panorámás! Új építésű! 4 Lakásos társasházban! Földszinti, 130 m2, es, teraszos, kertkapcsolatos lakás ELADÓ!
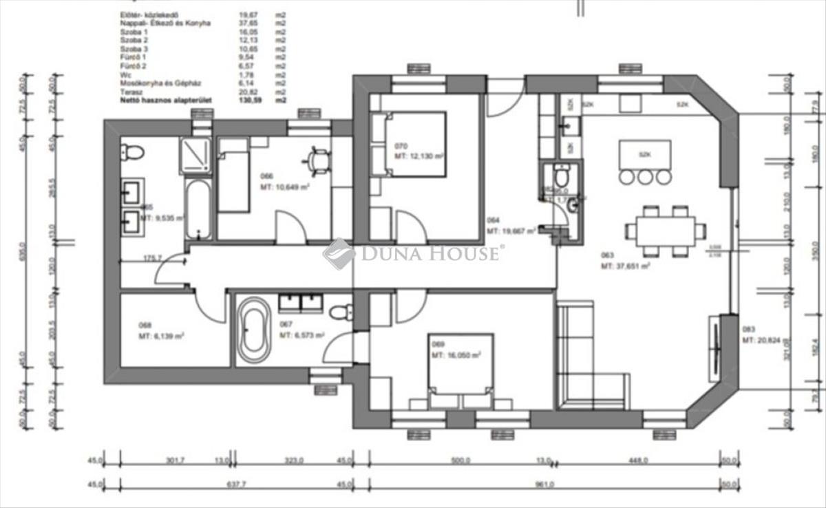
Az ingatlan az alábbi helyiségekből áll: panorámás nappali + konyha, 3 szoba, előszoba, 2 db fürdő +wc, lépcsőtér, erkély, háztartási helyiség.
Alapterület : 120, 18 m2 + 20, 812 m2 terasz + 250 m2 saját kert. Egyedülálló panoráma! Zöldövezet! a lakás csendes zsákutcában van, de könnyen megközelíthető tömegközlekedéssel is. Az ingatlanhoz tartozik egy térkövezett kocsibeálló, ami benne van az árban. a 4 lakásos társasház 4 szintes, minden szinten 1 lakás helyezkedik el. Külön bejárata van minden lakásnak, így nincs közös helyiség!
Műszaki tartalom:
- 38 cm Porotherm tégla falazat, 10 cm-es grafitos szigeteléssel
- Porotherm béléstestes közbendő födém
- 3 rétegű üvegezéssel ellátott fehér műanyag nyílászárók
- hőszivattyús hűtés-fűtés
- térkövezett kocsibeálló
- elektromos autótöltő előkészítés, motoros alumínium zsaluzia előkészítés, riasztórendszer előcsövezés, mozgásérzékelő, kaputelefon, kábeltévé és internet előkészítés, stb.
Kulcsrakész átadás: 2025. Március
Referencia szám: lk084200 Hitel.hu - Hasonlítsa össze a bankok lakáshitel ajánlatait
Tetszett ez az eladó Budapest III. kerületi új építésű 4 szobás tégla lakás? Hívd fel a hirdetőt most, és tudj meg mindent erről az eladó tégla lakásról! Ha gondolod nézelődj tovább az eladó lakás Budapest III. kerület oldal hirdetései között. Ennek az eladó lakásnak az ára 229900000 Ft és mivel az alapterülete 130 négyzetméter, ezért az átlagos négyzetméterára 1768462 HUF/m2.
Az eladó lakások menüpontban további hirdetések között is böngészhetsz. Az összes eladó budapesti lakás hirdetést tartalmazó oldalon tudsz böngészni. Ha van kedved, akkor böngészhetsz a Miczán-Magyar Georgina összes hirdetése között, vagy akár a/az Duna House Fót összes hirdetése között is.

