Eladó felújított lakás - Budapest III. kerület
- INGYENES HIRDETÉS FELADÁS
Ingatlan adatai
- Eladó vagy kiadó:Eladó
- Település:Budapest III. kerület
- Kategória:Lakás
- Alkategória:Tégla
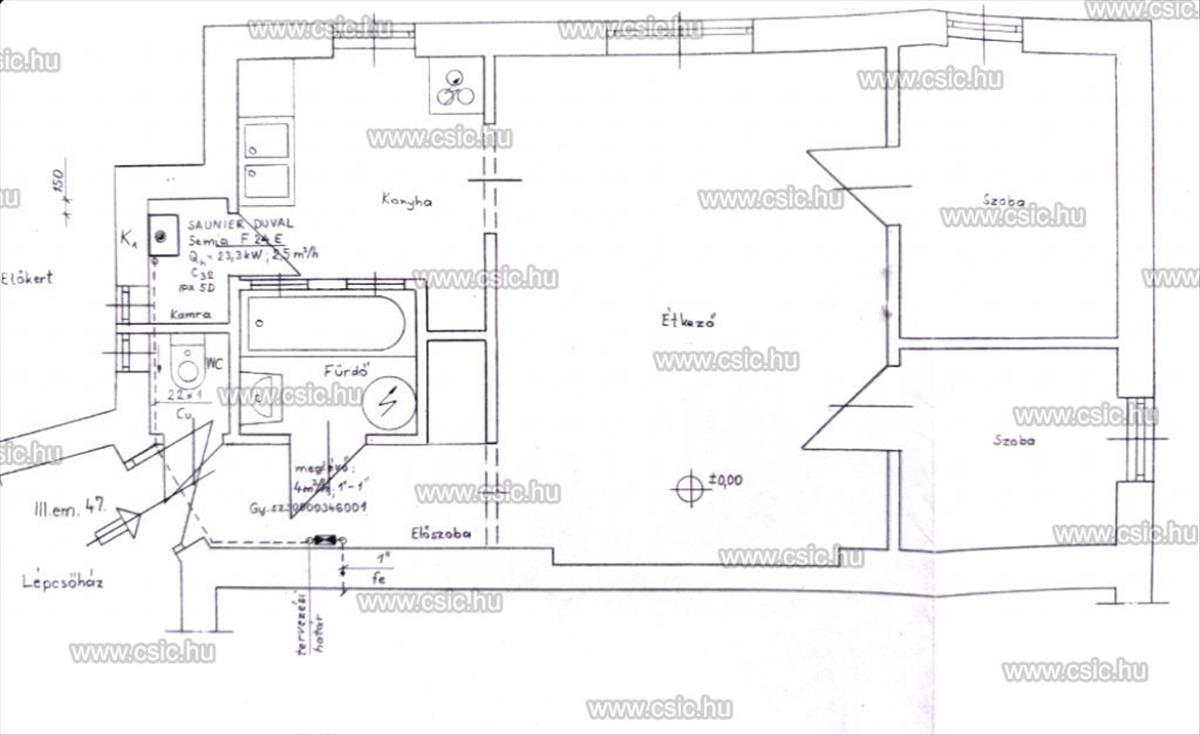
- Alapterület:47 m2
- Csere is:Nem
- Hirdető:Cég
- Élő videón megtekinthető:Nem
- Szobaszám:2 + 1 fél
- Állapot:Felújított
- Hány szintes az ingatlan:nincs megadva
- Komfortosság:Összkomfortos
- Hányadik emeleti:3
- Erkély:nincs megadva
- Lift:nincs megadva
- Parkolási lehetőség:Beállóban
- Fűtés:Gáz (cirko)
- Bútorozottság:nincs megadva
- Fényviszony:nincs megadva
- Tájolás:nincs megadva
- Kilátás:Kertre néző
- Internet:nincs megadva
- Klíma:Van
- Akadálymentesített:nincs megadva
- Energiatanúsítvány:nincs megadva
- Villany:Van
- Víz:Van
- Gáz:Van
- Csatorna:Van
- Kapcsolatfelvétel

Pataky Rita
+36-(20)-351-5304
Mondd meg a hirdetőnek, hogy a megveszLAK-on találtad a hirdetést.
Hitel ajánlatok
Ingatlan hirdetés leírása
ELADÓ LAKÁS BUDAPEST 3. KERÜLET ÓBUDA FELÚJÍTOTT
Felújított, kertre néző otthon Óbuda szívében – nyugalom és kiváló lokáció egyben.
Óbuda egyik kedvelt, csendes részén kínálok megvételre egy 47 m²-es, 2+fél szobás, felújított téglalakást, egy jó állapotú, háromszintes társasház 3. emeletén.
A lakás nyugati tájolású, ablakai a parkosított, kerítéssel körbevett belső kertre néznek, így világos, kifejezetten nyugodt hangulatú.
A lakás jellemzői:
- 2+fél szoba
- tároló helyiség
- kádas fürdőszoba
- külön toalett
- teljes körű felújítás
- vezetékek cserélve
- új nyílászárók, fa + thermo üvegezéssel, szúnyoghálóval
- kombi cirkó fűtés
- klíma
- laminált parketta
- praktikus, jól élhető elrendezés
- pincei tároló tartozik hozzá
A társasházról:
- téglaépítésű, rendezett épület
- parkosított, zárt kert
- a tető 2021-ben felújítva (cserépfedés)
- a lépcsőházban 2025 végén villanyhálózat-csere történt
- lift nincs
Parkolás:
A lakáshoz - kerítésen belül - autóbeálló TARTOZIK.
Lokáció & közlekedés:
- kiváló elhelyezkedésű ingatlan, Óbuda frekventált, mégis nyugodt részén.
- a közelben tömegközlekedési csomópontok, bevásárlási lehetőségek, iskola, óvoda, orvosi rendelő, valamint a Duna-part és zöldterületek is könnyen elérhetők.
- Gyors kapcsolat a belváros felé
Kinek ajánlom?
- Fiatal pároknak, akik felújítással már nem szeretnének bajlódni
- kiscsaládosoknak, a praktikus elrendezés miatt
- befektetőknek, kiváló kiadhatóság és keresett lokáció
- vagy bárkinek, aki nyugodt, zöld környezetben, mégis jó közlekedéssel keres otthont
Az alaprajz tájékoztató jellegű.
Várom hívását a hét bármely napján! Hitel.hu - Hasonlítsa össze a bankok lakáshitel ajánlatait

