Eladó felújított lakás Budapest III. kerület
| Kedvencbe | Megosztás | Árfigyelő |
| Kedvezményes lakáshitel ajánlatok | ||
| 112 900 000 HUF | ||
Ingatlan adatai
- Eladó vagy kiadó:Eladó
- Település:Budapest III. kerület
- Kategória:Lakás
- Alkategória:Tégla
- Alapterület:78 m2
- Csere is:Nem
- Hirdető:Cég
- Élő videón megtekinthető:Nem
- Szobaszám:2
- Állapot:Felújított
- Hány szintes az ingatlan:nincs megadva
- Komfortosság:nincs megadva
- Hányadik emeleti:3
- Parkolási lehetőség:nincs megadva
- Fűtés:Egyéb
- Bútorozottság:nincs megadva
- Fényviszony:nincs megadva
- Tájolás:nincs megadva
- Kilátás:nincs megadva
- Internet:nincs megadva
- Akadálymentesített:nincs megadva
- Energiatanúsítvány:nincs megadva
- Villany:Van
- Víz:Van
- Gáz:Van
- Csatorna:Van
- Üzenetküldés
- Hívás


Hitel ajánlat
Ingatlan hirdetés leírása
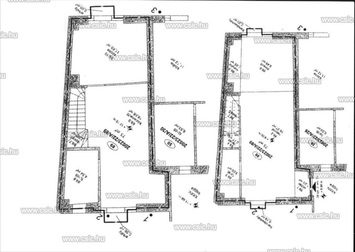
Belső kétszintes, 74m2-es, 2szobás jó állapotú lakás Óbuda köz...
Sürgősen ELADÓ!A lakás jellemzői:
- 2004-ben épült lakópark
- 4 emeletes liftes társasház 3. emeletén található az ingatlan
- turbó-gázkazán fűtési rendszer
- fa+thermo üveggel ellátott nyílászárók
- modern, fiatalos, lakberendező által kivitelezett lakás, egyedi megoldásokkal
- az alsó emeleten egy tágas amerikai konyhás nappali, tároló, különálló wc található
- az emeleten egy hálószoba, egy tágas dolgozószoba és egy zuhanyzós fürdőszoba, beépített szekrények kaptak helyet
- az emeleti nagyobbik szobát két szobává tudjuk alakítani ha igény van rá
- biztonsági bejárati ajtó
- 2-2 francia erkély mindkét szinten
- utcai kamera rendszer és 0-24 órás biztonsági szolgálat
- a lakóparknak egy gyönyörű parkos belső kertje van ami kertész gondozásában áll, játszótér is kialakításra került benne
Lakás környezete:
- a környék nagyon biztonságos, családias, szomszédok barátságosak
- agglomeráció kitűnő, minden megtalálható a közelben
- spar sétatávolságra, Lild, aldi, Tesco, Auchan, GoBuda, Stop Shop autóval 5perc alatt elérhető
- a környéken óvoda, iskola, játszótér
- tömegközlekedés kiváló: 1 percre Volán és bkv buszok
- az Aranyvölgy vonatmegálló 5 perc sétatávolságra található
- Margit-sziget, Árpád híd 3km távolságon belül elérhető
- Csillaghegyi strand 10perc autóval
- parkolás ingyenesen megoldható
Kifejezetten ajánlom a lakást pároknak, időseknek, csodás természetközeli környezet!
Kiadásra is remek opció, a környék keresett!
Amennyiben felkeltette érdeklődését, várom megtisztelő hívását a hét bármely napján, hitel ügyintéző kollégám ingyenes segítséget nyújt! Hitel.hu - Hasonlítsa össze a bankok lakáshitel ajánlatait

