Eladó újszerű állapotú lakás - Budapest III. kerület
- INGYENES HIRDETÉS FELADÁS
Ingatlan adatai
- Eladó vagy kiadó:Eladó
- Település:Budapest III. kerület
- Kategória:Lakás
- Alkategória:Tégla
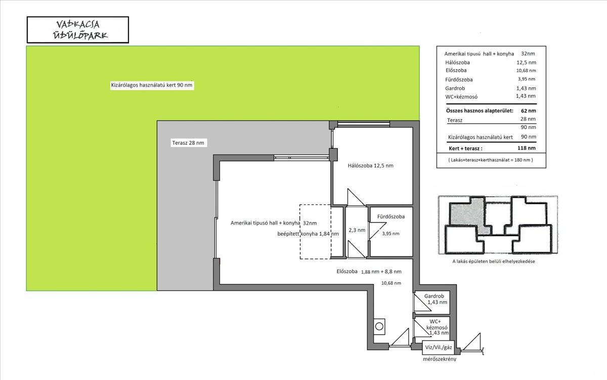
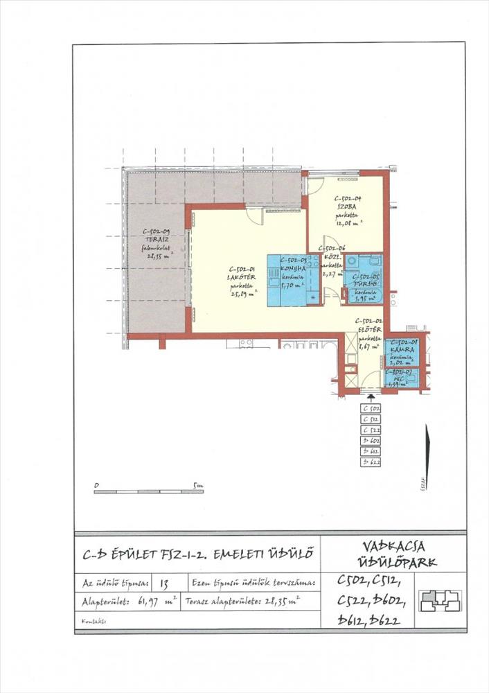
- Alapterület:62 m2
- Csere is:Nem
- Hirdető:Cég
- Élő videón megtekinthető:Nem
- Szobaszám:2
- Állapot:Újszerű, kitűnő
- Hány szintes az ingatlan:nincs megadva
- Komfortosság:nincs megadva
- Kertkapcsolatos:Igen
- Hányadik emeleti:nincs megadva
- Erkély:nincs megadva
- Lift:Van
- Parkolási lehetőség:nincs megadva
- Fűtés:nincs megadva
- Bútorozottság:nincs megadva
- Fényviszony:nincs megadva
- Tájolás:nincs megadva
- Kilátás:nincs megadva
- Internet:nincs megadva
- Klíma:nincs megadva
- Akadálymentesített:nincs megadva
- Energiatanúsítvány:nincs megadva
- Villany:nincs megadva
- Víz:nincs megadva
- Gáz:nincs megadva
- Csatorna:nincs megadva
- Kapcsolatfelvétel

Jécsák János
+36-(30)-215-4004
Mondd meg a hirdetőnek, hogy a megveszLAK-on találtad a hirdetést.
Hitel ajánlatok
Ingatlan hirdetés leírása
Eladó Budapest 3. kerület római parton kert kapcsolatos földsz...
Eladó Budapest 3. kerület Római parton a Vadkacsa lakóparkban újszerű állapotú, karbantartott lakás, ami az építés évében elnyerte az “Év lakóparkja” megtisztelő címet.
Az ingatlan előnye, hogy az alapító okiratban a lakáshoz tartozik egy közvetlen kertkapcsolat, ami zöld sövénnyel körbe vett füves terület, és kizárólagos használatot biztosít.
Szintén előny hogy az emeleti lakásokhoz hasonlóan a teraszt üveg fallal beépítve 28 m2-el bővíthető a fedett lakótér.
Az épület alatti teremgarázsban egy autó, és egy motorkerékpár számára parkolóhely vásárolható. (Nem része a meghirdetett vételárnak. )
Az udvaron található közös használatú medence, játszótér, parkosított kert.
A Duna közelsége számos kikapcsolódási, sportolási lehetőséget biztosít.
A lakás egyedisége, hogy minden helyiségből ki lehet menni a saját használatú teraszra, ami közvetlen kertkapcsolatos. Jó elrendezésű, amerikai konyhás nappalival rendelkezik, 2 Wc-vel. 2025-Ben 2 db hőszivattyús klíma lett kialakítva. a fűtés gáz kombi cirkó radiátoros höleadással 2025-ben kirszerüsítve.
Ingatlan főbb jellemzői:
-2004-es építés
-90 m2 kert
-62 m2 lakótér
-28 m2 fedett terasz
-2025-ös garanciális mosógép
-2025-ös garanciális Bosch kondenzációs gázkazán
-Berendezett
-Liftes ház
-5000-Ft/hó fűtésátalány melegvízzel együtt
-Besorolása: társas üdülő
-1+1 szobás
-fsz-i lakás
-K-i tájolás
-2025-ben felújított vörösfenyős teraszburkolat, és árnyékolók
Közös költség: 49. 000. -Ft/hó, mely tartalmazza a porta szolgálatot, őrzött zárt kamerázott udvar állandó őrrel, a közös medence használatot, kertészt, a közös terület karbantartását, fűnyírást, közös képviselő díját, biztosítást, szemét szállítást stb.
-A közmű egyedi fogyasztás alapján történik.
-Per teher és igénymentes
-Azonnal birtokba vehető.
-Két kijárat a Duna partra
-Kertben kajak tárolási lehetőség
-Gyerekbarát környezet
-1 teremgarázs hely: +10 millió Ft. Külön megvásárolható
Ajánlom családoknak, akik szeretik a biztonságot, exluzív, kényelmes otthont keresnek, s igényes lakóközösség és környezetet keresnek. Befektetőknek is ajánlom a jól kiadhatóság miatt.
Az épület kapuja csupán 50 méterre található a Duna-parttól, így az ingatlan kiváló választás lehet azoknak, akik szeretik a természet közelségét és a folyóparti sétákat.
A környék közlekedése optimális, a H5-ös hév Rómaifürdő megállója, a 34-es, 106-os és 134-es buszok néhány perc sétával elérhetők, melyekkel gyorsan és kényelmesen juthatunk be a belvárosba. a bevásárlás megoldható a közeli Auchan, Lidl és Aldi üzletekben. a környék híres hangulatos éttermeiről, kávézóiról, cukrászdáiról, melyek különös atmoszférát és kellemes kikapcsolódást nyújtanak mind az odalátogatók, mind a helyi lakosok számára.
Sportolási lehetőségek tekintetében a Római Teniszakadémia, a Fit World Fitness és a közeli evezős klubok biztosítanak kiváló lehetőségeket az aktív kikapcsolódásra. a Duna-part közelsége pedig nemcsak kellemes sétákra, hanem vízi sportokra, biciklizésre és futásra is ideális helyszínt kínál. a környék családosok számára is remek választás, hiszen a közelben található a Bíbic Óvoda, valamint a békásmegyeri Veres Péter Gimnázium.
AZ ingatlan tulajdoni lapon üdülőként van nyilvántartva, lakáscélú hitel csak pótfedezet bevonásával lehetséges! 3%-Os hitelre nem alkalmas!
Amennyiben szeretné megnézni ezt a csodálatos lakást, vagy további információkat szeretne kapni róla, kérjük, lépjen kapcsolatba velünk. Állunk rendelkezésére, hogy segítsünk az álmai otthonának megtalálásában.
Az alaprajz méretpontos és a valóságnak megfelel.
Irodánkban a következő szolgáltatásokkal állunk meglévő és leendő ügyfeleink rendelkezésére:
-ingatlanközvetítés (díjmentes tanácsadás, kiemelt méretű vevői adatbázis, magas szintű szakmai háttér, hatékony eladási stratégia, profi áralku)
-értékbecslés
-bank semleges hitelügyintézés vásárlóknak (díjmentes hitelszűrés és tanácsadás)
-Adás-vétellel kapcsolatos jogi tanácsadás.
-Energetikai tanúsítvány készítése.
Bármely kérdés felmerül önben az ingatlannal kapcsolatban, keressen bátran,
Ezúton tájékoztatjuk, hogy Ön, mint érdeklődő, a pénzmosás, és terrorizmus elleni adatvédelem (gdpr) értelmében a hirdetésben megjelölt telefonszám felhívásával hozzájárul személyes adatai – így különösen neve és telefonszáma -, a hirdetést feladó janavit Ingatlaniroda általi - biztonságos és körültekintő - kezeléséhez, nyilvántartásához.
Részletes adatkezelési tájékoztatónkat megtalálja honlapunkon.
Ingatlanügyeit megoldja a janavit! (Hivatkozási szám: m126103) Hitel.hu - Hasonlítsa össze a bankok lakáshitel ajánlatait
Tetszett ez az eladó Budapest III. kerületi újszerű állapotú 2 szobás tégla lakás? Hívd fel a hirdetőt most, és tudj meg mindent erről az eladó tégla lakásról! Ha gondolod nézelődj tovább az eladó lakás Budapest III. kerület oldal hirdetései között. Ennek az eladó lakásnak az ára 120000000 Ft és mivel az alapterülete 62 négyzetméter, ezért az átlagos négyzetméterára 1935484 HUF/m2.
Az eladó lakások menüpontban további hirdetések között is böngészhetsz. Az összes eladó budapesti lakás hirdetést tartalmazó oldalon tudsz böngészni. Ha van kedved, akkor böngészhetsz a Jécsák János összes hirdetése között, vagy akár a/az Janavit Ingatlaniroda összes hirdetése között is.

