Eladó jó állapotú lakás - Budapest III. kerület
- INGYENES HIRDETÉS FELADÁS
Ingatlan adatai
- Eladó vagy kiadó:Eladó
- Település:Budapest III. kerület
- Kategória:Lakás
- Alkategória:Tégla
- Alapterület:146 m2
- Csere is:Nem
- Hirdető:Cég
- Élő videón megtekinthető:Nem
- Szobaszám:4 + 1 fél
- Állapot:Jó állapotú
- Hány szintes az ingatlan:2 szintes
- Komfortosság:nincs megadva
- Hányadik emeleti:2
- Erkély:nincs megadva
- Lift:nincs megadva
- Parkolási lehetőség:Teremgarázsban (fizetős)
- Fűtés:nincs megadva
- Bútorozottság:Részben bútorozott
- Fényviszony:nincs megadva
- Tájolás:DK
- Kilátás:nincs megadva
- Internet:nincs megadva
- Klíma:Van
- Akadálymentesített:Részben akadálymentes
- Energiatanúsítvány:nincs megadva
- Villany:nincs megadva
- Víz:nincs megadva
- Gáz:nincs megadva
- Csatorna:nincs megadva
- Közös költség:96 000 Ft
- Kapcsolatfelvétel

Keszler Anna
+36-(20)-334-6639
Mondd meg a hirdetőnek, hogy a megveszLAK-on találtad a hirdetést.
Hitel ajánlatok
Ingatlan hirdetés leírása
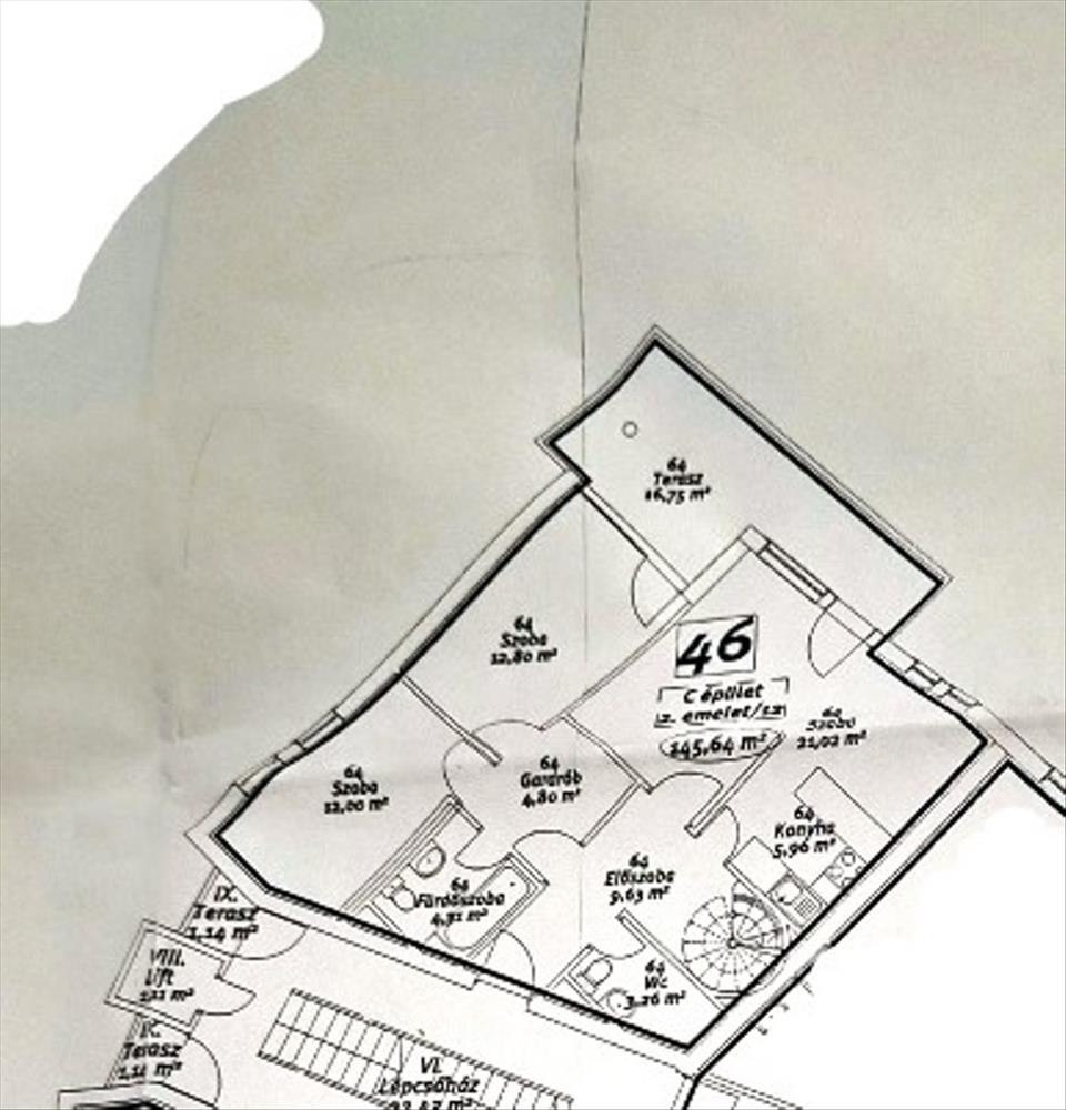
Eladásra kínálunk La Siesta Lakóparkban egy 146nm-es, Nappali+...
Eladásra kínálunk La Siesta Lakóparkban egy 146nm -es, Nappali+4, belső 2 szintes penthouse lakást, 2 fürdővel + egy vendég wc-mosókonyhával, közel (össz. ) 63. 8Nm-es panorámás terasszal.
Az ingatlan alsó szintjén található a nappali-konyha-étkező és a hozzá tartozó terasz, valamint 2 hálószoba, egy kádas fürdővel és a vendég mosdóval. Az emeleten van egy master bedroom külön zuhanyzós fürdővel, kis gardróbbal, valamint egy dolgozó és egy hatalmas terasz.
Az épület az első ütemben készült el 2002-ben. Saját kombi cirkó fűtéssel, radiátoros hőleadókkal rendelkezik. Állapotát tekintve, törődést igényel.
A lakópark kifejezetten népszerű, rendezett, saját portaszolgálattal rendelkezik, több bejáraton megközelíthető a Szépvölgyi út felől. a lakáshoz tartozik egy kényelmes méretű teremgarázs beálló további 16m ft-ért és egy tároló a vételáron felül további 4m ft értékben. Lehetőség van + 1 garázs beálló vásárlására is.
Közlekedése és infrastrukturális ellátottsága kifejezetten előnyös, 3 perc sétára a Kolosy tér.
Amennyiben felkeltettem érdeklődését, várom hívását. Hitel.hu - Hasonlítsa össze a bankok lakáshitel ajánlatait
Tetszett ez az eladó Budapest III. kerületi jó állapotú 4 egész és 1 fél szobás tégla lakás? Hívd fel a hirdetőt most, és tudj meg mindent erről az eladó tégla lakásról! Ha gondolod nézelődj tovább az eladó lakás Budapest III. kerület oldal hirdetései között. Ennek az eladó lakásnak az ára 299990000 Ft és mivel az alapterülete 146 négyzetméter, ezért az átlagos négyzetméterára 2054726 HUF/m2.
Az eladó lakások menüpontban további hirdetések között is böngészhetsz. Az összes eladó budapesti lakás hirdetést tartalmazó oldalon tudsz böngészni. Ha van kedved, akkor böngészhetsz a Keszler Anna összes hirdetése között, vagy akár a/az Be My Home összes hirdetése között is.

