- >>
- eladó ingatlanok
- >>
- eladó lakás
- >>
- eladó lakás Budapest III. kerület
- >>
Eladó új építésű lakás - Budapest III. kerület
| | |||
| Kedvencnek jelölöm | Elküldöm emailben | Megosztás | Szavazás |
| Kedvezményes lakáshitel ajánlatok | |||
| 229 900 000 HUF | |||
Ingatlan adatai
- Eladó vagy kiadó:Eladó
- Település:Budapest III. kerület
- Kategória:Lakás
- Alkategória:Tégla
- Alapterület:130 m2
- Csere is:Nem
- Hirdető:Cég
- Élő videón megtekinthető:Nem
- Szobaszám:4
- Állapot:Új építésű
- Hány szintes az ingatlan:Földszintes
- Komfortosság:nincs megadva
- Kertkapcsolatos:Igen
- Hányadik emeleti:Földszint
- Lift:Nincs
- Parkolási lehetőség:Udvaron
- Fűtés:Hőszivattyús
- Bútorozottság:nincs megadva
- Fényviszony:Napfényes
- Tájolás:DK
- Kilátás:nincs megadva
- Internet:nincs megadva
- Akadálymentesített:nincs megadva
- Energiatanúsítvány:nincs megadva
- Villany:Van
- Víz:Van
- Gáz:nincs megadva
- Csatorna:Van
- Üzenetküldés
- Hívás

Referencia szám: LK084200

Hitel ajánlat
Ingatlan hirdetés leírása
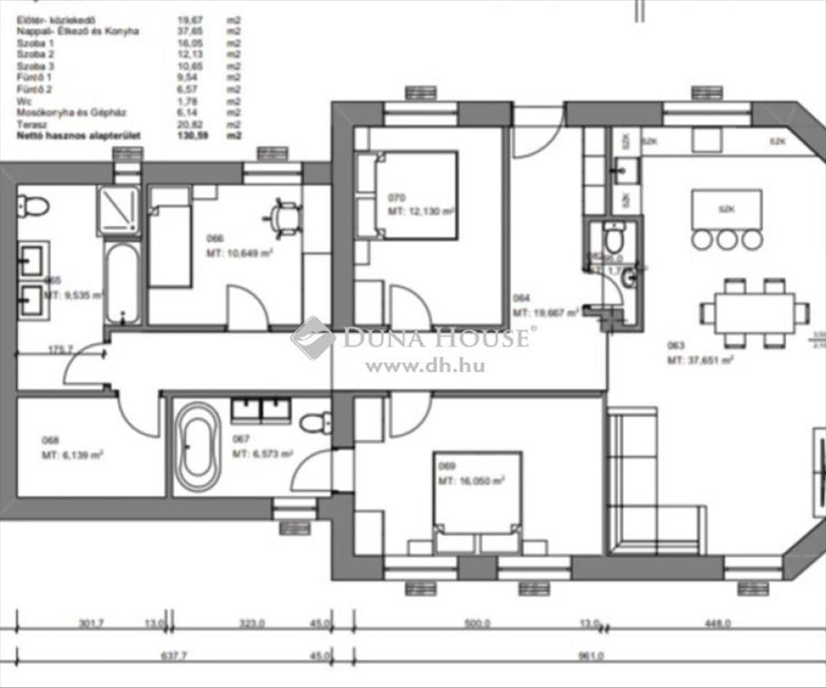
Kertkapcsolatos lakás Csillaghegyen
Budapest 3. kerület Csillaghegyen! Örök panorámás! Új építésű! 4 Lakásos társasházban! Földszinti, 125 m2, es, teraszos, kertkapcsolatos lakás eladó!Az ingatlan az alábbi helyiségekből áll: panorámás nappali + konyha, 3 szoba, előszoba, 2 db fürdő +wc, lépcsőtér, erkély, háztartási helyiség.
Alapterület : 120,18 m2 + 10,41 m2 terasz + 250 m2 saját kert.
Egyedülálló panoráma! Zöldövezet!
A lakás csendes zsákutcában van, de könnyen megközelíthető tömegközlekedéssel is.
Az ingatlanhoz tartozik egy térkövezett kocsibeálló, ami benne van az árban. a 4 lakásos társasház 4 szintes, minden szinten 1 lakás helyezkedik el. Külön bejárata van minden lakásnak, így nincs közös helyiség!
Műszaki tartalom:- 38 cm Porotherm tégla falazat, 10 cm-es grafitos szigeteléssel- Porotherm béléstestes közbendő födém- 3 rétegű üvegezéssel ellátott fehér műanyag nyílászárók- hőszivattyús hűtés-fűtés- térkövezett kocsibeálló- elektromos autótöltő előkészítés, motoros alumínium zsaluzia előkészítés, riasztórendszer előcsövezés, mozgásérzékelő, kaputelefon, kábeltévé és internet előkészítés, stb.
Kulcsrakész átadás: 2025. Február
Ingatlan eladásban és vételben is állok rendelkezésére.
Díjmentes hitel és pénzügyi tanácsadás.
Https://butykay-orsolya.Dh.hu/
Referencia szám: lk084200 Hitel.hu - Hasonlítsa össze a bankok lakáshitel ajánlatait

