- >>
- eladó ingatlanok
- >>
- eladó lakás
- >>
- eladó lakás Budapest III. kerület
- >>
Eladó új építésű lakás - Budapest III. kerület
| | |||
| Kedvencnek jelölöm | Elküldöm emailben | Megosztás | Szavazás |
| Kedvezményes lakáshitel ajánlatok | |||
| 419 000 000 HUF | |||
Ingatlan adatai
- Eladó vagy kiadó:Eladó
- Település:Budapest III. kerület
- Kategória:Lakás
- Alkategória:Tégla
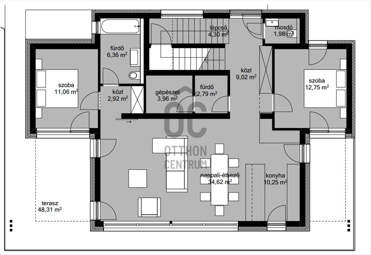
- Alapterület:158 m2
- Csere is:Nem
- Hirdető:Cég
- Élő videón megtekinthető:Nem
- Szobaszám:5
- Állapot:Új építésű
- Hány szintes az ingatlan:nincs megadva
- Komfortosság:nincs megadva
- Hányadik emeleti:1
- Erkély:Van
- Parkolási lehetőség:nincs megadva
- Fűtés:nincs megadva
- Bútorozottság:nincs megadva
- Fényviszony:nincs megadva
- Tájolás:K
- Kilátás:Utcai
- Internet:nincs megadva
- Akadálymentesített:nincs megadva
- Energiatanúsítvány:nincs megadva
- Villany:Van
- Víz:Van
- Gáz:Utcában
- Csatorna:Van
- Üzenetküldés
- Hívás


Ingatlan hirdetés leírása
Projekt bemutatása
Kortárs építészet, családbarát környezetbe...
Projekt bemutatásaKortárs építészet, családbarát környezetben, azonnal költözhetően. Üdv itthon!
RÖVID ÖSSZEFOGLALÓ
A III. kerület Táborhegyhez tartozó, zöldövezeti részén, egy eldugott, forgalomtól mentes mellékutcában épült meg az ér Garden Homes.
A projektben két modern, letisztult vonalvezetésű épület kapott helyet, összesen négy tágas, családi otthonnal.
A házakat önálló hőszivattyús fűtés- és hűtésrendszer, padló- és mennyezeti hőleadás, valamint Loxone épületautomatizálás teszi korszerűvé.
A kertek automata öntözőrendszerrel és robotfűnyíróval felszereltek, a teraszok télen-nyáron használhatók, a belső terek pedig minőségi beépített bútorokkal és gépesített konyhával készültek.
A projekt elkészült, így az új tulajdonosokat valóban csak a beköltözés öröme várja.
LOKÁCIÓ
Az ér Garden Homes a III. kerületben, Táborhegy és Testvérhegy határán, az Ér utcában található – egy forgalomtól mentes, nyugodt mellékutcában, ahol a kertvárosi hangulat és a városi infrastruktúra ideális arányban van jelen.
Közlekedés és elérhetőség
Az ingatlan autóval és tömegközlekedéssel is kiválóan megközelíthető.
A Bécsi út és a Vörösvári út néhány percre található, így a belváros, a Szentendrei út vagy az M0-s körgyűrű is gyorsan elérhető.
A 137-es, 237-es és 260-as buszjáratok néhány perc sétával elérhetők, a H5-ös hév pedig Csillaghegy és Békásmegyer irányából biztosít közvetlen kapcsolatot a belvárossal.
SZOLGÁLTATÁSOK és INFRASTRUKTÚRA:
A mindennapi élethez szükséges minden megtalálható a közelben:
bevásárlási lehetőségek (GoBuda, Stop Shop, Aldi, Lidl),
valamint gyógyszertár, posta, pékség, helyi kisboltok is percek alatt elérhetők.
A környék iskolái és óvodái kimondottan népszerűek a családosok körében — többek között a Medgyessy Ferenc Általános Iskola, a Zöld Óvoda, valamint a Táborhegyi Népház programjai is vonzzák a környékbelieket.
ÉLETMÓD és HANGULAT:
Táborhegyet a zöld, levegős utcák, a nyugalom, és a barátságos közösség jellemzik.
A környék lakói szeretik, hogy a természet karnyújtásnyira van: a Táborhegyi Park, a Testvérhegyi lejtők és a Római-part is néhány perc alatt elérhetők.
A hétvégék itt gyakran a kertben, a teraszon vagy a Duna-parti kávézókban telnek — ez az a ritka városi helyszín, ahol a városi kényelem és a kertvárosi béke valóban találkozik.
PROJEKT
A projekt két, letisztult vonalvezetésű, modern megjelenésű épületből áll, összesen négy lakással.
A homlokzatot világos tónusok, természetes fa részletek és nagy üvegfelületek jellemzik, melyek a nappali terekbe áramló fényt még hangsúlyosabbá teszik.
A tervezés célja egyértelmű volt: praktikus, élhető és hosszú távon értékálló otthonokat létrehozni.
A házak önálló hőszivattyús rendszert kaptak, a hőleadás padlón és mennyezeten történik, ami egyenletes hőérzetet és alacsony fenntartási költséget biztosít.
A Loxone épületautomatizálás segítségével a világítás, árnyékolás, hőmérséklet, szellőztetés, audió és a biztonsági funkciók is intelligensen vezérelhetők – a modern technológia diszkréten, mégis látványosan szolgálja a kényelmet.
Az ingatlanokhoz opcionálisan vásárolható garázs + tároló ára 10m + 10m Ft/db.
OTTHONOK
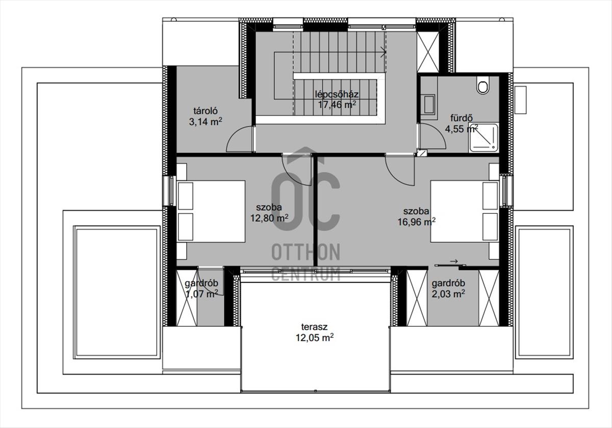
A lakások térszervezése egyszerre logikus és érzékeny.
A nappali terek tágasak, fényben úsznak, a nagy üvegfelületek finoman keretezik a kert látványát.
A fedett teraszok a nappalik természetes folytatásai – az üvegfalak mögött a külső és belső határa szinte eltűnik.
A kertek gondosan füvesítettek, öntözőrendszerrel és robotfűnyíróval felszereltek, így valóban gondtalanul tarthatók.
A konyhák teljesen gépesítettek, az egyedi bútorok és a fa felületek természetes melegséget hoznak a terekbe.
A hálószobák intimek, jól elkülönülnek a közösségi zónáktól, a fürdők modern, mégis időtálló burkolatokkal készültek.
A világítás koncepciója tudatosan épít a fények hangulatkeltő szerepére – estére a terek puha, meghitt tónusba váltanak.
Ha Ön is modern, kis lakóközösségű, zöld környezetben épült otthont keres Óbuda egyik legkedveltebb részén, az ér Garden Homes-ban megtalálta.
Tekintse meg személyesen, és tapasztalja meg, milyen, amikor az új otthon tényleg csak Önre. Hitel.hu - Hasonlítsa össze a bankok lakáshitel ajánlatait


