Eladó jó állapotú lakás - Budapest III. kerület
- INGYENES HIRDETÉS FELADÁS
Ingatlan adatai
- Eladó vagy kiadó:Eladó
- Település:Budapest III. kerület
- Kategória:Lakás
- Alkategória:Tégla
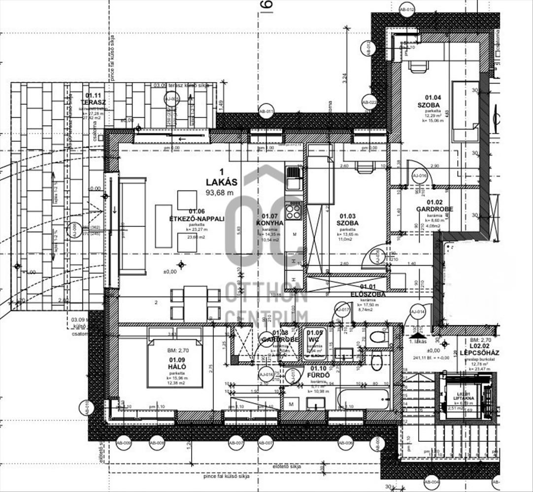
- Alapterület:107 m2
- Csere is:Nem
- Hirdető:Cég
- Élő videón megtekinthető:Nem
- Szobaszám:4
- Állapot:Jó állapotú
- Hány szintes az ingatlan:nincs megadva
- Komfortosság:nincs megadva
- Kertkapcsolatos:Igen
- Hányadik emeleti:nincs megadva
- Erkély:Van
- Lift:Van
- Parkolási lehetőség:nincs megadva
- Fűtés:Megújuló energia
- Bútorozottság:nincs megadva
- Fényviszony:nincs megadva
- Tájolás:ÉK
- Kilátás:Kertre néző
- Internet:nincs megadva
- Klíma:nincs megadva
- Akadálymentesített:nincs megadva
- Energiatanúsítvány:nincs megadva
- Villany:Van
- Víz:Van
- Gáz:Utcában
- Csatorna:Van
- Közös költség:85 000 Ft
- Kapcsolatfelvétel

Hitel ajánlatok
Ingatlan hirdetés leírása
Az egyik legkedveltebb óbudai hegyvidéki övezetben, a presztíz...
Az egyik legkedveltebb óbudai hegyvidéki övezetben, a presztízsértékű Táborhegy területén kínáljuk ezt az elegáns, nappali + 3 hálószobás, privát szférát biztosító kertkapcsolatos lakást.
Táborhegy neve egyet jelent a zöld környezettel, a tiszta levegővel és a családias, nyugodt atmoszférával – mégis minden fontos infrastruktúra könnyen elérhető.
A lakás főbb jellemzői:
- Nappali + 3 külön nyíló hálószoba – ideális elrendezés családoknak vagy otthoni munkavégzéshez
- 27 m²-es terasz – reggeli kávé, esti borozás, teljes kikapcsolódás
- 103 m² saját kert – mérete alapján jakuzzi és grillező kialakítására is tökéletes
- 2021-ben épült, 5 lakásos, igényes, liftes társasház
- Világos, napfényes helyiségek
- Kilátás a zöld kertre, lombhullás után részben a városra
- Beépített szekrények a praktikus tárolásért
- Alumínium nyílászárók
- 7 m²-es saját tároló – az ár tartalmazza
- Tágas teremgarázs-beálló – nagyobb autóval is kényelmes
- Modern, energiatakarékos hőszivattyús fali fűtés-hűtés
Kiváló elhelyezkedés
A szomszédban közért és buszmegálló (137, éjszakai 937). a járatok érintik többek között a Szentlélek tér, Flórián tér, valamint a Vörösvári út környékét, így a belváros és Óbuda központja gyorsan elérhető.
Bevásárlási lehetőségek a közelben: gobuda Mall, Stop Shop Óbuda, Flórián Üzletközpont.
Kinek ideális?
- Pároknak, akik tágas, exkluzív otthont keresnek
- Családoknak, akik kertet és biztonságos környezetet szeretnének
- Azoknak, akik nem akarnak kompromisszumot kötni minőség és lokáció között
Ez nem csupán egy lakás – ez egy életstílus a budai hegyvidék egyik legértékállóbb részén.
Ne várjon, mert az igazán jó otthonok nem maradnak sokáig a piacon. Hívjon most, és csapjon le rá, mielőtt más teszi meg Ön helyett! Hitel.hu - Hasonlítsa össze a bankok lakáshitel ajánlatait
Tetszett ez az eladó Budapest III. kerületi jó állapotú 4 szobás tégla lakás? Hívd fel a hirdetőt most, és tudj meg mindent erről az eladó tégla lakásról! Ha gondolod nézelődj tovább az eladó lakás Budapest III. kerület oldal hirdetései között. Ennek az eladó lakásnak az ára 249990000 Ft és mivel az alapterülete 107 négyzetméter, ezért az átlagos négyzetméterára 2336355 HUF/m2.
Az eladó lakások menüpontban további hirdetések között is böngészhetsz. Az összes eladó budapesti lakás hirdetést tartalmazó oldalon tudsz böngészni. Ha van kedved, akkor böngészhetsz a Keresztesi Lídia összes hirdetése között, vagy akár a/az Otthon Centrum XI. kerület - Gellért tér összes hirdetése között is.

