Eladó új építésű lakás - Budapest III. kerület
- INGYENES HIRDETÉS FELADÁS
Ingatlan adatai
- Eladó vagy kiadó:Eladó
- Település:Budapest III. kerület
- Kategória:Lakás
- Alkategória:Tégla
- Alapterület:82 m2
- Csere is:Nem
- Hirdető:Cég
- Élő videón megtekinthető:Nem
- Szobaszám:3
- Állapot:Új építésű
- Hány szintes az ingatlan:2 szintes
- Komfortosság:nincs megadva
- Kertkapcsolatos:Igen
- Hányadik emeleti:2
- Erkély:nincs megadva
- Lift:Van
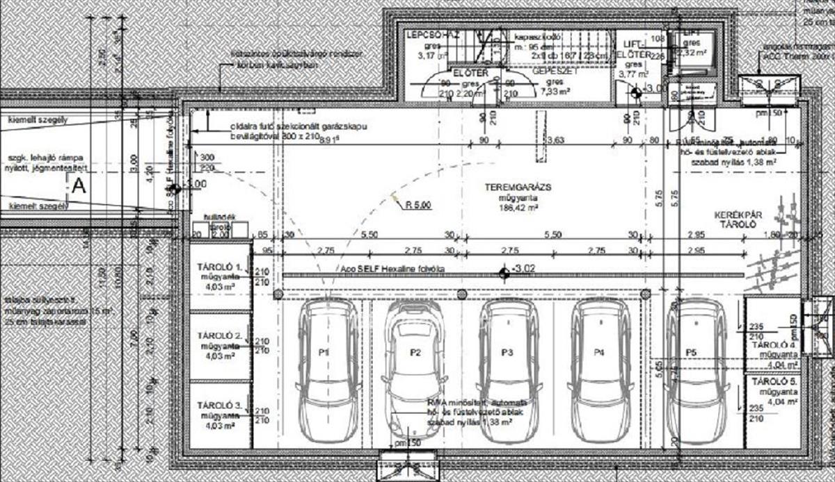
- Parkolási lehetőség:Teremgarázsban
- Fűtés:nincs megadva
- Bútorozottság:nincs megadva
- Fényviszony:nincs megadva
- Tájolás:nincs megadva
- Kilátás:nincs megadva
- Internet:nincs megadva
- Klíma:nincs megadva
- Akadálymentesített:nincs megadva
- Energiatanúsítvány:nincs megadva
- Villany:nincs megadva
- Víz:nincs megadva
- Gáz:nincs megadva
- Csatorna:nincs megadva
- Kapcsolatfelvétel

Heinrich Krisztina
+36-70-442-0921
Mondd meg a hirdetőnek, hogy a megveszLAK-on találtad a hirdetést.
Hitel ajánlatok
Ingatlan hirdetés leírása
3. KERÜLET VILLAPARK PROJEKT AZ OTP INGATLANPONT KÍNÁLATÁBAN, ...
3. kerület villapark projekt az OTP ingatlanpont kínálatában, 5 lakásos épület, nappali+2 hálós lakások FOGLALHATÓK!
A projekt Harsánylejtő egyik utolsó beépíthető telkén valósul meg, öt exkluzív villaépület formájában. a lakópark csendes, forgalomtól elzárt magánúton közelíthető meg, zöldövezeti környezetben, a budai hegyek ölelésében, mégis néhány percre a város pezsgő központjaitól.
A környék infrastruktúrája folyamatosan fejlődik, a közelben iskolák, bevásárlási lehetőségek, sport- és rekreációs központok találhatók
A magas műszaki tartalommal megvalósuló, háromszintes épületek mindössze öt lakásnak adnak otthont. a lakók kényelmét teremgarázs, parkosított kert és igény szerint további felszíni parkolóhelyek biztosítják.
Elérhető lakástípusok:
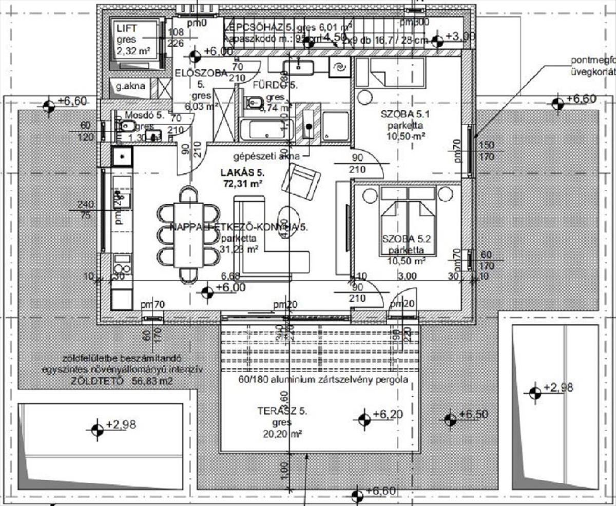
Földszinti, kertkapcsolatos lakások, közel 69 nm nettó alapterülettel, 20 nm-es terasszal és 200 nm-es privát kerttel, 3 szobával rendelkezik.
Emeleti lakások, 68, 60 és 68, 37 nm nettó alapterülettel, 7 nm-es terasszal, 3 szobával rendelkeznek.
Penthouse lakás, 72 nm feletti nettó alapterülettel, közel 20, 32 nm-es terasszal és több mint 50 nm-es tetőkerttel, 3 szobával rendelkezik.
A jelenlegi készültségi szakaszban lehetőség van lakások összenyitására, teljes szint vagy akár egy teljes épület megvásárlására is.
Várható átadás: 2027. I. Negyedév.
Teremgarázs beállók és tárolók opcionálisan vásárolhatók:
- Garázs vételára: 12. 700. 000 Ft/db
- Tároló: 2, 88 nm 3. 556. 000 Ft.
Fizetési ütemezés: 1. És a 3 épületben akár 10%-os önerővel, a többi épületnél is rugalmas fizetési konstrukcióval is elérhető, amennyiben nagyobb önerővel rendelkezik (50-100%) egyéb kedvezményt tudunk biztosítani.
Műszaki tartalom: -Modern, energiatakarékos hőszivattyús rendszer, kedvezményes H-tarifa lehetőséggel
- Mennyezeti hűtés és padlófűtés
- Háromrétegű, alumínium nyílászárók hőszigetelt üvegezéssel, teraszoknál tolóajtós kivitel
- Választható, i. Osztályú olasz burkolatok és szaniterek
- Okosotthon rendszer előkészítés
- kone lift minden épületben
- a felső szinti lakások közvetlen, kulcsos lifthasználattal is megközelíthetők
- Zsaluzia árnyékolás
- Pergolával fedett teraszok az emeleti lakásoknál
- Riasztó- és klímaelőkészítés
- Hörmann garázskapu
- Saját locsolórendszer a kertkapcsolatos lakásoknál
- 15 cm vastag hőszigetelés
- Fedett parkolóhelyek és tárolók a teremgarázsban
- Amennyiben a projekt felkeltette érdeklődését, örömmel biztosítunk személyes konzultációt az értékesítési irodában vagy a helyszínen, ahol részletes tájékoztatást adunk, és segítünk megtalálni az Ön igényeihez leginkább illeszkedő otthont. M323327 Hitel.hu - Hasonlítsa össze a bankok lakáshitel ajánlatait

