Eladó új építésű lakás - Budapest III. kerület
- INGYENES HIRDETÉS FELADÁS
Ingatlan adatai
- Eladó vagy kiadó:Eladó
- Település:Budapest III. kerület
- Kategória:Lakás
- Alkategória:Tégla
- Alapterület:79 m2
- Csere is:Nem
- Hirdető:Cég
- Élő videón megtekinthető:Nem
- Szobaszám:3
- Állapot:Új építésű
- Hány szintes az ingatlan:2 szintes
- Komfortosság:nincs megadva
- Kertkapcsolatos:Igen
- Hányadik emeleti:Földszint
- Erkély:nincs megadva
- Lift:Van
- Parkolási lehetőség:Teremgarázsban
- Fűtés:Elektromos
- Bútorozottság:nincs megadva
- Fényviszony:nincs megadva
- Tájolás:nincs megadva
- Kilátás:nincs megadva
- Internet:nincs megadva
- Klíma:nincs megadva
- Akadálymentesített:nincs megadva
- Energiatanúsítvány:nincs megadva
- Villany:nincs megadva
- Víz:nincs megadva
- Gáz:nincs megadva
- Csatorna:nincs megadva
- Kapcsolatfelvétel

Hitel ajánlatok
Ingatlan hirdetés leírása
3. KERÜLET VILLAPARK PROJEKT AZ OTP INGATLANPONT KÍNÁLATÁBAN, ...
3. kerület villapark projekt az OTP ingatlanpont kínálatában, 5 lakásos épület, nappali+2 hálós lakások FOGLALHATÓK!
A projekt Harsánylejtő egyik utolsó beépíthető telkén valósul meg, öt exkluzív villaépület formájában. a lakópark csendes, forgalomtól elzárt magánúton közelíthető meg, zöldövezeti környezetben, a budai hegyek ölelésében, mégis néhány percre a város pezsgő központjaitól.
A környék infrastruktúrája folyamatosan fejlődik, a közelben iskolák, bevásárlási lehetőségek, sport- és rekreációs központok találhatók
A magas műszaki tartalommal megvalósuló, háromszintes épületek mindössze öt lakásnak adnak otthont. a lakók kényelmét teremgarázs, parkosított kert és igény szerint további felszíni parkolóhelyek biztosítják.
Elérhető lakástípusok:
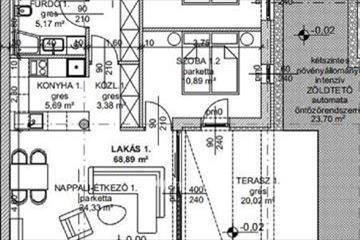
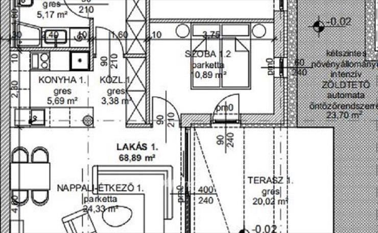
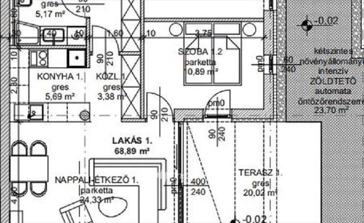
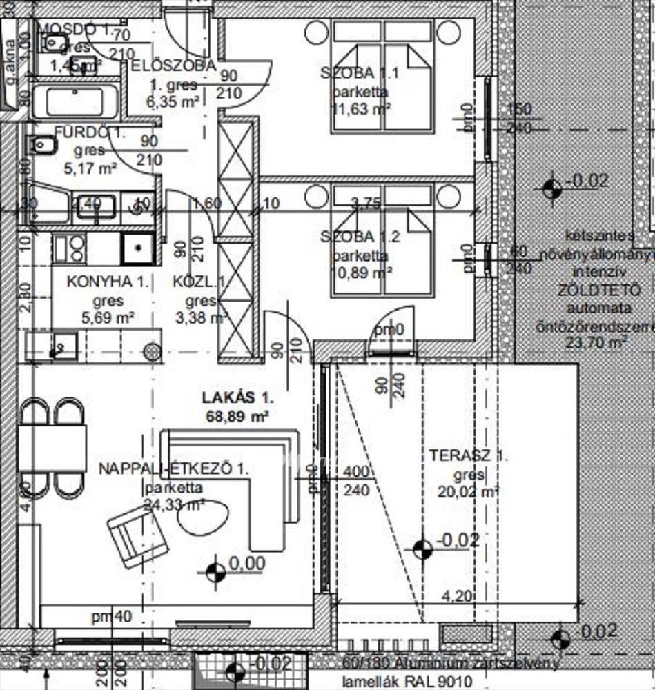
Földszinti, kertkapcsolatos lakások, közel 69 nm nettó alapterülettel, 20 nm -es terasszal és 200 nm -es privát kerttel, 3 szobával rendelkezik.
Emeleti lakások, 68, 60 és 68, 37 nm nettó alapterülettel, 7 nm -es terasszal, 3 szobával rendelkeznek.
Penthouse lakás, 72 nm feletti nettó alapterülettel, közel 20, 32 nm -es terasszal és több mint 50 nm -es tetőkerttel, 3 szobával rendelkezik.
Van lehetőség a lakások egybenyitására is, vagy akár a teljes ház megvételével egy magán rezidencia kialakítására igény szerint.
A jelenlegi készültségi szakaszban lehetőség van lakások összenyitására, teljes szint vagy akár egy teljes épület megvásárlására is.
Várható átadás: 2027. I. Negyedév.
Teremgarázs beállók és tárolók opcionálisan vásárolhatók:
- Garázs vételára: 12. 700. 000 Ft/db
- Tároló: 2, 88 nm 3. 556. 000 Ft.
Fizetési ütemezés: 1. És a 3 épületben akár 10%-os önerővel, a többi épületnél is rugalmas fizetési konstrukcióval is elérhető, amennyiben nagyobb önerővel rendelkezik (50-100%) egyéb kedvezményt tudunk biztosítani.
Műszaki tartalom: -Modern, energiatakarékos hőszivattyús rendszer, kedvezményes H-tarifa lehetőséggel
- Mennyezeti hűtés és padlófűtés
- Háromrétegű, alumínium nyílászárók hőszigetelt üvegezéssel, teraszoknál tolóajtós kivitel
- Választható, i. Osztályú olasz burkolatok és szaniterek
- Okosotthon rendszer előkészítés
- kone lift minden épületben
- a felső szinti lakások közvetlen, kulcsos lifthasználattal is megközelíthetők
- Zsaluzia árnyékolás
- Pergolával fedett teraszok az emeleti lakásoknál
- Riasztó- és klímaelőkészítés
- Hörmann garázskapu
- Saját locsolórendszer a kertkapcsolatos lakásoknál
- 15 cm vastag hőszigetelés
- Fedett parkolóhelyek és tárolók a teremgarázsban
- Amennyiben a projekt felkeltette érdeklődését, örömmel biztosítunk személyes konzultációt az értékesítési irodában vagy a helyszínen, ahol részletes tájékoztatást adunk, és segítünk megtalálni az Ön igényeihez leginkább illeszkedő otthont. M322721 Hitel.hu - Hasonlítsa össze a bankok lakáshitel ajánlatait
Tetszett ez az eladó Budapest III. kerületi új építésű 3 szobás tégla lakás? Hívd fel a hirdetőt most, és tudj meg mindent erről az eladó tégla lakásról! Ha gondolod nézelődj tovább az eladó lakás Budapest III. kerület oldal hirdetései között. Ennek az eladó lakásnak az ára 175699254 Ft és mivel az alapterülete 79 négyzetméter, ezért az átlagos négyzetméterára 2224041 HUF/m2.
Az eladó lakások menüpontban további hirdetések között is böngészhetsz. Az összes eladó budapesti lakás hirdetést tartalmazó oldalon tudsz böngészni. Ha van kedved, akkor böngészhetsz a Heinrich Krisztina összes hirdetése között, vagy akár a/az Budapest XIII. kerület Victor Hugo utca 41 - OTP Ingatlanpont Iroda összes hirdetése között is.

