Eladó új építésű lakás - Budapest III. kerület
- INGYENES HIRDETÉS FELADÁS
Ingatlan adatai
- Eladó vagy kiadó:Eladó
- Település:Budapest III. kerület
- Kategória:Lakás
- Alkategória:Tégla
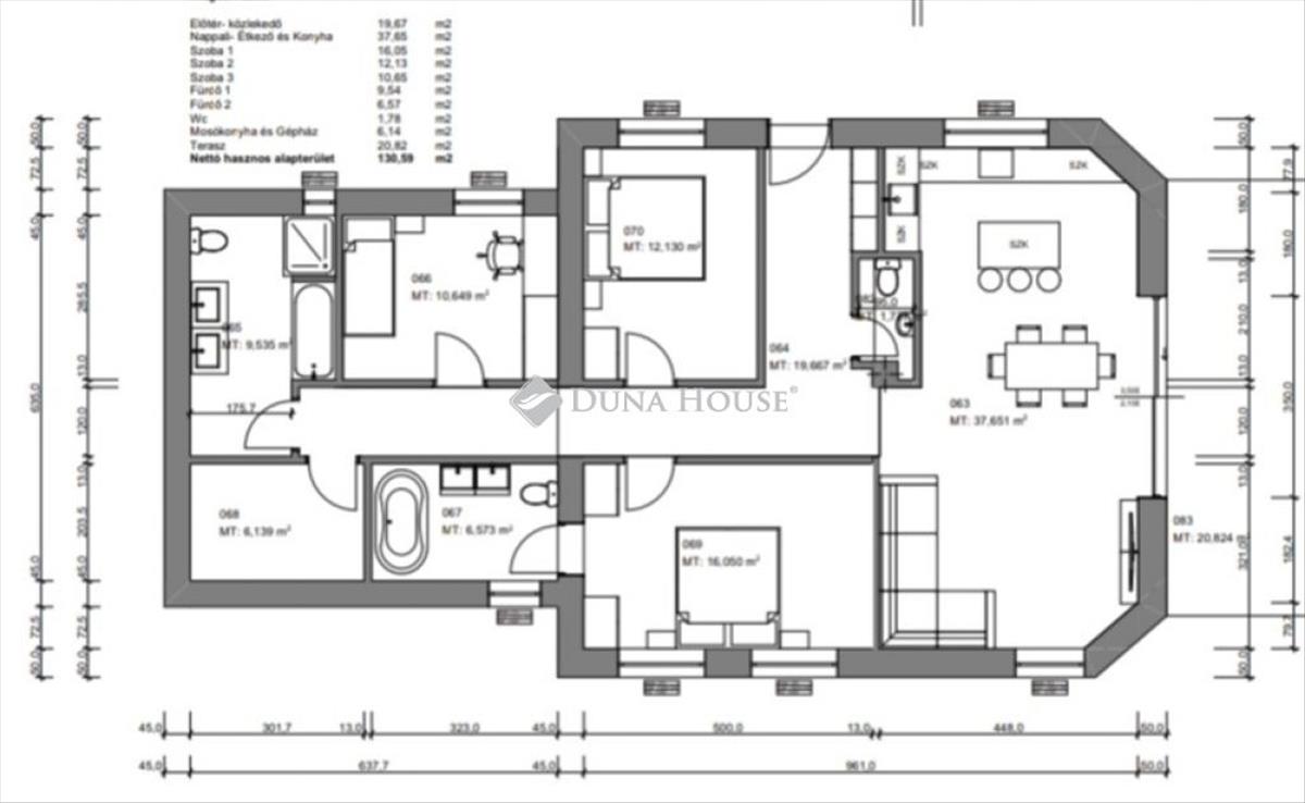
- Alapterület:130 m2
- Csere is:Nem
- Hirdető:Cég
- Élő videón megtekinthető:Nem
- Szobaszám:4
- Állapot:Új építésű
- Hány szintes az ingatlan:Földszintes
- Komfortosság:nincs megadva
- Kertkapcsolatos:Igen
- Hányadik emeleti:Szuterén
- Erkély:nincs megadva
- Lift:Nincs
- Parkolási lehetőség:nincs megadva
- Fűtés:Hőszivattyús
- Bútorozottság:nincs megadva
- Fényviszony:Napfényes
- Tájolás:DK
- Kilátás:nincs megadva
- Internet:nincs megadva
- Klíma:nincs megadva
- Akadálymentesített:nincs megadva
- Energiatanúsítvány:nincs megadva
- Villany:Van
- Víz:Van
- Gáz:nincs megadva
- Csatorna:Van
- Kapcsolatfelvétel

Jánosi Krisztina
+36-(20)-340-8451
Mondd meg a hirdetőnek, hogy a megveszLAK-on találtad a hirdetést.
Referencia szám: LK084200
Ingatlan hirdetés leírása
Eladó lakás, Budapest 3. ker.
Budapest 3. kerület Csillaghegyen! Örök panorámás! Új építésű! 4 Lakásos társasházban! Földszinti, 125 m2, es, teraszos, kertkapcsolatos lakás ELADÓ! Az ingatlan az alábbi helyiségekből áll: panorámás nappali + konyha, 3 szoba, előszoba, 2 db fürdő +wc, lépcsőtér, erkély, háztartási helyiség. Alapterület : 120, 18 m2 + 10, 41 m2 terasz + 250 m2 saját kert. Egyedülálló panoráma! Zöldövezet! a lakás csendes zsákutcában van, de könnyen megközelíthető tömegközlekedéssel is. Az ingatlanhoz tartozik egy térkövezett kocsibeálló, ami benne van az árban. a 4 lakásos társasház 4 szintes, minden szinten 1 lakás helyezkedik el. Külön bejárata van minden lakásnak, így nincs közös helyiség! Műszaki tartalom:- 38 cm Porotherm tégla falazat, 10 cm-es grafitos szigeteléssel- Porotherm béléstestes közbendő födém- 3 rétegű üvegezéssel ellátott fehér műanyag nyílászárók- hőszivattyús hűtés-fűtés- térkövezett kocsibeálló- elektromos autótöltő előkészítés, motoros alumínium zsaluzia előkészítés, riasztórendszer előcsövezés, mozgásérzékelő, kaputelefon, kábeltévé és internet előkészítés, stb. Kulcsrakész átadás: 2025. Március Hitel.hu - Hasonlítsa össze a bankok lakáshitel ajánlatait


