Eladó felújítandó lakás - Budapest III. kerület
- INGYENES HIRDETÉS FELADÁS
Ingatlan adatai
- Feladva:60 napja a megveszLAK-on
- Eladó vagy kiadó:Eladó
- Település:Budapest III. kerület
- Kategória:Lakás
- Alkategória:Tégla
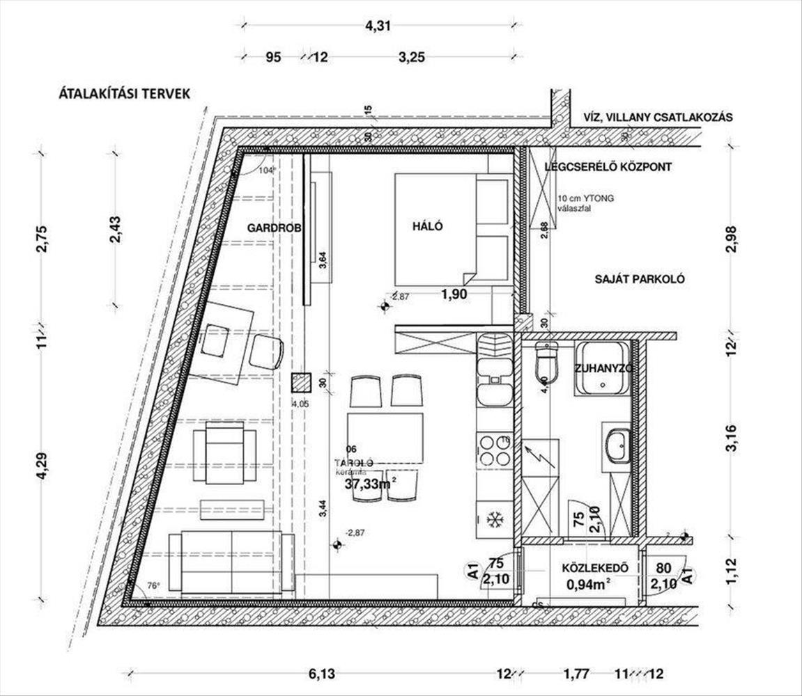
- Alapterület:47 m2
- Csere is:Nem
- Hirdető:Cég
- Élő videón megtekinthető:Nem
- Szobaszám:1
- Állapot:Felújítandó
- Hány szintes az ingatlan:Földszintes
- Komfortosság:nincs megadva
- Hányadik emeleti:Szuterén
- Erkély:nincs megadva
- Lift:Nincs
- Parkolási lehetőség:Teremgarázsban
- Fűtés:Egyéb
- Bútorozottság:nincs megadva
- Fényviszony:Közepes
- Tájolás:nincs megadva
- Kilátás:nincs megadva
- Internet:nincs megadva
- Klíma:nincs megadva
- Akadálymentesített:nincs megadva
- Energiatanúsítvány:nincs megadva
- Villany:Van
- Víz:Van
- Gáz:nincs megadva
- Csatorna:Van
- Közös költség:1 Ft
- Kapcsolatfelvétel

Takács Zsuzsanna
+36-(30)-495-3819
Mondd meg a hirdetőnek, hogy a megveszLAK-on találtad a hirdetést.
Referencia szám: M324610
Hitel ajánlatok
Ingatlan hirdetés leírása
Eladó Lakás, Budapest 3. ker.
Eladó ingatlan - csillaghegy - III. kerület - közel a DUNÁHOZ!
Budapest III. kerület, Csillaghegy részén ajánlom figyelmébe ezt a 2020-ban épült társasház alagsori részén található, 47 nm -es, jelenleg tárolóként funkcionáló ingatlant és a hozzá kapcsolódó (külön hrsz) 17 nm -es gépkocsitárolót. Hasznosítását tekintve, remek választás műteremnek, irodának, masszázsszalonnak, tárolónak. Az ingatlan irányára 23, 625m huf + áfa. Igény esetén van lehetőség a teljes műszaki kivitelezésre, amihez a tervek rendelkezésre állnak.
Az ingatlan jelenlegi állapota befejezetlen, felújítandó.
23, 625 Millió huf + áfa = bruttó 30m: 47 nm alagsori ingatlan + 17 nm mélygarázs.
ELŐNYÖK: jó lakóközösség, kiváló közlekedés, a teljes vételár kifizetése után azonnal birtokba vehető, rendezett tulajdoni lap, a Dunától elérhető távolságban helyezkedik el, teremgarázs parkolóhely a vételárban, cég az eladó, céges finanszírozás elérhető.
LOKÁCIÓ: Az ingatlan Budapest III. kerületben, Csillaghegy családi házas részén található, pár száz méterre a Dunától. a társasházban 4 lakás található, illetve mélygarázzsal is rendelkezik. Az ingatlant határoló utcák rendezettek, több játszótér és sportpálya található a közelben. a buszmegállók minimális távolságra vannak, ezután pedig a belváros, illetve a közelben található több bolt, orvosi rendelő, iskola, óvoda, tehát a lakás infrastrukturális adottságai kiválóak.
Amennyiben érdekli az ingatlan és szívesen megnézné, akkor hívjon bizalommal.
M324610
Az OTP Ingatlanpont, mint egyetlen közvetlen banki hátterű ingatlanközvetítő társaság teljes körű ügyintézéssel áll az eladók és a vevők rendelkezésére! a kínálatunkból választott ingatlan finanszírozásához minősített fogyasztóbarát, piaci és kedvezményes hitel- és lízingkonstrukciókat kínálunk (lakásvásárlási hitel, CSOK plusz, szabad felhasználású hitel, babaváró hitel, céges hitelek, pályázatok, amennyiben az ügyfél és az ingatlan megfelel a feltételeknek). Az adásvételi szerződés megkötéséhez igény szerint megbízható ügyvédi közreműködést biztosítunk, és segítséget nyújtunk az adásvételhez kapcsolódó egyéb ügyek intézéséhez.
Ha az új ingatlana megvásárlásához a jelenlegi ingatlanát el kell adnia, abban is szívesen segítünk.
Referencia szám: m324610-ml FIX 3% lakáshitelre megvehető
Tetszett ez az eladó Budapest III. kerületi felújítandó 1 szobás tégla lakás? Hívd fel a hirdetőt most, és tudj meg mindent erről az eladó tégla lakásról! Ha gondolod nézelődj tovább az eladó lakás Budapest III. kerület oldal hirdetései között. Ennek az eladó lakásnak az ára 23625000 Ft és mivel az alapterülete 47 négyzetméter, ezért az átlagos négyzetméterára 502660 HUF/m2.
Az eladó lakások menüpontban további hirdetések között is böngészhetsz. Az összes eladó budapesti lakás hirdetést tartalmazó oldalon tudsz böngészni. Ha van kedved, akkor böngészhetsz a Takács Zsuzsanna összes hirdetése között, vagy akár a/az OTPip Budapest XIII. kerület Lehel utca 50 - OTP Ingatlanpont Iroda összes hirdetése között is.

