Eladó jó állapotú lakás Budapest IX. kerület
| Kedvencbe | Megosztás | Árfigyelő |
| FIX 3% lakáshitelre megvehető | ||
| 97 900 000 HUF | ||
Ingatlan adatai
- Eladó vagy kiadó:Eladó
- Település:Budapest IX. kerület
- Kategória:Lakás
- Alkategória:Tégla
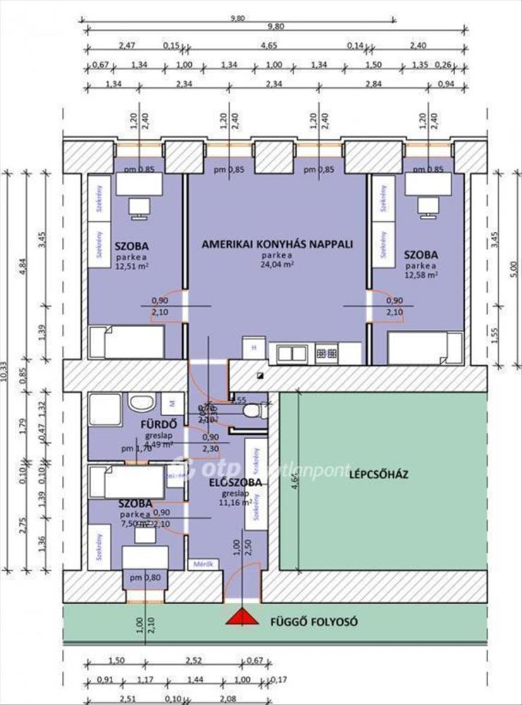
- Alapterület:69 m2
- Csere is:Nem
- Hirdető:Cég
- Élő videón megtekinthető:Nem
- Szobaszám:3 + 1 fél
- Állapot:Jó állapotú
- Hány szintes az ingatlan:Földszintes
- Komfortosság:nincs megadva
- Hányadik emeleti:1
- Lift:Nincs
- Parkolási lehetőség:nincs megadva
- Fűtés:Gáz (cirko)
- Bútorozottság:nincs megadva
- Fényviszony:Napfényes
- Tájolás:ÉNY
- Kilátás:nincs megadva
- Internet:nincs megadva
- Akadálymentesített:nincs megadva
- Energiatanúsítvány:nincs megadva
- Villany:Van
- Víz:Van
- Gáz:nincs megadva
- Csatorna:Van
- Közös költség:15 000 Ft
- Üzenetküldés
- Hívás

Referencia szám: M313394

Hitel ajánlat
Ingatlan hirdetés leírása
Eladó Lakás, Budapest 9. ker.
Eladó polgári lakás a Kálvin tér közelében, elegancia, tágas terek, kiváló befektetés!Budapest belvárosában, a Kálvin tér közvetlen közelében kínálunk megvételre egy 72 m²-es, téglaépítésű, polgári stílusú lakást, amely a múlt század hangulatát ötvözi a modern kényelemmel. a 4, 5 méteres belmagasságának köszönhetően a terek rendkívül tágasak és világosak, a lakás pedig három teljes szobával és egy félszobával rendelkezik, így akár családok, akár befektetők számára is ideális választás lehet.
Az ingatlan gáz-cirkó fűtésű, belső és külső állapota egyaránt jó, azonnal költözhető. a lakás teljesen bútorozott és ízlésesen berendezett, így új tulajdonosának semmilyen további ráfordítást nem igényel. Külön előnyt jelent, hogy jelenleg megbízható bérlők lakják, akik szívesen maradnának a jövőben is, így az ingatlan akár az első naptól biztos és folyamatos hozamot jelenthet befektetője számára.
A társasház rendezett, zárt lépcsőházas, lakóközössége igényes és csendes. a közös költség mindössze 15. 000 Ft havonta. a parkolás közterületen, fizetős övezetben lehetséges.
A környék infrastruktúrája és közlekedése kiemelkedő: a Kálvin tér, az M3-as és M4-es metró, valamint számos villamos- és buszjárat pár perc sétával elérhető, így a város bármely pontja gyorsan megközelíthető. a közvetlen környezetben kávézók, éttermek, kulturális intézmények és bevásárlási lehetőségek sora található, ami még vonzóbbá teszi ezt az elhelyezkedést.
Ez a lakás igazi ritkaság a belvárosi piacon, elegáns, világos, nagy belmagasságú otthon, amely egyaránt tökéletes választás lehet saját részre vagy hosszú távú, stabil befektetésként.
Amennyiben felkeltette érdeklődését, keressen bizalommal, akár hétvégén is! FIX 3% lakáshitelre megvehető

