Eladó új építésű lakás - Budapest IX. kerület
- INGYENES HIRDETÉS FELADÁS
Ingatlan adatai
- Eladó vagy kiadó:Eladó
- Település:Budapest IX. kerület
- Kategória:Lakás
- Alkategória:Tégla
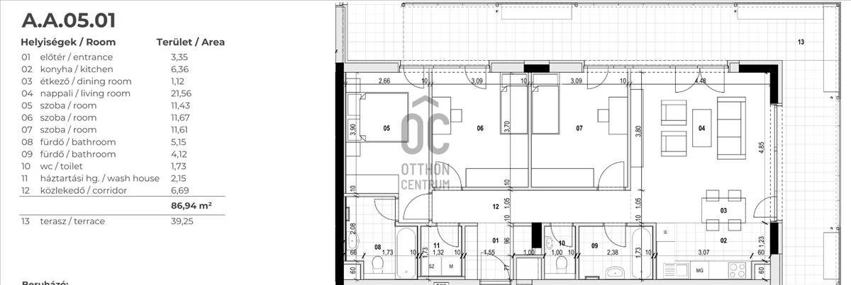
- Alapterület:105 m2
- Csere is:Nem
- Hirdető:Cég
- Élő videón megtekinthető:Nem
- Szobaszám:4
- Állapot:Új építésű
- Hány szintes az ingatlan:nincs megadva
- Komfortosság:nincs megadva
- Hányadik emeleti:5
- Erkély:Van
- Lift:Van
- Parkolási lehetőség:nincs megadva
- Fűtés:nincs megadva
- Bútorozottság:nincs megadva
- Fényviszony:nincs megadva
- Tájolás:DNY
- Kilátás:Kertre néző
- Internet:nincs megadva
- Klíma:nincs megadva
- Akadálymentesített:nincs megadva
- Energiatanúsítvány:nincs megadva
- Villany:Van
- Víz:Van
- Gáz:Nincs
- Csatorna:Van
- Kapcsolatfelvétel

Hitel ajánlatok
Ingatlan hirdetés leírása
AZONNAL KÖLTÖZHETŐ | ZÖLD KERTRE NÉZ Budapest IX. kerületében...
Azonnal költözhető | zöld kertre NÉZ
Budapest IX. kerületében, a Metrodom Green lakóparkban eladó egy kiváló elosztású, nappali + 3 hálószobás, sarokteraszos otthon, amely csendes, zöld belső kertre néz, délnyugati tájolású, világos és élhető.
Főbb jellemzők:
- nappali + 3 külön nyíló hálószoba
- 2 fürdőszoba
- külön háztartási helyiség
- sarokterasz
- azonnal költözhető
- kiváló alaprajz, jól szeparált privát terek
PROJEKT – zöld oázis a belváros KÖZELÉBEN
Egy modern, már átadott, prémium lakópark, ahol a városi élet kényelme és a természet közelsége találkozik. a gazdag növényzettel kialakított belső kert, a zöld homlokzatok és a közösségi terek valódi nyugalmat adnak – miközben a belváros percek alatt elérhető.
Elérhető rozsdaövezeti kedvezmény:
- 5% áfa visszaigényelhető*
- 10% foglaló – 90% fizetés 15–45 napon belül
- ügyvédi díj a vételárban
ÉPÜLET és SZOLGÁLTATÁSOK
- a modern, prémium kategóriás épület 513 lakásos, környezetbarát megoldásokkal felszerelt lakópark.
A lakók kényelmét szolgálja:
- zöld homlokzatok, tetőkertek, díszmedence
- kávézó, fitneszterem, szauna
- közösségi konyha, grill- és tetőterasz
- smart app és okosotthon megoldások
- elektromos alumínium redőnyök (a vételár része)
-24 órás portaszolgálat, csomagpont
- zárt, biztonságos lakókörnyezet
- Energiatakarékos rendszerek, napelemek és korszerű gépészet gondoskodnak az alacsony rezsiről.
5 Ok, amiért jó VÁLASZTÁS
✔ belváros közeli elhelyezkedés, kiváló közlekedés
✔ zöld, nyugodt környezet – valódi városi oázis
✔ prémium szolgáltatások egy helyen
✔ alacsony fenntartási költségek
✔ azonnal költözhető, bútorozott állapot
FEJLESZTŐI háttér – biztonságos VÁLASZTÁS
- fix ár, nincs utólagos emelés
- saját kivitelezés
- prémium minőségű anyaghasználat
- teljes körű jótállás
- kedvező, rövid fizetési ütemezés
KÖZLEKEDÉS
- 1-es villamos a közelben
- 2-es villamos a Duna-parton
- 24-es villamos – Keleti pályaudvarig
- éjszakai járatok (901, 908)
- GreenGo, mol Bubi, mikromobilitási pont
- fedett kerékpártároló, elektromos autótöltők
El tudod magad itt képzelni? Akkor ez a különleges lakópark épp Rád vár! Várom hívásod!
* Rozsdaövezeti kedvezmény: magyar magánszemélyek a tulajdonjog bejegyzését követően a vételár 5% ÁFÁ-ját visszaigényelhetik. Hitel.hu - Hasonlítsa össze a bankok lakáshitel ajánlatait
Tetszett ez az eladó Budapest IX. kerületi új építésű 4 szobás tégla lakás? Hívd fel a hirdetőt most, és tudj meg mindent erről az eladó tégla lakásról! Ha gondolod nézelődj tovább az eladó lakás Budapest IX. kerület oldal hirdetései között. Ennek az eladó lakásnak az ára 185325000 Ft és mivel az alapterülete 105 négyzetméter, ezért az átlagos négyzetméterára 1765000 HUF/m2.
Az eladó lakások menüpontban további hirdetések között is böngészhetsz. Az összes eladó budapesti lakás hirdetést tartalmazó oldalon tudsz böngészni. Ha van kedved, akkor böngészhetsz a Polereczki Szilvia összes hirdetése között, vagy akár a/az Otthon Centrum II. kerület - TDG összes hirdetése között is.

