Eladó jó állapotú lakás Budapest IX. kerület
| Kedvencbe | Megosztás | Árfigyelő |
| FIX 3% lakáshitelre megvehető | ||
| 97 900 000 HUF | ||
Ingatlan adatai
- Eladó vagy kiadó:Eladó
- Település:Budapest IX. kerület
- Kategória:Lakás
- Alkategória:Tégla
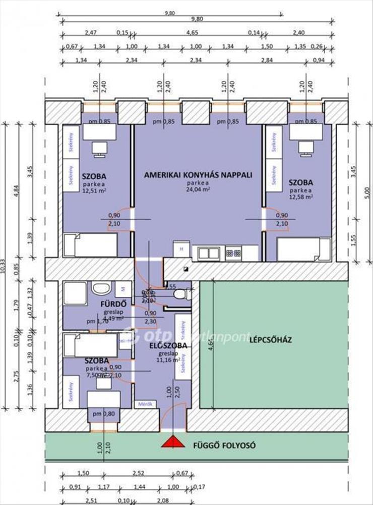
- Alapterület:69 m2
- Csere is:Nem
- Hirdető:Cég
- Élő videón megtekinthető:Nem
- Szobaszám:3 + 1 fél
- Állapot:Jó állapotú
- Hány szintes az ingatlan:Földszintes
- Komfortosság:nincs megadva
- Hányadik emeleti:1
- Lift:Nincs
- Parkolási lehetőség:Utcán
- Fűtés:Gáz (cirko)
- Bútorozottság:Bútorozott
- Fényviszony:Napfényes
- Tájolás:ÉNY
- Kilátás:nincs megadva
- Internet:nincs megadva
- Akadálymentesített:nincs megadva
- Energiatanúsítvány:nincs megadva
- Villany:Van
- Víz:Van
- Gáz:nincs megadva
- Csatorna:Van
- Közös költség:15 000 Ft
- Üzenetküldés
- Hívás

Kiss Ildikó Mária
Mondd meg a hirdetőnek, hogy a megveszLAK-on találtad a hirdetést.
Referencia szám: M313394

Hitel ajánlat
Ingatlan hirdetés leírása
Eladó Lakás, Budapest 9. ker.
***Ix. kerület, a kálvin tér közelében - 3 szoba, polgári hangulat, tágas terek! ***Budapest szívében, a kálvin tér közvetlen közelében eladó egy 72 nm-es, téglaépítésű, polgári lakás, amely a múlt század eleganciáját ötvözi a modern kényelmi megoldásokkal.
A lakás 3 egész szobával és 1 félszobával rendelkezik, a 4, 5 méteres belmagasságnak köszönhetően rendkívül tágas és világos tereket biztosít.
A lakás duplakomfortos, gáz-cirkó fűtéssel felszerelt, belső és külső állapota is jó, így azonnal költözhető.
Az ingatlan teljesen búorozott és berendezett.
Nagy előny: jelenleg is megbízható bérlők lakják, akik szívesen maradnának, amennyiben új tulajdonosa befektetési célból vásárolja meg a lakást.
Ez biztos, azonnali és folyamatos hozamot jelenthet a leendő befektető számára.
A társasház rendezett, zárt lépcsőházzal rendelkezik, a közös költség mindössze 15. 000 Ft.
Parkolás közterületen, fizetős zónában lehetséges.
Főbb jellemzők:
-72 nm-es téglaépítésű lakás
-3 szoba + 1 félszoba
-4, 5 nm-es belmagasság, polgári hangulat
-Duplakomfort, gáz-cirkó fűtés
-Bútorozott, azonnal költözhető
-Jó állapotban, rendezett társasház
-Stabil, bent lakó bérlők, biztos hozam befektetőknek
-Kiváló közlekedés, Kálvin tér pár perc sétára
Ez a lakás igazi ritkaság a belvárosban: tágas, napfényes, polári stílusú otthon, amely befektetőknek és saját célra vásárlóknak egyaránt ideális választás.
Ha ingatlan vásárlásával egy értékálló befektetést is szeretne egyben, akkor ez egy remek lehetőség az ön számára.
Az ingatlan finanszírozásához az OTP Bank vevőinket ingyenes banki tanácsadással, valamint kedvezményes hitelkonstrukció kiválasztásával támogatja, legyen az CSOK Plusz, babaváró, 3%-os otthon Start hitel.
Az adásvételi szerződés megkötéséhez igény esetén megbízható ügyvédi közreműködést biztosítunk és segítséget nyújtunk az adásvételhez kapcsolódó ügyek intézéséhez.
Ha felkeltette érdeklődését az ingatlan, kérem, hívjon bizalommal akar hétvégén is!
#9Kerulet #polgari #kalvinter FIX 3% lakáshitelre megvehető

