Eladó jó állapotú lakás Budapest V. kerület
| Kedvencbe | Megosztás | Árfigyelő |
| Kedvezményes lakáshitel ajánlatok | ||
| 124 900 000 HUF | ||
Ingatlan adatai
- Eladó vagy kiadó:Eladó
- Település:Budapest V. kerület
- Kategória:Lakás
- Alkategória:Tégla
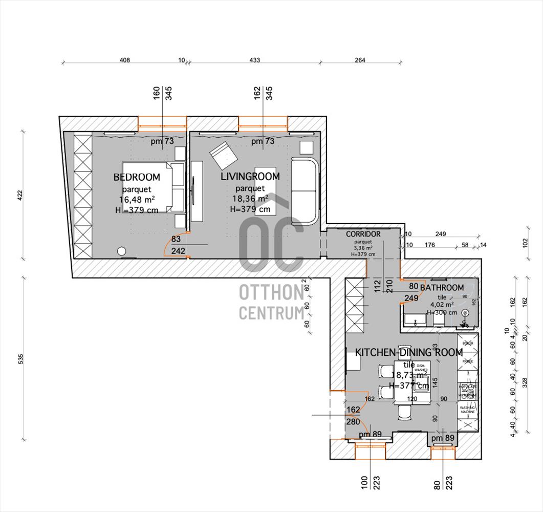
- Alapterület:61 m2
- Csere is:Nem
- Hirdető:Cég
- Élő videón megtekinthető:Nem
- Szobaszám:2
- Állapot:Jó állapotú
- Hány szintes az ingatlan:nincs megadva
- Komfortosság:nincs megadva
- Hányadik emeleti:nincs megadva
- Parkolási lehetőség:nincs megadva
- Fűtés:Gáz (cirko)
- Bútorozottság:nincs megadva
- Fényviszony:nincs megadva
- Tájolás:K
- Kilátás:Utcai
- Internet:nincs megadva
- Akadálymentesített:nincs megadva
- Energiatanúsítvány:nincs megadva
- Villany:Van
- Víz:Van
- Gáz:Van
- Csatorna:Van
- Közös költség:32 Ft
- Üzenetküldés
- Hívás

Simon Vivien Anna
Mondd meg a hirdetőnek, hogy a megveszLAK-on találtad a hirdetést.

Hitel ajánlat
Ingatlan hirdetés leírása
Budapest V. kerületének Dél-Belváros részében, a Váci utcában,...
Budapest v. kerületének Dél-Belváros részében, a Váci utcában, 1920-ban épült, lift nélküli, jó állapotú ház 1. emeletén, 61 m² alapterületű, utcára néző, külön konyha-étkezős, 1 hálószobás, nappalis, 1 fürdőszobás, világos, jó lakás eladó.LAKÁS
Ez a 61 m²-es, első emeleti nagypolgári lakás tökéletes választás mindazoknak, akik a klasszikus építészeti értékeket szeretnék modern kényelemmel ötvözni. a lakás bútorozatlan, így új tulajdonosa saját ízlése szerint alakíthatja ki otthonát.
A 3, 8 méteres belmagasság és a nagy ablakok világos, tágas tereket biztosítanak. Az ablakok a csendes Pintér utcára néznek, így az otthon kellemesen nyugodt környezetet kínál a belváros szívében.
A műszakilag kifogástalan állapotú ingatlan azonnal költözhető, a felújítás során modern és időtálló anyagok kerültek beépítésre.
A konyhában korszerű műanyag nyílászárók, míg a szobákban fa, dupla üvegű ablakok találhatók, így a lakás energiatakarékos és jól szigetelt, miközben megőrzi klasszikus hangulatát.
A terek arányosak, minden helyiség ablakos, a kialakítás praktikus és átgondolt.
Ez a lakás azoknak szól, akik értékelik a nagypolgári eleganciát és az időtálló részleteket, de nem szeretnének lemondani a modern otthon kényelméről – mindezt Budapest egyik legkedveltebb utcájában, egy gondozott, patinás házban.
ÉPÜLET
1920-ban épült klasszikus pesti bérházként, amely a korszakra jellemző eklektikus homlokzati megoldásokat viseli magán — szimmetrikus felépítés, díszes ablakkeretek, tagolt párkányzat és visszafogott ornamentika jellemzi.
Az eredeti szerkezet még a 19. Századi városi lakóházak hagyományait követi, ugyanakkor a két világháború közötti építészeti ízléshez igazodva egyszerűsített formákkal dolgozik.
A homlokzat és a lépcsőház megőrizte eredeti hangulatát, jó állapotú és karbantartott. a ház nem liftes, utcafrontján üzlethelyiségek találhatók.
A lakóközösség barátságos, összetartó, a közös területek rendezettek és gondozottak, ami ritka érték ebben a városrészben.
DÉL-BELVÁROS
Szívesen megtapasztalná a 100 évvel ezelőtti arisztokrata életérzést? Keresve sem találhatna jobb helyet hozzá! Gyönyörű századfordulós polgári épületek, macskaköves utcák, kiváló kávézók és éttermek, egy utcányira a Váci utcától.
Azoknak ajánlom a környéket, akik nem szívesen ülnek autóba, vagy ülnek tömegközlekedési eszközre. Hozzáteszem utóbbival minden gyorsan és egyszerűen megközelíthető, hiszen a 47-49 villamos, és a m3, M4-es metrók keresztül szelik a várost.
A Fővám tér 2 perc gyalog csodálatosan felújított terével. a Vásárcsarnok az egyik legjobb a városban, minden nap friss termelői áru várja az ide érkezőket. Duna parti séta itt napi rutin lesz, és ha sok az energia, érdemes átgyalogolni a Szabadság-hídon, és felmenni a Gellérthegyre, ahonnan csodálatos kilátás nyílik a városra.
Érdemes ellátogatni a Bálnába, melynek kiülős helyei közvetlenül a Duna parton vannak. Számos kiállítás is várja az ide látogatókat. Ha szívesen enged az édes élvezeteknek akkor a Kemenes Cukrászdában garantáltan talál a kedvére való süteményt, vagy a Levendula fagyizóban fagylaltot. Kiváló éttermek, kifőzdék, pékségek, reggeliző helyek közül választhat a nagyon elegánstól az egészen egyszerűig.
Mondanom sem kell a Posta, bankok, boltok mind azonnal elérhetőek.
MEGHÍVÓ
Ha egy belvárosi otthont keresel, amely egyszerre nyújt polgári eleganciát és modern kényelmet, ahol a részletek harmóniája és az utcai panoráma teszi különlegessé a mindennapokat, hívj, és megmutatom Neked ezt a kivételes ingatlant!
----------------------------------------------
Díjmentes, bankfüggetlen hiteltanácsadással támogatjuk vevő ügyfeleinket a számukra legelőnyösebb finanszírozási döntések meghozatalában. Opcionálisan igénybe vehető kiegészítő szolgáltatásainkkal – mint ügyvédi közreműködés, energetikai tanúsítvány vagy villamos biztonsági felülvizsgálat – teljes körű szakmai támogatást nyújtunk az adásvétel folyamatának minden egyes lépésénél.
A hirdetésben szereplő információk tájékoztató jellegűek. a tévedés és az árváltoztatás jogát fenntartjuk. Az esetleges elírásokért és technikai hibákért felelősséget nem vállalunk. Hitel.hu - Hasonlítsa össze a bankok lakáshitel ajánlatait

