Eladó jó állapotú lakás - Budapest V. kerület
- INGYENES HIRDETÉS FELADÁS
Ingatlan adatai
- Feladva:42 napja a megveszLAK-on
- Eladó vagy kiadó:Eladó
- Település:Budapest V. kerület
- Kategória:Lakás
- Alkategória:Tégla
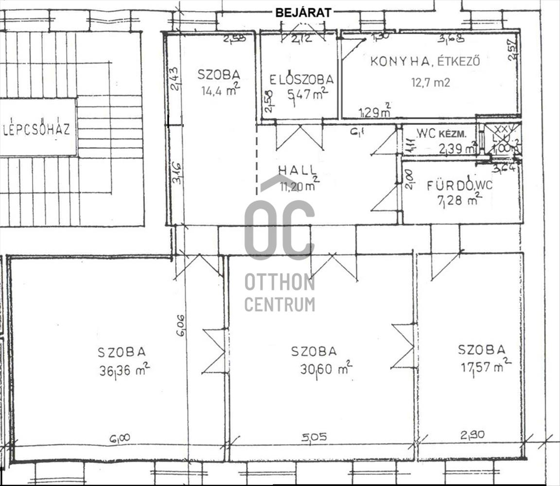
- Alapterület:138 m2
- Csere is:Nem
- Hirdető:Cég
- Élő videón megtekinthető:Nem
- Szobaszám:4
- Állapot:Jó állapotú
- Hány szintes az ingatlan:nincs megadva
- Komfortosság:nincs megadva
- Hányadik emeleti:4
- Erkély:nincs megadva
- Lift:Van
- Parkolási lehetőség:nincs megadva
- Fűtés:Gáz (cirko)
- Bútorozottság:nincs megadva
- Fényviszony:nincs megadva
- Tájolás:NY
- Kilátás:Utcai
- Internet:nincs megadva
- Klíma:nincs megadva
- Akadálymentesített:nincs megadva
- Energiatanúsítvány:nincs megadva
- Villany:Van
- Víz:Van
- Gáz:Van
- Csatorna:Van
- Közös költség:30 000 Ft
- Kapcsolatfelvétel

Csopaki Balázs
+36-(70)-716-8476
Mondd meg a hirdetőnek, hogy a megveszLAK-on találtad a hirdetést.
Hitel ajánlatok
Ingatlan hirdetés leírása
V. KER. CSENDES MELLÉKUTCA, SZÉP HÁZ, 4.e.-i JÓ ÁLLAPOTÚ 138 m...
V. Ker. Csendes mellékutca, szép ház, 4. E. -I jó állapotú 138 m2 LAKÁS
V. Ker. Lipótváros körzetében, csendes mellékutcában (átmenőforgalomtól mentes), kívül-belül szép, 1930-as években épült liftes ház 4. emeletén kínálunk eladásra, egy 138 m2-es, 4 szobás, világos, NY-i tájolású, klimatizált, kiépített számítógépes hálózattal rendelkező, frissen felcsiszolt parkettás, nagypolgári LAKÁST.
Az alaprajzon megjelölt hall, és a 14, 4 m2-es szoba egybe van nyitva, de ez egy válaszfallal visszaépíthető.
AZ ingatlant jelenleg egy nagy múltú, állami cég bérli 700eFt/hó+Áfa összegért, akik maradnának hosszú TÁVRA.
Külső nyílászárók: felújított tripla üvegezésű, hőszigetelt fa, Belső nyílászárók: eredeti felújított fa Fűtés: gáz cirkó (új a kazán), Belmagasság: 3, 5 m. Közös költség: 30eFt/hó, mely tartalmazza a közös villany, kukaszállítás, lift, felújítási alap, valamint a közös képviselő költségeit is, + 11eFt/hó a felújítási alap. Vízóra van.
Közlekedés: busz, metró, villamos néhány perc sétatávolságra
Az energetikai tanúsítvány készítése folyamatban van, amint rendelkezésre áll, úgy azzal a hirdetés frissítésre kerül.
TISZTELT ÉRDEKLŐDŐ!
TÖBB mint 20 éve foglalkozom ingatlanok értékesítésével magyarország piacvezető ingatlanközvetítő hálózatánál, az otthon centrumnál. Amennyiben szándékában áll ingatlant eladni - a legrövidebb időn belül, garantált jogi, és banki háttérrel - keressen bizalommal, hogy egy helyszíni felmérést követő ingyenes értékmegállapítás után, együtt tudjunk működni az ön ingatlanának az eladásában is! Hitel.hu - Hasonlítsa össze a bankok lakáshitel ajánlatait
Tetszett ez az eladó Budapest V. kerületi jó állapotú 4 szobás tégla lakás? Hívd fel a hirdetőt most, és tudj meg mindent erről az eladó tégla lakásról! Ha gondolod nézelődj tovább az eladó lakás Budapest V. kerület oldal hirdetései között. Ennek az eladó lakásnak az ára 299000000 Ft és mivel az alapterülete 138 négyzetméter, ezért az átlagos négyzetméterára 2166667 HUF/m2.
Az eladó lakások menüpontban további hirdetések között is böngészhetsz. Az összes eladó budapesti lakás hirdetést tartalmazó oldalon tudsz böngészni. Ha van kedved, akkor böngészhetsz a Csopaki Balázs összes hirdetése között, vagy akár a/az Otthon Centrum XI. kerület - Gellért tér összes hirdetése között is.

