Eladó újszerű állapotú lakás Budapest V. kerület
| Kedvencbe | Megosztás | Árfigyelő |
| Kedvezményes lakáshitel ajánlatok | ||
| 159 900 000 HUF | ||
Ingatlan adatai
- Eladó vagy kiadó:Eladó
- Település:Budapest V. kerület
- Kategória:Lakás
- Alkategória:Tégla
- Alapterület:80 m2
- Csere is:Nem
- Hirdető:Cég
- Élő videón megtekinthető:Nem
- Szobaszám:4
- Állapot:Újszerű, kitűnő
- Hány szintes az ingatlan:Földszintes
- Komfortosság:nincs megadva
- Hányadik emeleti:4
- Lift:Nincs
- Parkolási lehetőség:nincs megadva
- Fűtés:Egyéb
- Bútorozottság:nincs megadva
- Fényviszony:nincs megadva
- Tájolás:nincs megadva
- Kilátás:nincs megadva
- Internet:nincs megadva
- Akadálymentesített:nincs megadva
- Energiatanúsítvány:D
- Villany:Van
- Víz:Van
- Gáz:nincs megadva
- Csatorna:Van
- Üzenetküldés
- Hívás

Referencia szám: 3620931

Hitel ajánlat
Ingatlan hirdetés leírása
Gyönyörű lakás Budapest szívében eladó!
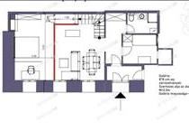
2025-Ben gyönyörűen felújított, első emeleti, 80 m2-es galériás lakás, Budapest szívében, a Duna mellett eladó!I. emelet
Teljes értékű galéria
Az irányár tartalmazza teljes bútorzatot és lámpatesteket
59 m2 plusz galéria
Nappali + 3 szoba
2 fürdőszoba
Fa nyílászárók, redőnnyel
Extra minőségben felújítva
Figyelem! Az adatlap megbízóinktól kapott adatok alapján készült, pontosságáért felelősséget nem tudunk vállalni!
Amennyiben a hirdetés felkeltette érdeklődését, illetve eladó vagy kiadó ingatlana van, forduljon hozzám bizalommal. Szolgáltatásaink kereső ügyfeleink részére díjmentesek!
A tulajdonos kérésére az ingatlan bemutatása egy személyes konzultáció után történik, ahol részletes tájékoztatást kaphat az ingatlan paramétereiről és dokumentációjáról.
Az iroda legfrissebb, aktuális kínálatát a house36 saját weboldalán találja! Hitel.hu - Hasonlítsa össze a bankok lakáshitel ajánlatait

