Eladó jó állapotú lakás - Budapest V. kerület
- INGYENES HIRDETÉS FELADÁS
Ingatlan adatai
- Feladva:4 hónapja a megveszLAK-on
- Eladó vagy kiadó:Eladó
- Település:Budapest V. kerület
- Kategória:Lakás
- Alkategória:Tégla
- Alapterület:79 m2
- Csere is:Nem
- Hirdető:Cég
- Élő videón megtekinthető:Nem
- Szobaszám:2
- Állapot:Jó állapotú
- Hány szintes az ingatlan:Földszintes
- Komfortosság:nincs megadva
- Hányadik emeleti:6
- Erkély:nincs megadva
- Lift:Van
- Parkolási lehetőség:Utcán
- Fűtés:Egyéb
- Bútorozottság:nincs megadva
- Fényviszony:Napfényes
- Tájolás:nincs megadva
- Kilátás:nincs megadva
- Internet:nincs megadva
- Klíma:Van
- Akadálymentesített:nincs megadva
- Energiatanúsítvány:nincs megadva
- Villany:Van
- Víz:Van
- Gáz:nincs megadva
- Csatorna:Van
- Közös költség:55 000 Ft
- Kapcsolatfelvétel

Sipos-Drotár Marianna
+36-(30)-309-6220
Mondd meg a hirdetőnek, hogy a megveszLAK-on találtad a hirdetést.
Referencia szám: M309872
Hitel ajánlatok
Ingatlan hirdetés leírása
Eladó Lakás, Budapest 5. ker.
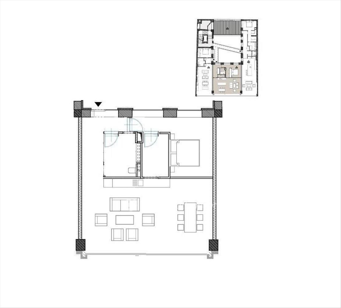
Budapest belváros, v. kerület, 6. emeleti 79 m2-es lakás eladó. Az épület 2018-ban teljesen új belsőt kapott, a tervezők 31 egyedi stílusú loft lakást alakítottak ki. a teljes 6. emelet megvásárolható, a lakások egybenyitására van lehetőség. (246 m2)
Tökéletes lokáció, tágas, világos terek és nagy belmagasságok, industrial stílus jellemzi a lakásokat. a hirdetésben szereplő lakás helyiségei: amerikai konyhás nappali, 1 hálószoba, 2 fürdőszoba, közlekedők. a nappali a Múzeum körútra néz, padlótól a mennyezetig érő közel 9 m széles ablakfelülettel.
A liftes ház belső udvarában acél hidak helyettesítik a korábbi körfolyosókat. Minden lakásban fan-coil rendszer biztosítja a fűtést és hűtést, padlófűtéssel kiegészítve.
Az épület Budapest központjában az Astoria metró megállónál található. Közeli bkk járatok: 47, 49-es villamos, a 7, 107, 110, 112-es, busz. Séta távolságra van a Deák Ferenc tér a város legnagyobb tömegközlekedési csomópontja, három metróvonallal (m1, m2, m3). Gyorsan birtokba vehető. Hitel.hu - Hasonlítsa össze a bankok lakáshitel ajánlatait
Tetszett ez az eladó Budapest V. kerületi jó állapotú 2 szobás tégla lakás? Hívd fel a hirdetőt most, és tudj meg mindent erről az eladó tégla lakásról! Ha gondolod nézelődj tovább az eladó lakás Budapest V. kerület oldal hirdetései között. Ennek az eladó lakásnak az ára 207000000 Ft és mivel az alapterülete 79 négyzetméter, ezért az átlagos négyzetméterára 2620253 HUF/m2.
Az eladó lakások menüpontban további hirdetések között is böngészhetsz. Az összes eladó budapesti lakás hirdetést tartalmazó oldalon tudsz böngészni. Ha van kedved, akkor böngészhetsz a Sipos-Drotár Marianna összes hirdetése között, vagy akár a/az OTPip Budapest IX. kerület Üllői út 21 - OTP Ingatlanpont Iroda összes hirdetése között is.

