Eladó új építésű lakás - Budapest V. kerület
- INGYENES HIRDETÉS FELADÁS
Ingatlan adatai
- Eladó vagy kiadó:Eladó
- Település:Budapest V. kerület
- Kategória:Lakás
- Alkategória:Tégla
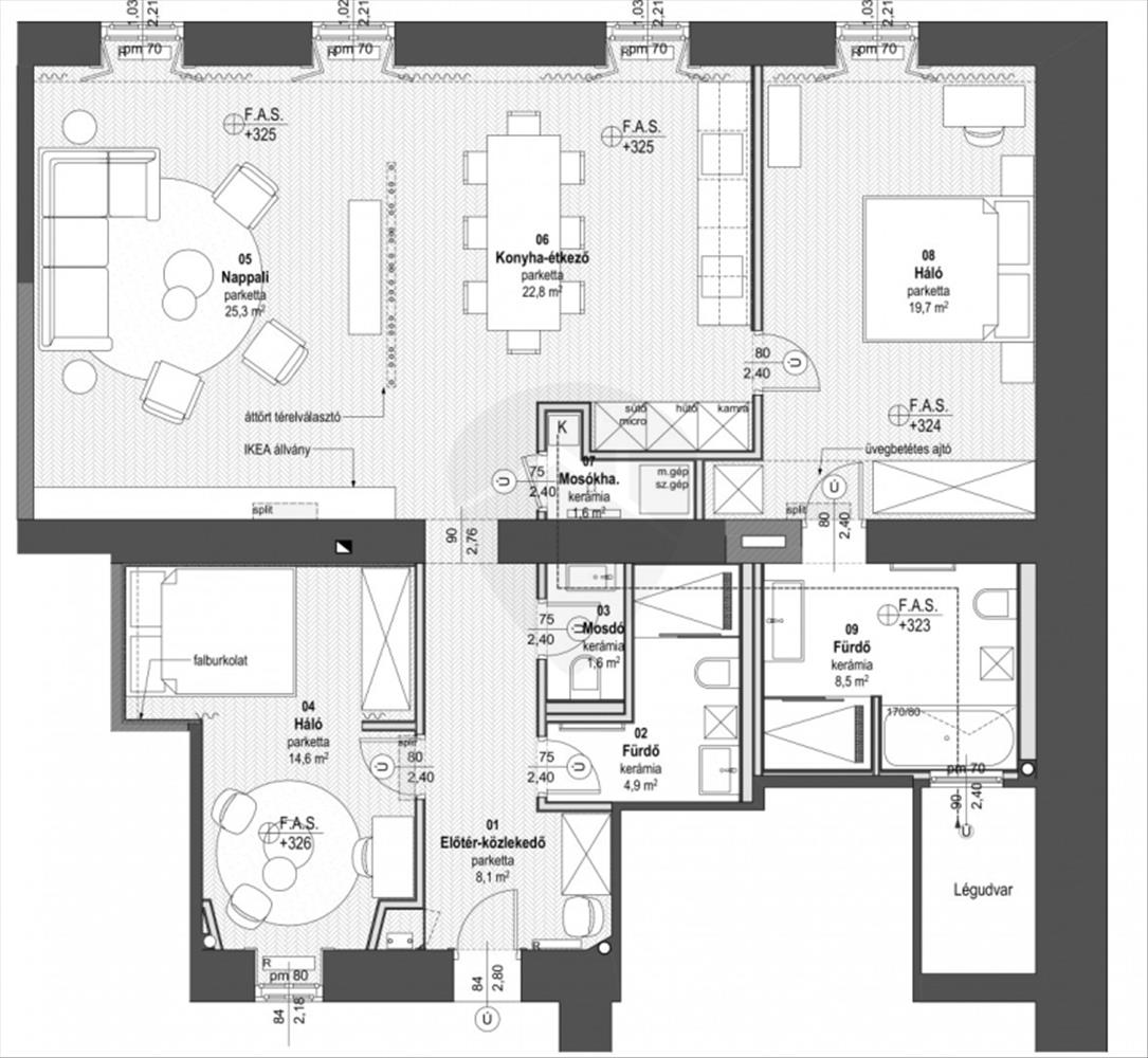
- Alapterület:80 m2
- Csere is:Nem
- Hirdető:Cég
- Élő videón megtekinthető:Nem
- Szobaszám:3
- Állapot:Új építésű
- Hány szintes az ingatlan:nincs megadva
- Komfortosság:nincs megadva
- Hányadik emeleti:nincs megadva
- Erkély:nincs megadva
- Lift:nincs megadva
- Parkolási lehetőség:nincs megadva
- Fűtés:Gáz (cirko)
- Bútorozottság:nincs megadva
- Fényviszony:nincs megadva
- Tájolás:DNY
- Kilátás:Utcai
- Internet:nincs megadva
- Klíma:nincs megadva
- Akadálymentesített:nincs megadva
- Energiatanúsítvány:nincs megadva
- Villany:nincs megadva
- Víz:nincs megadva
- Gáz:nincs megadva
- Csatorna:nincs megadva
- Kapcsolatfelvétel

Balogh Csaba
+36-(70)-412-5733
Mondd meg a hirdetőnek, hogy a megveszLAK-on találtad a hirdetést.
Ingatlan hirdetés leírása
Üzleti vállalkozások és igényes magánvásárlók számára egy való...
Üzleti vállalkozások és igényes magánvásárlók számára egy valóban páratlan lehetőséget kínálunk: egy exkluzív, prémium kivitelezésű lakás megvásárlását Budapest szívében, a Belváros egyik legkeresettebb környékén, a Hercegprímás utcában. Ez a 80 négyzetméteres, modern otthon nemcsak eleganciájával és minőségi kialakításával tűnik ki, hanem kivételes elhelyezkedésével és számos előnyével is.
Az ingatlan tágas, világos terekkel rendelkezik, melyek között két nagy szoba és két luxus minőségű fürdőszoba található, így tökéletes választás lehet mind családok, mind pedig bérbeadási célú befektetők számára. Az egyedi tervezés és a prémium kivitelezés garantálja, hogy az otthon minden részlete a legmagasabb szintű kényelmet és esztétikai élményt nyújtja. a tágas, amerikai konyhával egybenyitott nappali ideális helyszíne a baráti összejöveteleknek, míg a lakás gondosan beépített bútorai és modern gépesítése azonnali beköltözést tesz lehetővé. a fűtésről gáz cirkó rendszer gondoskodik egyedi méréssel, míg a légkondicionáló berendezés a nyári hónapokban is kellemes hőmérsékletet biztosít, így minden évszakban maximális komfortot élvezhet.
A Hercegprímás utca környéke különleges vonzerőt biztosít: a kiváló közlekedési lehetőségek révén a város bármely pontja gyorsan és könnyedén elérhető, legyen szó tömegközlekedésről vagy autós közlekedésről. Ezen túlmenően a környék páratlan ellátottsága – éttermek, kávézók, boltok és különféle szolgáltatások közvetlen közelében – biztosítja, hogy minden szükséges kényelem kéznél legyen.
A lakás elhelyezkedése és kialakítása révén a városi élet minden előnyét kínálja, miközben csendes és biztonságos környezetet nyújt lakói számára. Ez az ingatlan nemcsak egy különleges otthont jelent, hanem kiváló befektetési lehetőséget is, amely hosszú távon is értéket képvisel.
Amennyiben szeretné megtudni, hogyan válhat az Öné ez a kivételes ingatlan, kérem, keressen bizalommal! Örömmel osztom meg Önnel a részleteket, és segítek abban, hogy megtalálja álmai otthonát vagy befektetését. Hitel.hu - Hasonlítsa össze a bankok lakáshitel ajánlatait


