Eladó újszerű állapotú lakás - Budapest V. kerület
- INGYENES HIRDETÉS FELADÁS
Ingatlan adatai
- Feladva:4 hónapja a megveszLAK-on
- Eladó vagy kiadó:Eladó
- Település:Budapest V. kerület
- Kategória:Lakás
- Alkategória:Tégla
- Alapterület:75 m2
- Csere is:Nem
- Hirdető:Cég
- Élő videón megtekinthető:Nem
- Szobaszám:2 + 1 fél
- Állapot:Újszerű, kitűnő
- Hány szintes az ingatlan:Földszintes
- Komfortosság:nincs megadva
- Hányadik emeleti:Földszint
- Erkély:nincs megadva
- Lift:Van
- Parkolási lehetőség:nincs megadva
- Fűtés:Hőszivattyús
- Bútorozottság:nincs megadva
- Fényviszony:Napfényes
- Tájolás:DK
- Kilátás:nincs megadva
- Internet:nincs megadva
- Klíma:nincs megadva
- Akadálymentesített:nincs megadva
- Energiatanúsítvány:nincs megadva
- Villany:Van
- Víz:Van
- Gáz:nincs megadva
- Csatorna:Van
- Kapcsolatfelvétel

Fehér Nikolett
+36-(30)-250-0865
Mondd meg a hirdetőnek, hogy a megveszLAK-on találtad a hirdetést.
Referencia szám: LK090742
Hitel ajánlatok
Ingatlan hirdetés leírása
Eladó lakás, Budapest 5. ker.
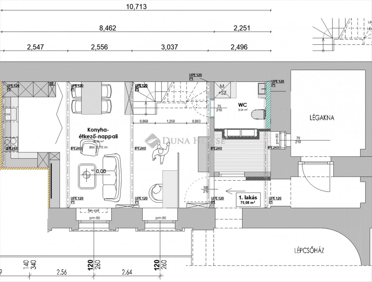
Eladó luxus lakás Budapest szívében 75 m²-es, belső kétszintes design otthon a Városház utcábanEgyedülálló lehetőség a történelmi Belvárosban! Eladó egy 75 m²-es, belső kétszintes, teljesen felújított és berendezett lakás Budapest v. kerületének egyik legszebb, műemlékvédelem alatt álló épületében, a patinás Városház utcában pár lépésre a Szervita tértől, csendes, mégis kiválóan megközelíthető lokációban. Kialakítás és hangulatA lakást belsőépítész által megálmodott koncepció alapján újították fel. a kétszintes kialakításnak köszönhetően tágas, jól átgondolt életterek várják az új tulajdonost, a természetes fény és a prémium anyaghasználat elegáns, nyugodt atmoszférát teremt. Nappali, konyha-étkező, 2 hálószoba, 2 fürdőszoba, háztartási helyiség Teljes értékű belmagasság: alsó szint 275 cm, emelet 265 cm a lakás a tágas belső udvarra néz, amely biztosítja a természetes fényt és a csendet Műszaki tartalom és extrák Gépészet: Hőszivattyús fűtés-hűtés (Wi-Fi-vel vezérelhető), Inova fan-coil hőleadók, helyiségenként szabályozható Burkolatok: Svájci rétegelt fa parketta, olasz márványhatású gres lapok (Marca Corona Scultorea) Konyha: Egyedi gyártású U alakú, kvarcit kő munkapulttal, aeg beépített gépekkel, Hansgrohe csapteleppel Világítás: Stukkóba rejtett led világítás, fényerőszabályzóval, dizájn világítótestek Fürdők: Teljesen felszerelt, vízhőmérséklet-kijelzős csaptelepek, led tükrök, esőztető zuhany Nyílászárók: Új, hőszigetelt ablakok műemléki engedéllyel, 88 mm vastag fa kivitel az emeleten Biztonság: Tűz- és füstérzékelő, betörésjelző rendszerA lakás teljes berendezéssel kerül átadásra: Design ülőgarnitúra, étkezőasztal bársony székekkel, TV-szekrény, gardrób, hálószobai bútorzat, dekorációk Minden ablakon fényáteresztő függöny Teljes értékű, berendezett háztartási helyiség Ideális választás: Belvárosi luxus otthont keresőknek Üzletembereknek, diplomatáknak Kiváló befektetés hosszú távú kiadásra (albérletként vagy céges használatra) További információ, alaprajz és részletes műszaki dokumentáció kérésre elérhető. Keressen bizalommal, ha egy igazán különleges belvárosi lakást keres kulcsrakészen, kompromisszumok nélkül.
Érd. : Fehér Nikolett +36 30 250 0865, feher. Nikolett@dh. Hu Hitel.hu - Hasonlítsa össze a bankok lakáshitel ajánlatait
Tetszett ez az eladó Budapest V. kerületi újszerű állapotú 2 egész és 1 fél szobás tégla lakás? Hívd fel a hirdetőt most, és tudj meg mindent erről az eladó tégla lakásról! Ha gondolod nézelődj tovább az eladó lakás Budapest V. kerület oldal hirdetései között. Ennek az eladó lakásnak az ára 146000000 Ft és mivel az alapterülete 75 négyzetméter, ezért az átlagos négyzetméterára 1946667 HUF/m2.
Az eladó lakások menüpontban további hirdetések között is böngészhetsz. Az összes eladó budapesti lakás hirdetést tartalmazó oldalon tudsz böngészni. Ha van kedved, akkor böngészhetsz a Fehér Nikolett összes hirdetése között, vagy akár a/az Duna House Budapest - Főnix összes hirdetése között is.

