Eladó új építésű lakás - Budapest VI. kerület
- INGYENES HIRDETÉS FELADÁS
![]() |
256 861 000 HUF
Ingatlan adatai
- Eladó vagy kiadó:Eladó
- Település:Budapest VI. kerület
- Kategória:Lakás
- Alkategória:Tégla
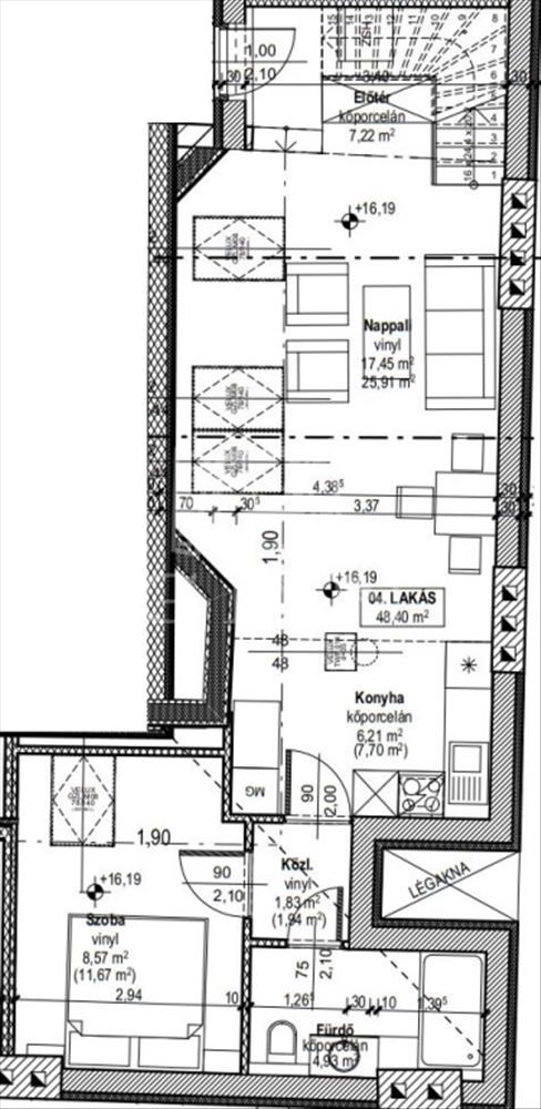
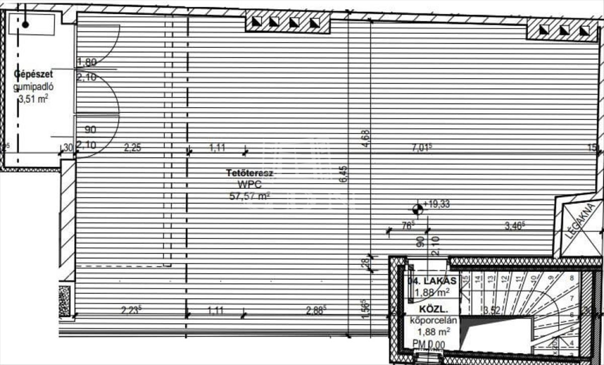
- Alapterület:50 m2
- Csere is:Nem
- Hirdető:Cég
- Élő videón megtekinthető:Nem
- Szobaszám:2
- Állapot:Új építésű
- Hány szintes az ingatlan:5 szintes
- Komfortosság:nincs megadva
- Hányadik emeleti:4
- Erkély:nincs megadva
- Lift:Van
- Parkolási lehetőség:Utcán
- Fűtés:Megújuló energia
- Bútorozottság:nincs megadva
- Fényviszony:nincs megadva
- Tájolás:nincs megadva
- Kilátás:nincs megadva
- Internet:nincs megadva
- Klíma:nincs megadva
- Akadálymentesített:nincs megadva
- Energiatanúsítvány:nincs megadva
- Villany:nincs megadva
- Víz:nincs megadva
- Gáz:nincs megadva
- Csatorna:nincs megadva
- Kapcsolatfelvétel

A hirdető törölte a hirdetést.
Törölt hirdetés, így nem lehet üzenetet küldeni sem.
Hitel ajánlatok
Ingatlan hirdetés leírása
Eladó új építésű lakás - Budapest VI. kerület
Sajnos ez az ingatlan hirdetés már nem aktuális, mivel a hirdető már törölte azt. Hitel.hu - Hasonlítsa össze a bankok lakáshitel ajánlatait

