Eladó új építésű lakás - Budapest VI. kerület
- INGYENES HIRDETÉS FELADÁS
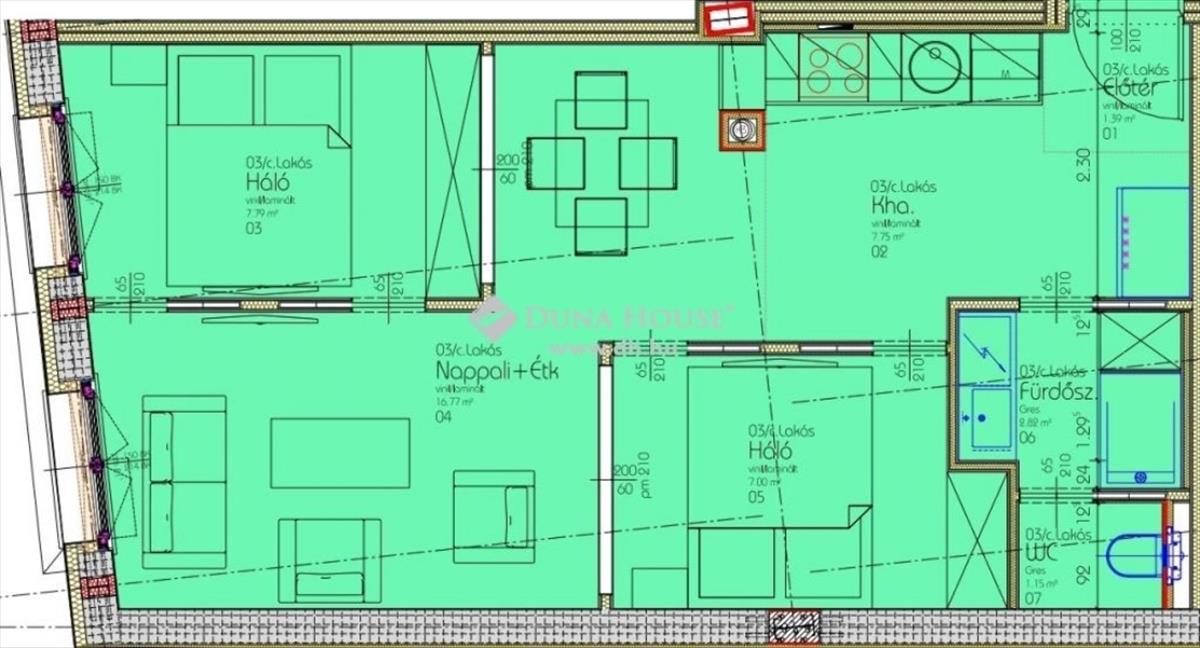
Ingatlan adatai
- Eladó vagy kiadó:Eladó
- Település:Budapest VI. kerület
- Kategória:Lakás
- Alkategória:Tégla
- Alapterület:45 m2
- Csere is:Nem
- Hirdető:Cég
- Élő videón megtekinthető:Nem
- Szobaszám:3
- Állapot:Új építésű
- Hány szintes az ingatlan:Földszintes
- Komfortosság:nincs megadva
- Hányadik emeleti:2
- Erkély:nincs megadva
- Lift:Van
- Parkolási lehetőség:nincs megadva
- Fűtés:Hőszivattyús
- Bútorozottság:nincs megadva
- Fényviszony:nincs megadva
- Tájolás:ÉK
- Kilátás:nincs megadva
- Internet:nincs megadva
- Klíma:nincs megadva
- Akadálymentesített:nincs megadva
- Energiatanúsítvány:A
- Villany:Van
- Víz:Van
- Gáz:nincs megadva
- Csatorna:Van
- Kapcsolatfelvétel

Balogh Adrienn
+36-(30)-670-7604
Mondd meg a hirdetőnek, hogy a megveszLAK-on találtad a hirdetést.
Referencia szám: PR051645/LK/16503
Ingatlan hirdetés leírása
Eladó lakás, Budapest 6. ker.
Budapesten, a 6. kerületben, néhány percre a Nyugati pályaudvartól, kitűnő lokációban épültek meg ezek az energiatakarékos lakások, egy társasházra ráépítéssel, lift kialakításával. a kialakított 19 lakás modern, a mai kornak minden tekintetben megfelelő, jó belső terekkel rendelkező ingatlan. 4 Lakáshoz hatalmas tetőteraszok is tartoznak, de kisebb lakások is elérhetőek még itt! Mind befektetői szemlélettel mind pedig saját célra keresőknek kitűnő választás lehet, az ár/érték arány kimagaslóan jó! a lakások fűtése mennyezet hűtés-fűtéssel történik, padlófűtéssel kiegészítve. Ha még ezen a nyáron szeretne új ingatlanba költözni, hívjon bizalommal, ne maradjon le erről a lehetőségről, mert a 6. kerületben nagyon kevés új lakás épül, és a kiváló lokáció miatt nagy a kereslet! a lakások várható átadása: 2024 év végeRészletes információkért keressen bizalommal! Hitel.hu - Hasonlítsa össze a bankok lakáshitel ajánlatait


