+ 3 fotó

Eladó új építésű lakás Budapest VII. kerület
| |  |
| Kedvencbe | Megosztás | Árfigyelő |
- Eladó vagy kiadó:Eladó
- Település:Budapest VII. kerület
- Kategória:Lakás
- Alkategória:Tégla
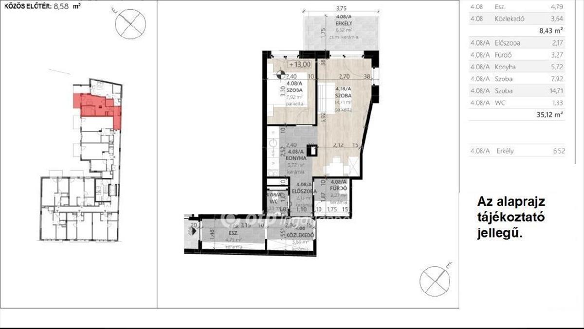
- Alapterület:41 m2
- Csere is:Nem
- Hirdető:Cég
- Élő videón megtekinthető:Nem
- Szobaszám:2
- Állapot:Új építésű
- Hány szintes az ingatlan:Földszintes
- Komfortosság:nincs megadva
- Hányadik emeleti:4
- Lift:Van
- Parkolási lehetőség:Teremgarázsban
- Fűtés:Hőszivattyús
- Bútorozottság:nincs megadva
- Fényviszony:Jó
- Tájolás:nincs megadva
- Kilátás:nincs megadva
- Internet:nincs megadva
- Akadálymentesített:nincs megadva
- Energiatanúsítvány:B
- Villany:Van
- Víz:Van
- Gáz:nincs megadva
- Csatorna:Van

Juhász Emese
Mondd meg a hirdetőnek, hogy a megveszLAK-on találtad a hirdetést.

Eladó Lakás, Budapest 7. ker.
Értékállóság, korszerűség, gazdaságosság, kiváló befektetés. Könnyű megközelíthetőséggel, kiváló infrastruktúra mellett a 7. kerületben Erzsébetváros szívében kínálunk újépítésű, kiemelkedő minőségű 2, - 3 szobás, teraszos lakásokat. Hőszivattyúss fűtés/hűtés rendszerű a társasház, itt a rezsiárak emelkedése nem befolyásolja a fűtési díjat. . Ezeket a lakásokat azoknak ajánljuk, akiknek fontos az energiatakarékosság és a környezetkímélő élet. a belvárosi élet kedvelőinek ideális lakhatási lehetőséget kínál, túristáknak remek szálláslehetőség, így értékálló befektetésnek is remek választás. Köszönöm megtisztelő figyelmét. Amennyiben jelenlegi ingatlana értékesítésében is segítségére lehetek, illetve az OTP teljes ingatlankínálatával kapcsolatban kérem forduljon hozzám bizalommal. Az OTP Ingatlanpont, mint egyetlen közvetlen banki hátterű ingatlanközvetítő társaság teljes körű ügyintézéssel áll eladóik és vevőik rendelkezésére! Piaci és kedvezményes hitel- valamint lízingkonstrukciókat kínálunk mint lakásvásárlási hitel, szabad felhasználású hitel, babaváró hitel, CSOK Plusz-intézés, Otthonfelújítási Támogatás, egyéb felújítási hitelek. Az adásvételi szerződés megkötéséhez igény szerint megbízható ügyvédi közreműködést is biztosítunk. Ha felkeltettem érdeklődését, ne habozzon keresni a hét bármely napján reggel 9 és este 9 között. Ügyfeleinknek minden szolgáltatásunk (valóban) díjmentes. We speak english, feel free to call me!
Hitel.hu - Hasonlítsa össze a bankok lakáshitel ajánlatait Hasonló ingatlan hirdetések